查看完整案例

收藏

下载
>#美设奖# “简繁有度,冷暖有尺”
#美设奖# “简繁有度,冷暖有尺”
参考造价:150万元
风格:现代简约
空间:别墅豪宅
面积:260平米
浏览数:4702
案例简介
Case description
设计师说:“水墨”亘古以来就是修行者的内心写照。本案色彩,强调“水墨”的感官意识,剔除了古风的鲜明元素。线条粗狂的原木,标新立异,独辟蹊径处即是“柳暗花明”。
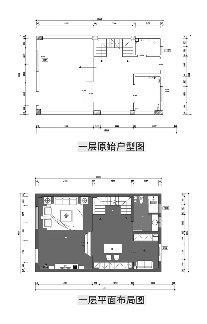
一层主要功能区:
1.客厅
2.休闲区
3.楼梯间
4.门厅
5.客卫生间
二层主要功能区:
1.主卧
2.阳台
3.电梯间
4.书房
5.客卫生间
6厨房
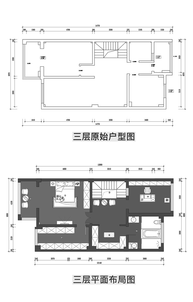
三层主要功能区:
1.主卧
2.阳台
3.电梯间
4.书房
5.储物间
6.衣帽间
7.主卫生间
色调深咖木纹和白色粗狂的大理石纹理,把内涵和品质演绎的淋漓尽致。
大平顶的无主灯设计,灯光层次细腻体感舒适。
电视背景墙和沙发背景墙,同一款式,左右呼应,强调空间的整体性。
灰色纱帘若隐若现布艺沙发搭配白色大理石茶几,一面温厚,一面硬朗。
软装搭配,做到风格和色调的统一,紧凑而有力。
眼前的一切透过纱幔留下了光影斑驳,好一副“水墨画梳窗”。
黑色和原木是主导色调,黑色的硬朗和原木的自然形成鲜明对比,相得益彰。材质以实木为主,厚重的质地感无形中提高了生活品味。
异形吊顶打破传统,粗矿格子和多种灯光布局呈现出错落有致的空间视觉。
背景墙三分法,白墙彰显简约,到顶储物柜满足储物需求,错隔板放书籍、摆件。
地面白色大理石纹理,整个空间保持同一。
推开花园的玻璃门是满眼的绿色,“朵朵花开淡墨痕”。
二楼餐厅厨房一体设计。餐厅是西厨区和用餐区的结合,定制深灰的柜体和高餐台,迎合业主的喜好。墙面是白色裸砖,色彩统一形式创新。
开放式厨房,平顶点光源整洁通透才是厨房的最佳状态。岛台设计,灰色柜体搭配白色台面,浓淡总相宜。超大容积,杂物收纳轻松有序。操作台,动线合理,嵌入式冰箱烤箱隐化视觉平面。
“水墨丹青,浓淡相宜,宛若画中游”。
深灰柜体延伸整个走廊,黑色门套分割空间,幽邃的格调彰显主人内敛气质。
中间的隔墙,一侧做梳妆台,另一侧变身电视墙,一墙多用。
超大双人床,毫无束缚享受睡眠时间。双层窗帘,彩光委婉,灰色的浪漫超脱媚俗。
夜晚讲练“皎皎何其多,独时吾自有”。
三楼卧室,不拘泥于色彩造型,注重质朴的身心感受。整排书柜,科学计算拿捏高度,便于拿取。异形书桌平添心意,给自我修行的旅途添几丝烟火气息。
客服
消息
收藏
下载
最近








