查看完整案例

收藏

下载
Дом с видом
Объект:
SWIDOM модель SW4
Адрес:
Россия,
Домодедово.
с. Битягово
Мастерская:
MAParchitects
Авторский коллектив:
Главный архитектор: Александр Порошкин
Архитекторы: Кристина Павлова, Ксения Карпова, Таисия Карпова
Новый модульный дом из линейки SWIDOM, разработанной бюро MAParchitects, по-прежнему ставит в приоритет окружающие виды, но отличается большой площадью и улучшенной технологией производства и сборки.
модульных домов, разработанных бюро MAParchitects, – самый большой. Как и у предшественников, его устройство исходит из того, чтобы обеспечить визуальную связь дома с местом, в котором он находится, и позволить обитателям сполна насладиться видами на лес, реку, озеро, овраг или сад.
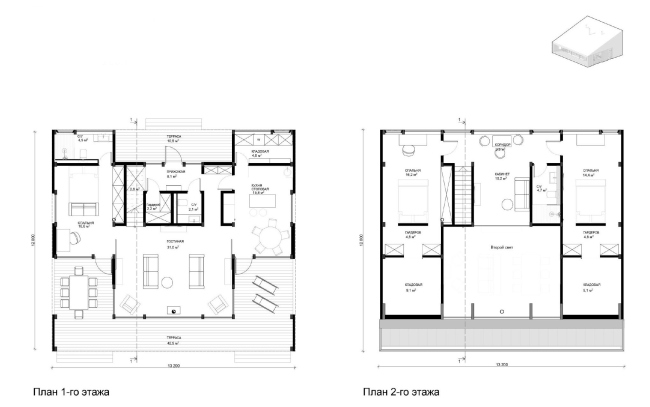
Площадь дома – 215 м
. Односкатная кровля позволяет разместить в высокой части дома полноценный второй этаж с двумя спальнями, кабинетом и санузлом. Под низкой частью кровли размещаются технические антресоли для инженерного оборудования. Из холла второго этажа открывается вид на двусветное пространство гостиной.
Элементы собираются на заводе и доставляются на участок в виде «домокомплекта», в который входит конструктив из клееного бруса, с заполнением ПИР-панелями, окнами и дверьми. Сборка занимает 2-3 месяца, возведение дома «под ключ» – около полугода. В SW4 Александр Порошкин учел опыт жизни в SW3, была улучшена технология производства и сборки, изменились и планировки.
Проект победил в
конкурсе
ARCHIWOOD-2022 как лучший деревянный дом по версии жюри.
客服
消息
收藏
下载
最近




















