查看完整案例

收藏

下载
戈者设计
杭州所象侘寂风格服装工作室设计|一野设计
戈者设计网感谢来自苏州一野设计事务所的空间案例分享。2020年1月7号,比起南方,江南天气还是十分寒冷,杭州的冬天的感觉还是少年时的印象,凉得有些刺骨,有些伤怀,长大逐渐对各种寒冷只顾加衣服,褪去了伤春悲秋的情绪。这次是关于服装工作室设计的故事。
已经站在我面前的两个帅气大男孩,穿着潮服,对我微笑。把我带到他们刚盘下来的店里,眼前画面我有些呆了,里面还有上一家服装厂在生产,杂乱看不出空间样子,层高低,卫生间气味很大,1000平,400平用来做仓库,两个原创服装品牌公用余下600平作为生产以及出样展厅。
他们是很认真的服装人,对每一件衣服的图稿设计打板都很认真,现在90后在各行业里面也是优秀的有些吓人了。我很专注的听他们说一些他们的故事。我想我们是契合的。
构思
光与空间关系
体块的分解和切割
弧线在空间里的作用
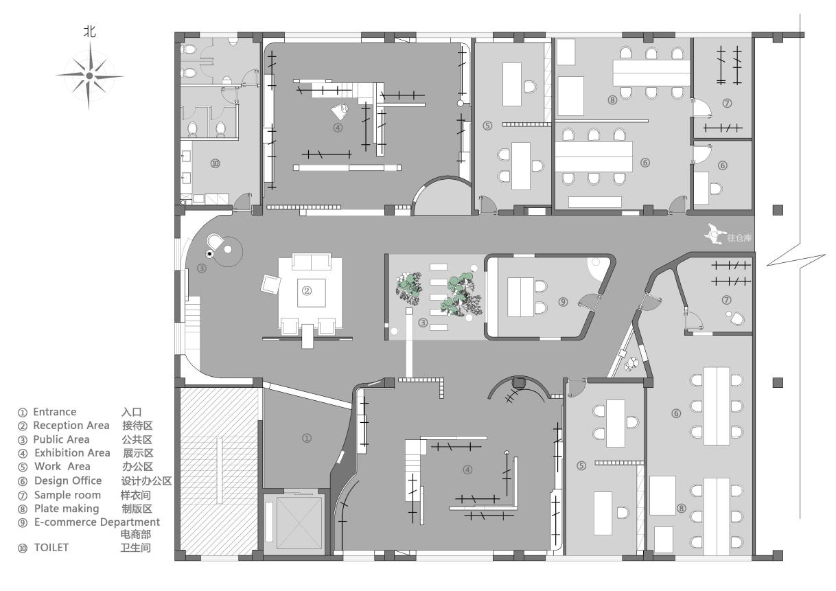
整个600平的空间分割成大回字形,两边的过道光线比较弱,便采用了空心砖作为半隔断形式,将光线偷进来的同时,还要为它塑形。解决暗部问题也增加了空间体验感。
原本入口西面采光处被庞大卫生间包裹,将卫生间向北移动后留出采光,阳光明媚的午后,接待区便是欣赏夕阳最好的地方。这次采用了体块分解的方式,将空间分成两个品牌区。
摒弃过多材质堆砌,整案墙面都选用了水泥艺术漆,地面是现磨水磨石,色调达到一致,在这一体之间,去切割出每块功能分区,也考虑了构造的穿插问题,不多不少。
中庭的造景区,将南北的展厅贯穿,地面加了人造光源,和氛围球灯,它可以给体验者看过样衣游走的时候,给他们空间去轻松思考,它也可以是模特拍样衣照可停留的地方。我认为的空间艺术一部分在于艺术,而另一部分是商业理解和心理暗示。
两展示空间均用阵列形式的空间砖作为半隔断,将南北的光源成功引入室内,弧形的线都由面状切割而成。
拆解
分区拆解
相互独立
又遥相呼应
一个空壳,给它建立无数的隔断面,作为服装展示,而这过于生硬,将他们用直线或弧线打破,然后重组,无论站在哪个角落望去,它都可呈现不一样的空间感,而这些线条的形状将光线切割成不同的形状。
所有的样衣都是独一无二,不求数量,有不同形式的背景面,便可依照不同服装款式相对去展示,每穿过一面背景面,得到的心理感受都是双份的。展厅选择在原有的方块空间再搭建一层结构,保留原来的窗,窗户做了弧形处理,在穿梭中找到规律,再延伸。
光影
光线穿梭
若隐若现
增加视觉空间美感
北区样衣区为了保留更多自然光,它和南区相反,北区给了更多通透的背景面,用了大型的体块分割,它们相互分离,又相互呼应。穿行在空间里,增加了更多的情绪点,正是这优秀的创业者带给我的感受。
人和空间互动,可驻足,可前行,不枯燥,动起来的空间可以增加的更多趣味性,弧线在暗示一种温柔对待的方式,去和空间对话。
建筑和室内设计向来尊重光和时间在空间的穿梭,借用他们服务空间。体块便是用来解读广和时间,有时候,在一个角落,静坐,看着他们在我身体柔柔的划过,我想,这便是设计的意义。
Project Name | 项目名称
所象 服装工作室
Location | 项目地址
江苏省 杭州市余杭区 工业园
Area | 项目面积
600㎡
Chief Designer | 主创设计师
张旖
Design Company | 设计师公司
一野设计事务所
Start time |开始时间
2020.04.01
杭州所象侘寂风格服装工作室设计|一野设计
客服
消息
收藏
下载
最近





















