查看完整案例


收藏

下载
杨顺超 广州齐家装饰设计公司 创始人 设计总监 杨顺超设计事务所 设计总监 我们是一支国际化的、富有经验及创造力的商业空间设计顾问团队。杨顺超设计事务所是独具创造力的专业设计公司;其良好的信誉及独特的设计作风,逐步成为设计行业的领导者。多年来,公司致力于高端别墅、会所、餐饮、商业地产、销售中心、顶级样板间及高端住宅等服务性行业的顶尖室内设计
飞花万盏——游走盛唐与现在的弹唱 与其说这是主人与设计师的精神碰撞,不如说它是主人与设计师向盛世中华的致敬与缅怀。 仿佛有红衣侍女为文人雅客掌灯,穿过户外若今若古的四合院式的花园。引领来到雅致的前厅,庄严端庄的堂厅陈设,气度不凡,彰显主人的地位与家世。两边各有一组四扇花格门,这是为了功能对称设计的需要而设计的。中庸也体现了一种平衡。一门艺术,阴阳平衡,气场圆通是中式的特色。这点在我的这个案子中体现得淋漓尽致也克服了设计上的很多难题和原结构的重要阻碍,在前厅地面选材料上也做了创新,传统的砖雕与现代材料垂直线铺贴,将现代元素和传统元素结合在一起,以现代人的审美需求来打造富有传统韵味的空间形态,起到对整体空间的廷续,又对人流动线的指引。在主通道的的两侧,用富有画意的中式窗花、水池,荷花,陶罐等富有禅意的元素陈设水景划定功能,古韵十足,而且保留了恰当的办公室。休息区、厨房等现代工作需要,整体结合的十分巧妙过渡而又悄悄然不留痕迹。 餐厅是一大亮点,由于层高有8米的空间,如不加以利用,则会成为设计中的败笔。设计师灵光闪现:业主是佛教信仰,借用佛教的装饰元素及佛教“七级浮屠”的理念,打造了七级旋转阶级天花。并以青花瓷做餐椅、水墨荷花图案定制的地毯,不谋而合与业主佛教理念巧妙的融通,屏风的庄严,挂画的画龙点睛,软装的完美陈设,抬头仰望。尽头,就是涅盘重生。 KTV又是一个新的挑战,中式的KTV该如何设计?借用敦煌壁画飞天仙女的造型制作炫丽的屏风,运用现代的一些材料,透过隐约的灯光,天花上一新一旧的材料对比,墙面上的石库门样造型,琼楼玉宇,格子窗花、飞天仙女,为我们透露出典型的中国文化色彩。 茶室因空间层高只有3米,在空间处理上通过茶事创造一种宁静的氛围和一个空灵虚静的心境。是中国茶道修习的必由途径,当茶的清香静静地浸润你的心田和肺腑的每一个角落的时候,你的心灵便在虚静中显得空明,你的精神便在虚静升华净化,你将在虚静中与大自然融涵玄会,达到“天人和一”的“天乐”境界。 在茶道中,静与美常相得益彰。古往今来,无论是羽士还是高僧或儒生,都殊途同归地把“静”作为茶道修习的必经大道。因为静则明,静则虚,静可虚怀若谷,静课内敛含藏,静可洞察明激,体道入微。可以说:“欲达茶道通玄境,除却静字无妙法”。 展厅的设计采用了简约的中式风格。整个展厅营造出了暖黄色的展示空间,墙面加以中式传统的图案线以贯穿整个展示空间,给人以舒适惬意的同时又给人以活泼气氛的感觉。本次设计亮点将中式园林引入展示空间,在上二楼交流楼梯区域,插入翠竹假山等景观,营造出浓郁的书香气息,整个空间“移步换景”,在保证立面形式统一的情况又富有变化,避免了乏味感。
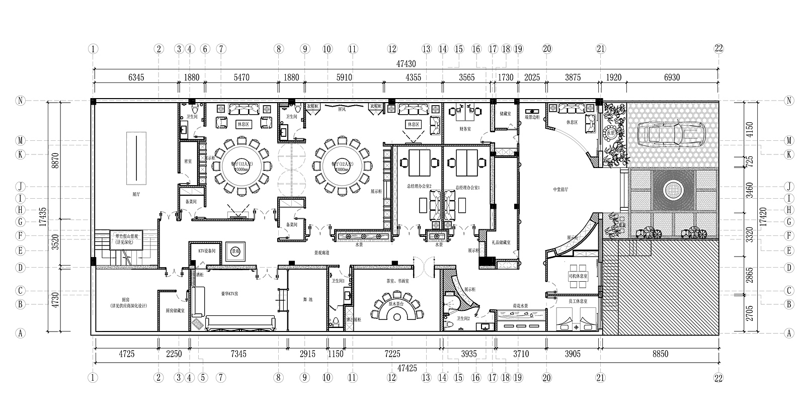
项目名称:广纺壹号会所 项目地址:广州 项目类型:室内设计 使用面积:870平方 主创团队:杨顺超设计事务所 总设计师:杨顺超 设计风格:中式风格 飞花万盏——游走盛唐与现在的弹唱 与其说这是主人与设计师的精神碰撞,不如说它是主人与设计师向盛世中华的致敬与缅怀。 仿佛有红衣侍女为文人雅客掌灯,穿过户外若今若古的四合院式的花园。引领来到雅致的前厅,庄严端庄的堂厅陈设,气度不凡,彰显主人的地位与家世。两边各有一组四扇花格门,这是为了功能对称设计的需要而设计的。中庸也体现了一种平衡。一门艺术,阴阳平衡,气场圆通是中式的特色。这点在我的这个案子中体现得淋漓尽致也克服了设计上的很多难题和原结构的重要阻碍,在前厅地面选材料上也做了创新,传统的砖雕与现代材料垂直线铺贴,将现代元素和传统元素结合在一起,以现代人的审美需求来打造富有传统韵味的空间形态,起到对整体空间的廷续,又对人流动线的指引。在主通道的的两侧,用富有画意的中式窗花、水池,荷花,陶罐等富有禅意的元素陈设水景划定功能,古韵十足,而且保留了恰当的办公室。休息区、厨房等现代工作需要,整体结合的十分巧妙过渡而又悄悄然不留痕迹。 餐厅是一大亮点,由于层高有8米的空间,如不加以利用,则会成为设计中的败笔。设计师灵光闪现:业主是佛教信仰,借用佛教的装饰元素及佛教“七级浮屠”的理念,打造了七级旋转阶级天花。并以青花瓷做餐椅、水墨荷花图案定制的地毯,不谋而合与业主佛教理念巧妙的融通,屏风的庄严,挂画的画龙点睛,软装的完美陈设,抬头仰望。尽头,就是涅盘重生。 KTV又是一个新的挑战,中式的KTV该如何设计?借用敦煌壁画飞天仙女的造型制作炫丽的屏风,运用现代的一些材料,透过隐约的灯光,天花上一新一旧的材料对比,墙面上的石库门样造型,琼楼玉宇,格子窗花、飞天仙女,为我们透露出典型的中国文化色彩。 茶室因空间层高只有3米,在空间处理上通过茶事创造一种宁静的氛围和一个空灵虚静的心境。是中国茶道修习的必由途径,当茶的清香静静地浸润你的心田和肺腑的每一个角落的时候,你的心灵便在虚静中显得空明,你的精神便在虚静升华净化,你将在虚静中与大自然融涵玄会,达到“天人和一”的“天乐”境界。 在茶道中,静与美常相得益彰。古往今来,无论是羽士还是高僧或儒生,都殊途同归地把“静”作为茶道修习的必经大道。因为静则明,静则虚,静可虚怀若谷,静课内敛含藏,静可洞察明激,体道入微。可以说:“欲达茶道通玄境,除却静字无妙法”。 展厅的设计采用了简约的中式风格。整个展厅营造出了暖黄色的展示空间,墙面加以中式传统的图案线以贯穿整个展示空间,给人以舒适惬意的同时又给人以活泼气氛的感觉。本次设计亮点将中式园林引入展示空间,在上二楼交流楼梯区域,插入翠竹假山等景观,营造出浓郁的书香气息,整个空间“移步换景”,在保证立面形式统一的情况又富有变化,避免了乏味感。
客服
消息
收藏
下载
最近















