查看完整案例

收藏

下载
戈者设计
朴素低调的环境工业美学的浪漫的啤酒厂设计
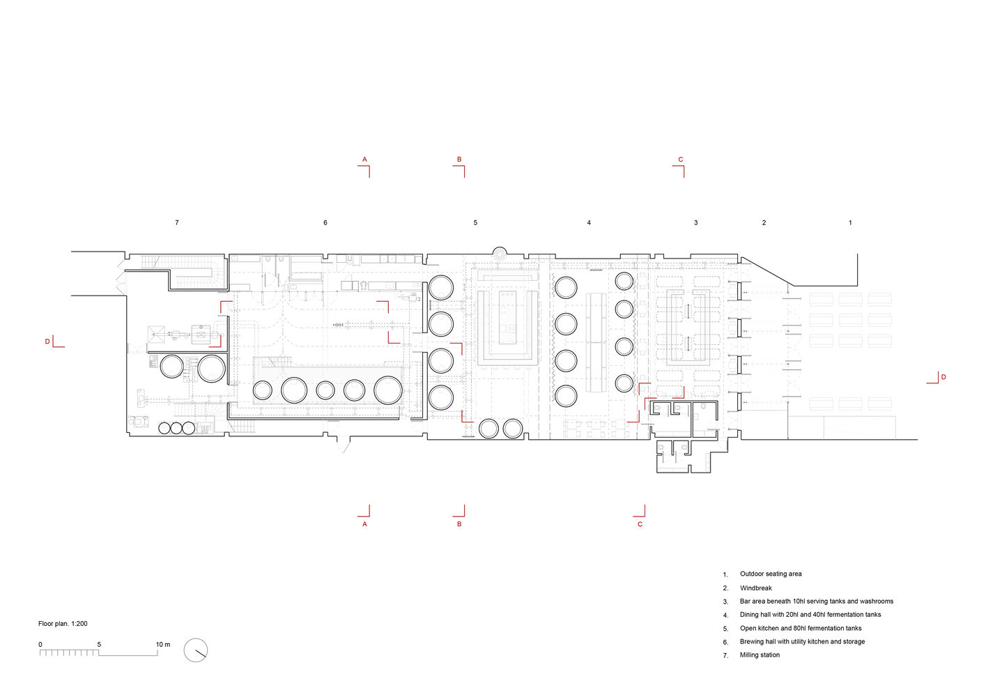
这座建于 1932 年的现代化大型屠宰场位于哥本哈根的肉类加工区,自 1991 年以来,它一直是各种商业活动的场所,如今已成为食品生产设施的 2.0 版。ÅBEN 位于市内,它恢复了该建筑的工业遗产,并通过邀请公众参与酿造过程将其内化,从而模糊了公众与生产之间的当代区别。最初,这里是冷冻大厅,980 具胴体悬挂在坚固的肉类悬挂轨道系统上 12 个小时,直到热量散尽。现在,轨道依然存在,但胴体已被用数公里长的裸露管道连接起来的钢制容器所取代。
半透明的帷幕让人联想到屠宰场的特色,低垂的镀锌钢板走道用于检修容器和锥形发酵罐,将公共空间部分隔开。这些罐子被放置在现有的屠宰场栏杆网格中,孤零零地矗立在典型的工厂锯齿状屋顶下的地板上,充分显示出天花板的延伸高度,确定了空间的一致节奏。酿酒设备与朴素的家具和简洁的空间相得益彰,将工业传统具体化,如同一张空白的画布,彰显出技术装置的风貌。
酿酒设备的摆放突出了原有大厅的特质,共同确定了空间布局和氛围。入口处没有天窗,天花板很低。天花板下横向悬挂的 14 个盛酒罐更突出了这种固有的亲密感,进一步压缩了空间体验,使其更接近人体的尺度。最后一个对外开放的空间除了最大的发酵罐外,还有一个开放式厨房岛,位于肉类悬挂轨道下方。
改造突出了两个相互关联的流程。从建筑的后部到前部,啤酒的生产变得越来越复杂,就像一条合理的生产线,而当客人走向原料产品的原产地时,这些空间作为工业设施变得更加纯粹和易懂。 这其中蕴含着实用主义的逻辑,因为该项目首先是根据生产原则进行规划的。
与此同时,它还旨在挑战当代工厂纯粹注重最大化生产率的理念。通过将几乎构成整个项目的每一个技术装置都视为一个空间装置,该项目试图探索原有食品加工设施与现代生产方式相结合的建筑潜力。
肉类加工区被指定为丹麦 25 个工业古迹之一,受到特殊保护,内部和外部都被列入名录。这次改造使这座建筑比以前更加接近其原始状态。这并不是对工业美学的浪漫化,而是合理而稳健的原则的体现,在努力简化生产的同时,也展现了其固有的建筑特质。
朴素低调的环境工业美学的浪漫的啤酒厂设计
客服
消息
收藏
下载
最近










