查看完整案例

收藏

下载
Socio-cultural and sports complex
is a sixth prize proposal by
Idelson Architecture
Roberto Cosenza
and
Federico Calabrese
for
Municipality of Gingins
. It is located in
Gingins
Switzerland
in a
countryside
setting. Its scale is medium with a surface of 3.500 sqm an estimated budget of 12.000.000 € and a ratio of 3.429 €/sqm. Key materials are
wood
and
plaster
.
Mograph Studio
collaborated as visualizer. Concepts such as
extension
plaza
platform
flexibility
sloped roof
and
ribs
are explored.
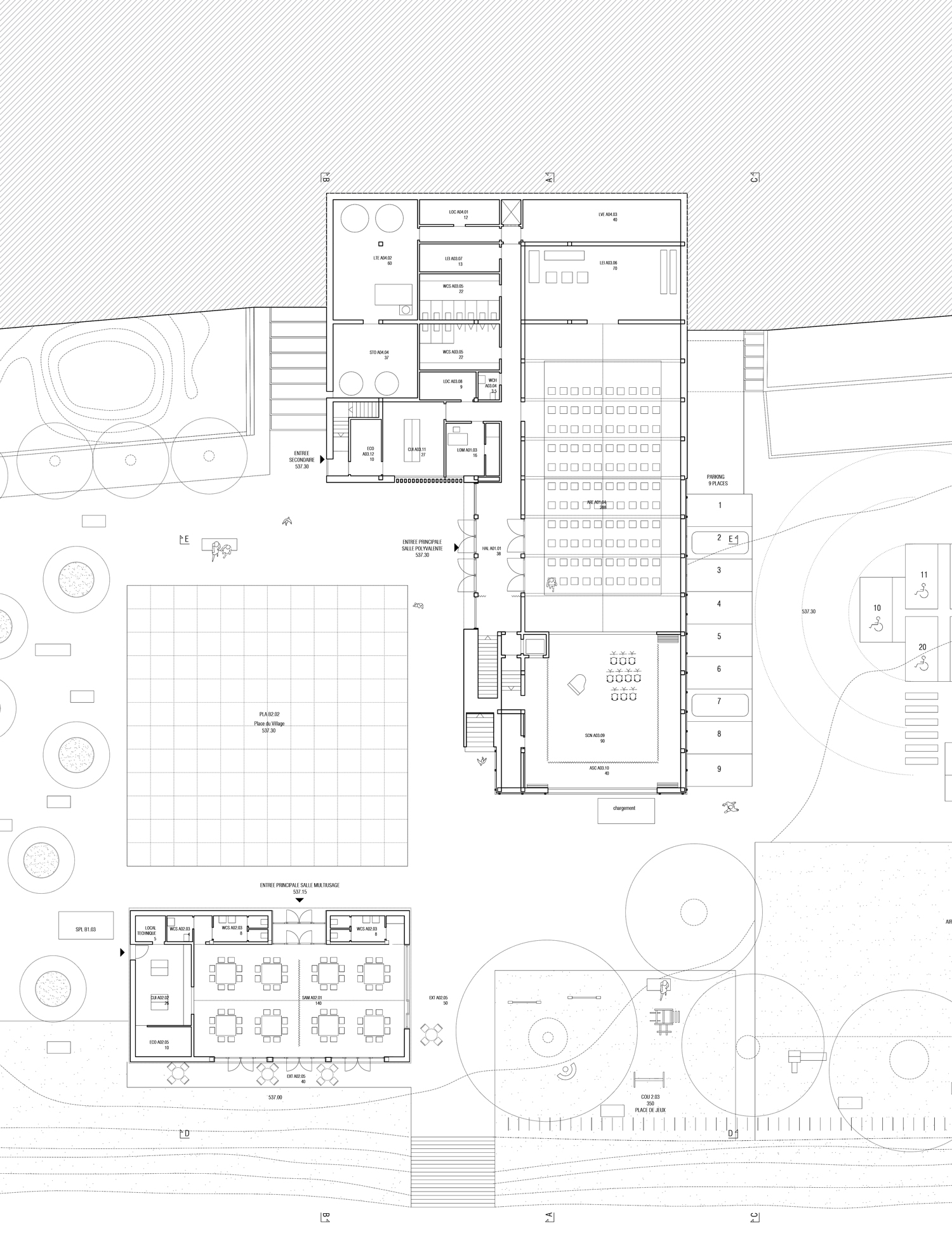
The Commune’s objective was to transform the site, located on the edge of the centre of Gingins, into a ‘village square’. A new multi-purpose facility is planned, capable of serving as both a gymnasium and an auditorium. The programme also included a modular hall that could be used for after-school activities as well as by associations and festive events, and a large parking area. We set up the functional units with a focus on the relationship with the land and landscape, with a strong desire to give meaning to the site around high-quality public spaces and their links with the existing site. The multi-purpose hall is located in such a way as to clearly separate the car park area from that of the new square, and its position, facing the football pitches to the south, opens up the visual field towards the valley and Lake Geneva from the upper square of the college and creates an axis linking the college to the future square.
客服
消息
收藏
下载
最近











