查看完整案例

收藏

下载
Evening in Istanbul / Sandbox Studio
Project: Evening in Istanbul
Architecture:
Sandbox Studio
Builder: Pacific Projects
Location:
Annandale
, New South Wales
,
Australia
Year: 2024
Photo Credits: Louise Wellington
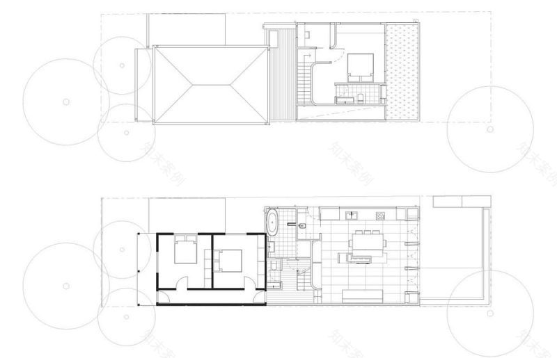
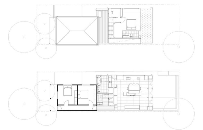
Evening in Istanbul House is a richly textured exploration of materiality and individuality that celebrates curved elements, bold colour, and creative collaboration. Inspired by the architectural legacies of Morocco and Turkey, this home fuses traditional warmth with a modern, eclectic spirit, resulting in a space that feels both dynamic and authentically personal.
Embracing Curves, Colour, and Craft
From the start, the design rejects the conventional white box approach in favour of fluid forms and inviting textures. Arched openings appear throughout the home, softening transitions between indoor and outdoor spaces and framing natural light. In addition, the use of curved elements and organic lines creates a playful rhythm that guides movement and enriches the living experience. A muted base materiality anchors the design, while bold accent pieces—such as artworks, ceramics, and unique objects—add personality and character.
A Harmonious Dialogue Between Old and New
The design pays homage to the past by referencing traditional motifs found in Moroccan and Turkish architecture. For example, the insertion of archways and patterned details evokes the softness of historical design, while contemporary joinery and bespoke furnishings speak to modern living. Moreover, the carefully chosen palette blends warm hues with subtle textures, creating tactile pauses that invite residents to explore and discover. This thoughtful layering of materials and forms not only creates visual interest but also establishes a connection between the older and newer spaces.
Connecting Interior and Exterior
Natural light and ventilation play a key role in animating the interior. Large openings and skylights work together to bathe each room in daylight, while cross-ventilation cools the space naturally. In addition, the design promotes a seamless connection between inside and out. Integrated joinery helps define distinct zones without disrupting the overall flow, ensuring that the home remains open and welcoming. A sculptural staircase, echoing the arched motifs, links the levels with graceful curves that signal the unity of traditional craftsmanship and contemporary design.
A Home That Reflects Its Owners
Throughout Evening in Istanbul House, every detail tells a story. The careful selection and application of each surface—whether through custom joinery, textured finishes, or artisanal details—showcase the owners’ passion for crafted design. In this home, spaces are not only designed to function but also to evoke emotion and foster creativity. In essence, the home serves as a canvas for personal expression, a reflection of its owners’ unconventional approach to living.
In summary, Evening in Istanbul House stands as a testament to creative collaboration and innovative design. It blends the rich heritage of its inspirations with modern techniques to create a sanctuary that is both energetic and timeless—a space where tradition and contemporary living coexist in perfect harmony.
客服
消息
收藏
下载
最近




















