查看完整案例

收藏

下载
Самые известные здания мира: Villa Savoye от легендарного Ле Корбюзье
Самые известные здания мира — в коллекции нашего сайта! Уважаемые посетители, посмотрите на этот парижский дом, включающий в себя все знаменитые Пять Пунктов Le Corbusier и созданный под влиянием опыта поколений архитекторов.
В 1920-х годах французский архитектор Le Corbusier (Charles-Édouard Jeanneret, 1887-1965) разработал свои главные Пять Пунктов Новой Архитектуры, публикуя статьи в журнале L’Esprit Nouveau и принимая участие в множестве жилищных комиссий. Кульминация наступила в 1931 году с окончанием строительства в пригороде Парижа Villa Savoye, которая и по сей день считается одним из самых важных зданий модернизма.
Дом включает в себя все Пять Пунктов – опоры, сад на крыше, свободное проектирование первого этажа, горизонтальные окна и свободная конструкция фасада. Манипуляции с абстрактными формами, ломающие традиционные исторические стандарты, повлияли на много поколений архитекторов.
Немного о Villa Savoye
год постройки: 1931;
архитекторы: Le Corbusier и Pierre Jeanneret;
местоположение: Poissy, Франция;
площадь: 125 м
2
.
Эта загородная вилла, построенная для Pierre и Emilie Savoye, находится примерно в 32 километрах к западу от Парижа. В те времена здесь была живописная сельская местность. Le Corbusier, который работал в течение двух десятилетий со своим двоюродным братом Pierre над этим и другими проектами, превратил здание в конкретную реализацию Пяти Пунктов. На примере этого особняка он доказал, какие огромные возможности для декорирования открываются, если воспользоваться его теорией.
Его конструкцию можно также рассматривать как подчёркнутую демонстрацию трёх основных архитектурных элементов: горизонтальных плит (этажей), вертикальных опор (колонн) и стен (особенно фасадов). Lance Lavine в своей книге «Механика и смысл в архитектуре» (Mechanics and Meaning in Architecture) проводит параллели между исследованиями Le Corbusier и открытиями в физике на рубеже веков, а именно — составляющими атомов: электронов, протонов и нейтронов.
Достижения науки и техники оказали большое влияние на Le Corbusier, и Villa Savoye он представил как «машину для жизни» – именно так говорил архитектор, чтобы выразить суть его творения.
В последующие десятилетия территория вокруг Villa Savoye изменялась и развивалась, но присвоение зданию статуса французского национального памятника в 1960 году позволило сохранить его в практически первозданном виде (не говоря уже о том, что этот статус спас особняк от разрушения — ведь после того, как владельцы покинули дом во время Второй мировой войны, он пришёл в запустение, а одно время там был даже сарай для сена).
Деревья возле южной стороны квадратного дома так же хороши, как и во времена его строительства, а вот вид с северной и западной стороны был иным — тогда эти фасады были скрыты деревьями от школы и других зданий.
Аллея с южной стороны была призвана создать у гостей (несомненно, прибывающих на автомобиле) первое приятное впечатление о вилле. Как мы увидим далее, у этой дизайнерской идеи есть своеобразное продолжение. Le Corbusier она напоминала о подходе к Парфенону в Афинах. Здесь она представляет собой своего рода современную интерпретацию античности.
Le Corbusier писал, что у здания не должно быть фасада в классическом понимании, дом должен быть открытым со всех четырёх сторон. Тем не менее, южная сторона дома выглядит как тыльный фасад. Этот вход — главный, и он лишь намекает на то, какова вилла на самом деле.
Одна из самых ярких архитектурных деталей первого этажа – широкий навес, который окружает здание с трёх сторон. Пространство между опорными колоннами и наружной стеной здесь достаточно широко для того, чтобы мог проехать автомобиль.
Стены первого этажа с северной стороны дома выстроены полукругом на основе радиуса поворота автомобиля. Машины семьи Savoye — у каждого из троих домочадцев был свой автомобиль — останавливались здесь перед тем, как шофёр отводил их в трёхместный гараж, расположенный в западной части дома.
Эта сторона архитектурно более интересна, чем южная. Здесь ясно выражены все Пять Пунктов архитектора. Главный — второй — этаж поднят над землёй с помощью колонн. Стены первого этажа освобождены от этих опор. Вдоль всего второго этажа протянулись ленточные окна. Окно перед колоннами демонстрирует открытый фасад. Изогнутое ограждение крыши очерчивает границы сада на верхней террасе.
Вот ещё одна из интересных тонкостей дизайна, подробно описанная в книге LaVine: стандартная конструкция может выглядеть весьма необычно благодаря новаторскому архитектурному подходу. Посмотрите, как это выглядит: колонна, которая при стандартном расположении находилась бы внутри, сразу за входной дверью, и мешала бы войти в дом, вынесена далеко под навес. Это позволило и сохранить гармонию элементов конструкции, и обеспечить надёжность.
Corbusier удвоил количество колонн в одном направлении (слева направо на фото) и сдвинул их в другом; парные колонны и несущие балки видны сквозь стекло по бокам от входной двери. Такая структурная гибкость становится возможна благодаря использованию бетона, из которого сделаны элементы конструкции здания.
Кроме того, эти опоры (то, что LaVine называет условной структурой — в отличие от рациональной структуры интерьера) не просто «обслуживают» входную дверь, но и поддерживают пандус, ведущий от крыльца до крыши.
Давайте посмотрим на дом с того же ракурса, который открывается перед гостями Villa Savoye: с одной стороны мы увидим пандус, с другой — винтовую лестницу в доме, а между ними — умывальную раковину, встроенную в колонну. За ней расположены комнаты горничных и прачечная.
Поднимаясь по винтовой лестнице или спиралевидному пандусу, можно постепенно увидеть дом и окрестности со всех сторон. Оба пути ведут на второй этаж — к большой гостиной и террасе с южной стороны дома. Пандус поднимается выше, к обустроенному на крыше саду, а от террасы его отделяет прозрачная стеклянная стена.
Прежде чем отправиться в гостиную, давайте взглянем на спальню. Она находится в юго-восточном углу дома. Сплошная лента окон позволяет хорошо разглядеть окружающий пейзаж.
Этот вид интересен ещё и потому, что показывает, какие цвета Corbusier выбрал для интерьера (и экстерьера, учитывая, что на первом этаже стены окрашены зелёным; известная выставка «Международный Стиль» и книга 1932 года описывают крышу, как «синюю и розовую», хотя после восстановления дома все стены стали белыми). Изящная перегородка с закруглённым углом отделяет спальню от прилегающей ванной комнаты.
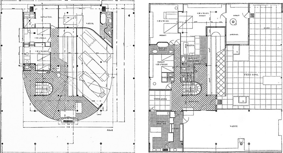
В конце статьи приведены поэтажные планы, на которых можно в деталях рассмотреть все особенности планировки дома.
Пройти к спальне владельцев дома можно через коридор рядом с ванной. Вид, открывающийся из спальни, показывает, как объединяет эти две комнаты волнообразная «банная» скамья, напоминающая знаменитые шезлонги Corbusier (если присмотреться к снимкам, то можно увидеть такие шезлонги в гостиной и холле).
Ванная комната на Villa Savoye отлично иллюстрирует интерьер открытого типа — один из Пяти Пунктов Corbusier, — однако делает это весьма тонко. Как и повсюду в этом доме, колонны не являются несущими конструкциями. Здесь они стоят на небольшом расстоянии от стен.
Гостиная очень просторна даже по сегодняшним меркам. Она действительно может рассматриваться как прародитель современных открытых планировок. Так она выглядит, если смотреть из кухни. На переднем плане — столовая, а условная «линия разграничения» между ней и гостиной проходит от камина до стула напротив него.
Продление горизонтального окна гостиной на террасу не только обеспечивает единство интерьера и экстерьера, но и позволяет беспрепятственно любоваться пейзажем как из комнаты, так и с террасы.
Огромные раздвижные стеклянные стены, которые обращены на юг, объединяют гостиную и террасу, даря комнате обилие солнечного света, а встроенный стол даёт возможность пообедать на свежем воздухе.
Философский подход позволяет рассматривать этот дом как трёхуровневое иерархическое представление опыта и значения. Небольшой первый этаж оснащён навесом, который увеличивает жилое пространство этажом выше. Второй этаж — это защищённое, приватное пространство, которое в то же время достаточно открыто благодаря ленточным окнам по всем периметру дома. А с крыши взгляду открываются просторы, скрытые за деревьями.
Именно ради великолепного вида, который открывается за деревьями, и были спроектированы окна с северной стороны. Этот проём (в 1931 году не было здания на заднем плане) позволяет взглянуть очень далеко. Это кульминация архитектурной идеи, которая продумана до мелочей и включает в себя и навес первого этажа, и изящную лестницу, и все детали интерьера. Несомненно, этот дом обязательно следует посетить! И статус национального памятника позволяет это сделать любому гостю.
客服
消息
收藏
下载
最近


















