查看完整案例

收藏

下载
Residencias K’in en Tulum / Holland Harvey Architects
Residencias K’in en Tulum / Holland Harvey Architects
Curado por
María Francisca González
Arquitectos:
Holland Harvey Architects
Año:
2020
Fotografías:
Studio Archetype
Categoria:
Hoteles
Arquitecto A Cargo:
Rachael Stocker
Equipo De Diseño:
Holland Harvey Architects
Ciudad:
Tulum
Pais:
México
Como parte del plan maestro para el desarrollo y la evolución de
Tulum
, en la costa caribeña de México, se ha instalado K'in, un desarrollo inmobiliario de 8 casas comunitarias unifamiliares sostenibles. El proyecto tiene como objetivo definir un nuevo estándar de diseño con conciencia ambiental en la Riviera Maya.
Mapa del sitio
Desde el principio, el equipo ha trabajado con jardineros y botánicos locales para establecer una agenda ecológica para el proyecto, incluida la conservación de árboles, la provisión de hábitats para especies nativas y la plantación de árboles frutales nativos.
El proyecto está comprometido con el reemplazo de todos los árboles removidos y el paisaje se manejará activamente para estimular el desarrollo de la flora y fauna nativa. El impacto del proyecto se minimizó con el 60% del sitio retenido como paisaje permeable o suelo natural.
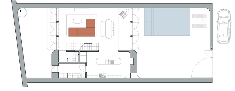
Planta baja
Planta primer piso
La planta baja está definida por un singular muro de piedra que enmarca y soporta los niveles superiores. Formado por piedra caliza local, el conjunto de edificios utiliza residuos de construcción de otros desarrollos de la región, una característica arquitectónica notable.
En su arquitectura se han reformulado los límites entre interior y exterior. La planta baja es ahora la extensión de los jardines, y viceversa, mientras que las piscinas privadas incrustadas en el paisaje se refieren a los icónicos "cenotes" por los que la zona es bien conocida.
Las casas están diseñadas para ser ventiladas pasivamente con fachadas totalmente abiertas en dos lados. Los pisos superiores están cubiertos con parabrisas plegables de altura completa, hechos de madera dura sostenible, que ofrecen privacidad y minimizan la ganancia solar, permitiendo al mismo tiempo que la brisa natural enfríe los ambientes, reduciendo la necesidad de enfriamiento mecánico.
En el interior, los espacios y balcones de doble altura ayudan a que el aire circule libremente y crean oportunidades para enmarcar vistas impresionantes del bosque circundante. La palapa de la azotea ofrece un panorama de 360 grados de las copas del bosque y vistas íntimas de la vida silvestre tropical. Una cocina, una sala de estar y un comedor totalmente equipados animan a los residentes a pasar tiempo entre los árboles: la verdadera vida de la selva.
Ubicación para ser utilizado sólo como referencia. Podría indicar ciudad / país, pero la dirección no exacta.
Holland Harvey Architects
客服
消息
收藏
下载
最近
















