查看完整案例

收藏

下载
Кирпичная реконструкция
Объект: Офисное здание на Второй Боевской
Адрес: Россия, Москва. ул. Боевская, д. 3
Мастерская: Архитектурная мастерская Лызлова («АМЛ»)
Авторский коллектив:
Проектировщик: мастерская «АМЛ»
Архитекторы: Н. Лызлов, Ю. Головина, А. Шомова
Генподрядчик: «КVEST»
Реставрация: «Новый камень»
Конструкции из стекла: «Техфасад»
Столярные изделия: компания «СтолярШШик» (М.Ширяев)
Ландшафт и благоустройство: ландшафтная группа «АФА» (А.Фронтов)
Осветительное оборудование: «Martini»
Художественная ковка: «Stone & Steel» (Ю.Викторов)
Конструктор: П. Смолко
Инженер: «М-Проект» (О. Драчев)
Худудожник: Б. Бельский
Реконструкция здания XIX века от бюро Николая Лызлова, лауреат «Золотого сечения».
Офисное здание на ул. 2-ая Боевская
Николай Лызлов реконструировал кирпичный корпус XIX века, примыкающий к советскому зданию общежития Лингвистического университета (бывший пединститут иностранных языков) на Боевской улице, превратив его в офис железнодорожной компании РусАгроТранс, и получил за эту работу диплом лауреата «Золотого сечения» 2015 года. Надстройку сталинского времени разобрали и заменили новой, с тремя этажами внутри вместо двух и похожим кирпичом стен. Стены XIX века вычинили, используя кирпич из внутренних перегородок; цоколь облицевали камнем. Интерьеры же – дают посетителю испытать целых три «средовых ощущения».
Описание от архитектурной мастерской:
Рассматриваемый участок расположен в ВАО на пересечении Бабаевской и 2-й Боевской улиц, в 500 метрах к востоку от станции метро «Сокольники» и 200 метрах от ближайших остановок общественного транспорта. Реконструкции подлежало нежилое четырёхэтажное здание. Юго-восточная граница участка выходит на 2-ю Боевскую улицу, с которой осуществляется подъезд к зданию. Юго-западный фасад примыкает к зданию общежития, образуя замкнутый контур внутреннего двора. Проезд во двор предполагается через существующие арки в образующий контур зданий. Окружающая застройка представлена жилыми зданиями от пяти до восьми этажей.
Изначально реконструируемое здание представляет собой двухэтажный красно-кирпичный корпус училища, построенный в конце XIX века и ориентированный перпендикулярно к 2-й Боевской улице, которая тянется между Стромынкой и Матросской Тишиной. От клуба Русакова, с Бабаевской, просматривается торец здания. В сталинское время образовательное учреждение было переоборудовано под фабрику и надстроено парой этажей. Очевидно, тогда же территория оказалась замусоренной одноэтажными строениями. Уже в постсоветское время верхние два этажа здания были забраны сайдингом.
Стояла задача приспособить бывшее училище, а потом промышленное здание под офис компании, специализирующейся на железнодорожных грузоперевозках.
В ходе реконструкции была произведена разборка надстройки и тщательная вычинка стен здания. Там, где были повреждения, родным кирпичом, аккуратно извлечённым изнутри мощных стен здания, удалось натачать, залатать имевшиеся прогалы. Из двух входов, в свое время обслуживавших две половины училища – мужскую и женскую, в качестве рабочего оставлен один, ближайший к Стромынке, второй используется как пожарный. Кованые козырьки – новые, выполненные по образцам, так как исторических не сохранилось. Штукатурный цоколь заменен на доломитовый – за исключением дворовой части, образуемой реконструируемым зданием и пристроенным к нему в шестидесятые годы общежитием лингвистического университета, выходящим на Бабаевскую улицу.
Офисное здание на ул. 2-ая Боевская. Фотография © Алексей Народицкий
Офисное здание на ул. 2-ая Боевская. Вход. Фотография © Алексей Народицкий
На красно-кирпичном основании нарастили красно-кирпичную же надстройку – по размерам один в один, только без характерных резных деталей: розеток, поясков и сандриков. Кирпич нюансно отличается от «оригинала», в том числе по цвету. В окнах верхних двух этажей появились металлические перемычки – под Альдо Росси, только цветом поглуше. Венчает дом простой карниз с выносом, а объединяющим «верх» и «низ» мотивом служит качественная деревянная столярка, выкрашенная в охристый тон.
Благоустройство без какого-либо намека на излишества: созвучные основному объему невычурные кирпичные столбики ограды, ворота и кованая решетка строгого ортогонального рисунка, лаконичные светильники, ровные, аккуратно стриженные зелёные газоны с усиливающей решеткой. Зелёные насаждения на участке представлены деревьями хвойной породы. Во дворе сохранены старые лиственницы, а также голубая ель в углу участка. Вдоль северо-восточной границы участка посажен ряд западных туй. При въезде со 2-й Боевской в ближайшее время должна появиться еще стеклянная будка охраны.
Офисное здание на ул. 2-ая Боевская. Фотография © Алексей Народицкий
В интерьере здания, после реконструкции четко различимы три образных слоя, которые генерируют соответствующие средовые ощущения – их можно условно обозначить как аутентичное, стерильное и атмосфера лофта. В здании они так и залегают – послойно.
Первые два этажа, а также подвал, часть которого отведена под кафе, а другая – под технические помещения, максимально расчищены от наслоений. Лишенные штукатурки с покраской и покрытые специальным лаком, красно-кирпичные стены предстали в своей неотредактированной первозданности. В нескольких местах, где нажитые временем щербины оказались невосстановимы, они без ложного стеснения прикрыты бетонными накладками-заплатками. Своды Монье также освобождены от штукатурки и выкрашены в белый цвет. Полы покрыты черной керамической плиткой с фактурой, а на рецепции они бетонные с крупноформатными «рваными» вставками из светлого мрамора. На контрасте – стеклянные перегородки-«невидимки». На этом суровом фоне акцентно смотрятся открытые батареи отопления – ещё сталинского призыва, но очищенные и обработанные металлической крошкой, росчерки светильников и скупая черно-белая шелкография. Ещё один потенциальный акцент – на лестнице: сохранившаяся со сталинских времен фреска, освобожденная от слоев краски, обтерханная, с отслаивающимися лоскутами – в ожидании реставрации. Деревянные лестницы были разобраны, вставлен металлический каркас – балки с косоурами, на которые опираются лестничные марши из монолита – что называется, «как он есть»: не подкрашенного и не зализанного. Ограждения – кованые, с дубовыми перилами.
Офисное здание на ул. 2-ая Боевская. Интерьер 1-2 этажей. Фотография © Алексей Народицкий
Офисное здание на ул. 2-ая Боевская. Интерьер 2 этажа
Фотография © Алексей Народицкий
Офисное здание на ул. 2-ая Боевская. Интерьер 1 этажа. Фотография © Алексей Народицкий
Пару надстроенных этажей отличает офисная сдержанность, но не без индустриальных референций. Стены покрыты светло-серой штукатуркой с затиркой под бетон. Полы – наливные, потертости воспринимаются как нечто само собой разумеющееся, как, скажем, в паркинге. Потолки, заметно более низкие, чем в исторической части – с подвешенной стильной решёткой и открытыми в интерьер воздуховодами. Радиаторы, светильники и мебель образуют ещё один визуальный слой, уводящий от дистиллированной безжизненности операционной.
Офисное здание на ул. 2-ая Боевская. Интерьер 3-4 этажей. Фотография © Алексей Народицкий
Офисное здание на ул. 2-ая Боевская. Интерьер. Фотография © Алексей Народицкий
Мансардный уровень – это классический офисный опен-спейс с верхним светом, отделенный от коридора полупрозрачной стеклянной перегородкой. Его отличительной особенностью оказывается стропильная конструкция из клееной сосны, открытая в интерьер и отсылающая к эстетике лофтов. Запах дерева наполняет пространство и сегодня, спустя полгода после сдачи объекта. О приятности тактильных ощущений можно не упоминать.
Офисное здание на ул. 2-ая Боевская. Интерьер мансарды. Фотография © Алексей Народицкий
Офисное здание на ул. 2-ая Боевская. Интерьер 1 этажа. Фотография © Алексей Народицкий
Офисное здание на ул. 2-ая Боевская. Интерьер 1 этажа. Фотография © Алексей Народицкий
Офисное здание на ул. 2-ая Боевская. Интерьер 1 этажа. Фотография © Алексей Народицкий
Офисное здание на ул. 2-ая Боевская. Интерьер 1 этажа. Фотография © Алексей Народицкий
Офисное здание на ул. 2-ая Боевская. Фасад © Архитектурная мастерская Лызлова
Офисное здание на ул. 2-ая Боевская. Фасад © Архитектурная мастерская Лызлова
Офисное здание на ул. 2-ая Боевская. Фасад © Архитектурная мастерская Лызлова
Офисное здание на ул. 2-ая Боевская. Фасад © Архитектурная мастерская Лызлова
Офисное здание на ул. 2-ая Боевская. Фасад © Архитектурная мастерская Лызлова
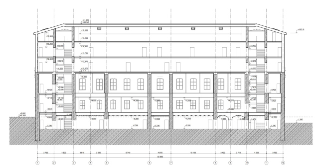
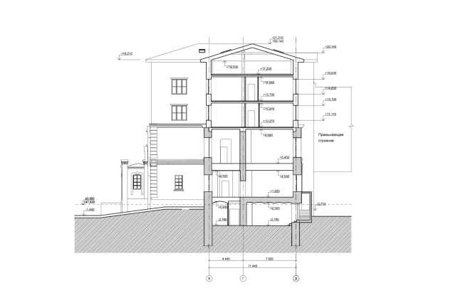
Офисное здание на ул. 2-ая Боевская. Разрез © Архитектурная мастерская Лызлова
Офисное здание на ул. 2-ая Боевская. Разрез © Архитектурная мастерская Лызлова
Офисное здание на ул. 2-ая Боевская. Разрез © Архитектурная мастерская Лызлова
Офисное здание на ул. 2-ая Боевская. Разрез © Архитектурная мастерская Лызлова
Офисное здание на ул. 2-ая Боевская. Функциональное зонирование подвала © Архитектурная мастерская Лызлова
Офисное здание на ул. 2-ая Боевская. Функциональное зонирование 1 этажа © Архитектурная мастерская Лызлова
Офисное здание на ул. 2-ая Боевская. Функциональное зонирование 2 этажа © Архитектурная мастерская Лызлова
Офисное здание на ул. 2-ая Боевская. Функциональное зонирование 3 этажа © Архитектурная мастерская Лызлова
Офисное здание на ул. 2-ая Боевская. Функциональное зонирование 4 этажа © Архитектурная мастерская Лызлова
Офисное здание на ул. 2-ая Боевская. Функциональное зонирование мансарды © Архитектурная мастерская Лызлова
Офисное здание на ул. 2-ая Боевская. Генеральный план © Архитектурная мастерская Лызлова
客服
消息
收藏
下载
最近































