查看完整案例

收藏

下载
Пароход у причала Алла Павликова
Объект: Дом «Пароход»
Адрес: Россия, Москва. проезд Досфлота, вл.10, стр.1
Архитектор: Илья Машков
Мастерская: Мезонпроект
Авторский коллектив: ГАП – Е.И. Григорова, А.В. Колпиков, А.Б. Хлопцова ГИП – А.Ю. Дундуков
Апарт-отель, похожий на корабль с широкими палубами, спроектирован для участка на берегу Химкинского водохранилища в Южном Тушино. Дом-пароход, ориентированный на воду и Северный речной вокзал, словно «готовится выйти в плавание».
Апарт-отель планируется построить на левом берегу канала им. Москвы, вдоль проезда Досфлота. Участок расположен на первой линии, с выходом на городской пляж, и отделен от воды только широкой полосой деревьев. Г-образная площадка вытянута вдоль берега. Прежде ее занимало пятиэтажное кирпичное здание гостиницы, давно заброшенное и теперь определенное под снос.
Дом «Пароход»
© Мезонпроект / предоставлено пресс-службой Москомархитектуры
Окружение вокруг – микрорайонное: жилые кварталы, две школы, детский сад – все в густых зарослях лиственных деревьев. Практически вся застройка располагается по другую сторону от проезда Досфлота. С ней новый дом будет взаимодействовать в меньшей степени, а в большей – с каналом им. Москвы и его противоположным берегом, на котором доминантно обозначается шпиль недавно отреставрированного Северного речного вокзала. С мая по октябрь от его причала отходят десятки круизных теплоходов – зрелище завораживающее. И именно оно, по всей вероятности, определило основную идею проекта: дом, похожий на корабль – дом-пароход.
Дом «Пароход». Схема ситуационного плана
© Мезонпроект
Проект разработан архитектурным бюро «Мезонпроект» по заказу компании «Капитал-Инвест» в 2017. Одной из задач, которую архитекторы поставили перед собой, было сохранить существующие деревья, плотно обступающие площадку со всех сторон, но при этом максимально раскрыть обзор на воду и противоположный берег канала. Отсюда простая и ясная композиция, повторяющая очертания участка и ранее располагавшегося на нем дома. Небольшой отступ от границ сделан только со стороны двора – для организации благоустроенной площади перед входом в лобби отеля.
Дом «Пароход». Схема планировочной организации земельного участка
© Мезонпроект
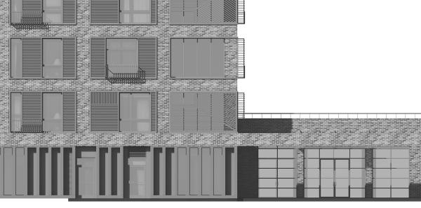
Комплекс разделен на два отдельных корпуса, поставленных перпендикулярно друг к другу и сращенных в уровне первого этажа общим стилобатом. Как рассказывает руководитель архитектурного бюро Илья Машков, первоначально авторы рассматривали вариант цельного здания, повторяющего форму участка, но затем возникла идея разделить объем на два корпуса для более легкого восприятия. Один, протяженный корпус высотой пять этажей, фиксирует границу вдоль проезда Досфлота, но смотрит на воду. Второй – шестиэтажный блок, обращен к каналу торцом, и именно этот торец выступает в роли главного фасада. Он же создает художественный и смысловой портрет всего комплекса.
Дом «Пароход»
© Мезонпроект / предоставлено пресс-службой Москомархитектуры
Контур дома, если смотреть на него анфас, – достаточно простой, двучастный, без заметного перепада высот, с широким просветом между корпусами. Зато при взгляде под углом сразу обозначается силуэтный скос – террасы-«палубы», мачты и трубы, лестницы-«трапы», по которым, кажется, вот-вот начнут взбираться бравые матросы. Трубы, большие и высокие, как на самых первых пароходах – не что иное, как вытяжные шахты; обычно их принято скрывать, а здесь акцентировали «по-роджеровски». Террасы, предусмотренные на каждом этаже, тоже вполне функциональны – жильцы смогут выходить на них, чтобы полюбоваться панорамой Химкинского водохранилища.
Дом «Пароход» © Мезонпроект
Дом «Пароход» © Мезонпроект
Дом «Пароход» © Мезонпроект
Дом «Пароход» © Мезонпроект
Дом «Пароход» © Мезонпроект
Дом «Пароход» © Мезонпроект
Дом «Пароход» © Мезонпроект
Дом «Пароход» © Мезонпроект
Дом «Пароход»
© Мезонпроект
Более того, это не вполне дом-корабль в смысле модернистского штампа – хотя трубы вентвыходов происходят как раз оттуда, но здесь «корабль» подвергнут деконструкции: может он корабль, а может, и пристань. Во всяком случае никакого намека на аэродинамическую форму, нос и корму здания, которое вот-вот да поплывет, здесь нет: скорее нам показывают набор элементов корабля-парохода, предлагая оценить несколько брутальную пластичность террас-палуб, которые кажутся проросшим не берегу канала фрагментом какого-то залетного «Титаника». Но именно фрагментом и декорацией, заявкой на дискурс, а не подобием.
Илья Машков, Мезонпроект
«Идея дома-парохода возникла уже после того, как мы нарисовали террасы и трубы. Тогда мы решили усилить возникший образ, добавить элемент узнаваемости, попытались придать трубам скульптурность, а террасам – сходство с палубами морского судна».
Такое решение с широкими ступенями террас, поднимающихся от воды к берегу, больше характерно для южной курортной архитектуры. Однако и здесь, на северо-западе Москвы, из-за близости к воде и живописности окружения оно выглядит уместно. Надо сказать, что ассоциация с курортом весьма мимолетная и полностью исчезает при детальном рассмотрении фасадов. В выборе материалов, пропорциях окон, высоте этажей – во всем есть отсыл к промышленной архитектуре. Даже трубы, которые изначально напомнили нам о пароходе, легко становятся частью сюжета о фабрике начала XX столетия.
Дом «Пароход»
© Мезонпроект / предоставлено пресс-службой Москомархитектуры
Соединить эти две, казалось бы, совершенно разные истории – про пароход и фабрику – авторы проекта решили с целью «успокоить» фасады, сделать их строже, сдержанней. «Первые варианты были более корабельными, – рассказывает Илья Машков, – с белыми корпусами и цветными трубами. Потом решили уйти от такого прямого прочтения в сторону образа фабрики. Так появились красный кирпич, высокие окна и металлические элементы декора».
Дом «Пароход»
© Мезонпроект
В качестве основного облицовочного материала выбрана керамическая плитка с фактурой красного кирпича. Кирпичные поверхности сочетаются с металлическими. Из металла выполнены решетки для кондиционеров, декоративные экраны возле окон, ограждения французских балконов, облицовка труб воздуховодов, а также пожарные лестницы, окрашенные в черный цвет и выведенные на фасад. Последний прием заставляет вспомнить не только о российских фабриках начала прошлого века, но и о жилых кварталах Нью-Йорка, для которых стальные пожарные лестницы с балконами стали своего рода визитной карточкой. К слову, краснокирпичные стены, так называемый brownstone, и большие окна вкупе с ажурными лестничными пролетами – классика нью-йоркской архитектуры.
Дом «Пароход»
© Мезонпроект
Обращаясь к узнаваемым и традиционным образам прошлого, дом не забывает отдать дань приемам современности: отсюда – сбитый ритм фасадной сетки, который создается за счет разноразмерных окон, и цветные вставки из профлиста. Из него авторы формируют настоящие художественные панно с радугой оттенков – от темного земляного до лавандового. Все это приправлено пластикой – объемные и вогнутые вертикальные панели рождают дополнительную игру света и тени. Кажется, что таким образом дом отзывается на закатные краски Химкинского водохранилища, ведь только фасады, обращенные к воде, получили вкрапления цвета.
Дом «Пароход»
© Мезонпроект
Проезд Досфлота – место тихое и зеленое, он повторяет траекторию изгиба канала и вполне сошел бы за лесную тропу, если бы не асфальтовое покрытие. Сюда выходит самый спокойный с точки зрения пластики и цвета фасад комплекса. Он поддерживает характер окружения и удачно вписывается в контекст по высоте, с понижением в сторону воды. Самая акцентная деталь комплекса с этого ракурса – декоративная металлическая пергола на кровле, окрашенная в тон фасадной плитки. Предполагается, что в этой части кровля будет эксплуатируемой. Эта благоустроенная зона под навесом станет дополнительным местом отдыха для жильцов, что актуально, учитывая дефицит дворового пространства.
Верхушке здания с перголой вторит оформление стилобатной части, решенной в той же решетчатой стилистике. В первых этажах планируется разместить большое лобби для жильцов, офисные помещения и кафе. В сторону улицы кафе будет открываться большими стеклянными витражами, приглашая внутрь жителей соседних жилых кварталов. Вдоль всего уличного фасада протянется зеленая аллея.
Дом «Пароход»
© Мезонпроект
В сторону двора и реки в первом этаже выходят апартаменты с остекленными террасами с обрамлении светлых тонких рамок.
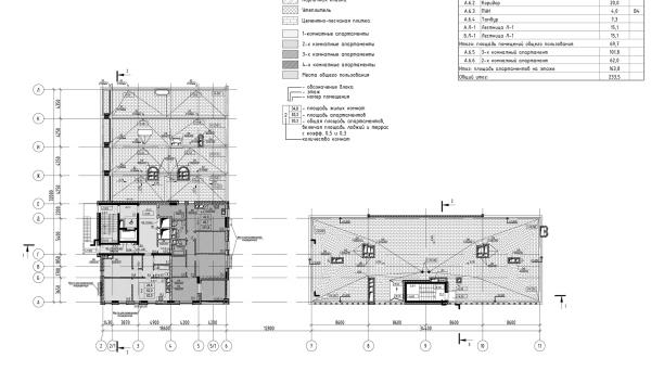
В здании общей площадью около 6 000 м² будут представлены апартаменты разной конфигурации и размеров – от однокомнатных до четырехкомнатных. Везде предусмотрена возможность организации полноценной кухни. Подземный этаж займет паркинг на 27 машиномест.
Дом «Пароход». План -1 этаж © Мезонпроект
Дом «Пароход». План 1 этаж © Мезонпроект
Дом «Пароход». План 2 этаж © Мезонпроект
Дом «Пароход». План 3 этаж © Мезонпроект
Дом «Пароход». План 4 этаж © Мезонпроект
Дом «Пароход». План 5 этаж © Мезонпроект
Дом «Пароход». План 6 этаж
© Мезонпроект
Дом «Пароход». Разрез 1-1 © Мезонпроект
Дом «Пароход». Разрез 2-2 и 3-3
© Мезонпроект
В 2020 проект апарт-отеля попал в число финалистов премии Москвы в области архитектуры и градостроительства. Ранее он получил одобрение госэкспертизы и теперь ждет реализации.
客服
消息
收藏
下载
最近
























