查看完整案例

收藏

下载
Дворцовый переворот
Объект: Городской Дворец Культуры им. Т.Н. Хренникова
Адрес: Россия, Елец. ул. Радиотехническая, д.6а
Мастерская: Высота
Авторский коллектив: Алексей Боев, Дарья Наугольнова
Еще один ДК, который возвращает к жизни команда «Идентичность в типовом», на этот раз – в Ельце. Согласно программе, универсальные решения встречаются с локальными особенностями, благодаря чему появляется новая точка притяжения.
Команда проекта «Идентичность в типовом» специализируется на возвращение к жизни Домов и Дворцов культуры, которых в стране, по подсчетам, осталось больше 40 тысяч. Глобальная миссия – возродить сеть культурных учреждений шаговой доступности, для чего архитекторы ищут универсальные решения, которые можно применять в любом регионе, – и это не только новые фасады, но и социо-культурная программа и жизнеспособная экономика. На счету команды реализованный проект в родном для основателей проекта Алексея Боева и Дарьи Наугольновой Воронеже, на подходе ДК Череповца и Якутска. Сегодня рассказываем о том, как преобразится Дворец культуры в Ельце.
Здание Дворца культуры при заводе «Эльта», который выпускал кинескопы для телевизоров, было построено в 1975 году строительным трестом «Елецтяжстрой». По воспоминаниям очевидцев, своим оснащением и предоставляемыми возможностями он затмил даже старый городской Дом культуры. ДК «Эльта» успешно продолжал работать даже после ликвидации завода, до недавнего времени в нем занималось около трех десятков коллективов. При этом количество посетителей в год не превышало 600 тысяч человек. А техническое состояние здания, которое с момента постройки ни разу капитально не ремонтировалось, требовало серьезной ревизии.
Городской Дворец Культуры им. Т.Н. Хренникова
© Высота
По словам главного архитектора Ельца Марины Молодых, «ДК «Эльта» для Ельца – это центр притяжения. В нем проводились все самые основные культурные мероприятия. Но в 2019 году были выявлены проблемы с фундаментом и стенами здания. Перед руководством города и края встал вопрос о целесообразности проведения реконструкции или строительстве нового Дворца культуры. Только после проведения дополнительной технической экспертизы, которая показала, что повреждения здания не столь значительны, как считалось, и несущие конструкции можно будет укрепить, было принято решение – все-таки проводить реконструкцию. По инициативе мэра Ельца Евгения Боровских была начата работа над проектом реконструкции, к которой было приглашено бюро «Высота».
Городской Дворец Культуры им. Т.Н. Хренникова
© Высота
Архитекторы бюро «Высота» и команда проекта «Идентичность в типовом» провели комплексное исследование и пришли к выводу, что существующее здание имеет ценность как постройка советского модернизма и большой эстетический и функциональный потенциал: красивое просторное двусветное фойе; киноконцертный зал на 600 мест с большой сценой и оркестровой ямой; вместительные лекционные, выставочные и репетиционные залы; уютный дворик, который образуют фланги здания. Но все эти пространства использовались нерационально, поскольку большая часть помещений была закреплена за отдельными творческими коллективами и пустовала, когда там не было занятий. Кроме того, работа в ДК велась, в основном, с двумя возрастными группами – детьми и пенсионерами, что так же приводило к неполной загрузке.
Городской Дворец Культуры им. Т.Н. Хренникова. Увеличение посещаемости © Высота
Городской Дворец Культуры им. Т.Н. Хренникова. Использование пространства © Высота
Городской Дворец Культуры им. Т.Н. Хренникова. Расширение спектра услуг © Высота
Городской Дворец Культуры им. Т.Н. Хренникова. Тайминг использования здания
© Высота
Стратегия программирования
На основе проведенного исследования команда проекта выявила дополнительные функции, которые будут востребованы молодежью и людьми трудоспособного возраста. Кроме эстетических и художественных направлений планируется развивать дисциплины, связанные с современными технологиями, со спортом и социальными проектами. Объединение старых и новых функций даст ДК возможность функционировать в формате культурно-образовательного кластера, места развития и приобретения новых навыков и укрепления социальных связей между жителями города. К прежним функциям также были добавлены кафе с видом во внутренний дворик и сувенирный магазин, в котором будет продаваться сувенирная продукция и изделия кружков, украшенные фирменным логотипом ДК.
Городской Дворец Культуры им. Т.Н. Хренникова. Малый концертный зал © Высота
Городской Дворец Культуры им. Т.Н. Хренникова. Кафе © Высота
Городской Дворец Культуры им. Т.Н. Хренникова. Библиотека © Высота
Городской Дворец Культуры им. Т.Н. Хренникова. Большой танцевальный зал © Высота
Городской Дворец Культуры им. Т.Н. Хренникова. Фойе 2 этаж © Высота
Новый план
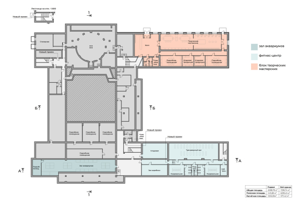
Для реализации новой программы была проанализирована существующая структура здания и определены места, требующие планировочных изменений. Основные корректировки затронули входную зону, где размещаются фойе, гардеробы и раздевалки, а также кружковые помещения, которые нуждаются в дополнительныех перегородках. Основной упор в проекте был сделан на оптимизацию взаимного расположения функциональных зон, ранее разбросанных по всему зданию. Для этого предлагается объединить их в тематические блоки: административный, репетиционный, образовательный.
Помещения для занятий станут мультифункциональными за счет применения мобильной мебели. Например, после перестановки библиотека станет пространством для образовательных программ, коворкинга и воркшопов, а в универсальных залах могут проводится как лекции, так и выставки.
Городской Дворец Культуры им. Т.Н. Хренникова. План 1 этажа © Высота
Городской Дворец Культуры им. Т.Н. Хренникова. План подвала © Высота
Городской Дворец Культуры им. Т.Н. Хренникова. План 2 этажа © Высота
Городской Дворец Культуры им. Т.Н. Хренникова. Разрез 1-1 © Высота
Городской Дворец Культуры им. Т.Н. Хренникова. Разрез 2-2 © Высота
Городской Дворец Культуры им. Т.Н. Хренникова. Разрез 3-3 © Высота
Городской Дворец Культуры им. Т.Н. Хренникова © Высота
Городской Дворец Культуры им. Т.Н. Хренникова © Высота
Городской Дворец Культуры им. Т.Н. Хренникова
© Высота
Руководство города стремится к комплексному развитию территории, поэтому в состав проекта вошло и благоустройство прилегающей территории, которая станет новым общественным пространством для этой части города. Авторы решили перепланировать и включить в проект реконструкции и прилегающую к ДК территорию – в сквере планируется выполнить благоустройство и обустроить его для отдыха и проведения мероприятий на открытом воздухе.
Городской Дворец Культуры им. Т.Н. Хренникова © Высота
Городской Дворец Культуры им. Т.Н. Хренникова
© Высота
Идентичность и ребрендинг
По словам Алексея Боева, анализ контекста, социальных и культурных традиций и других аспектов жизни горожан, позволил определиться с айдентикой и дизайнерскими решениями: «Основное направление нашей работы – исследование «Идентичность в типовом». Когда мы работаем над архитектурными проектами, то начинаем с поиска локальной идентичности, которая есть в этом месте и близка местным жителям. Например, в Ельце сохранилось старинное производство кружев. Эту тему мы задействовали на фасаде – разработали орнамент и сделали принт на стекле. А для того, чтобы акцентировать в архитектуре Дворца эстетику советского модернизма и сделать его более парадным и представительным, мы решили добавить в отделку фасада материалы, напоминающие по текстуре и цвету натуральный камень – песчаник, который добывается в Липецкой области. И скомбинировать его с анодированным алюминием, который планируем использовать при изготовлении рам, импостов и витражей».
Городской Дворец Культуры им. Т.Н. Хренникова. Концепция фасадов
© Высота
Новую жизнь в старые стены поможет вдохнуть и созданная авторами выразительная символика – логотип, который символизирует пять функций, задействованных в работе Дворца: искусство, знания и навыки, сообщества и инициативы, история и традиции, здоровье и спорт. В его основу легли узоры, встречающиеся в традиционных ремеслах Ельца.
Узнаваемый, позитивный логотип будет сопровождать всю деятельность Дворца культуры. В том числе им будет отмечена собственная продукция ДК. Появление собственной сувенирной продукции очень важно для успешной работы общественного центра, поскольку позволяет ДК самостоятельно зарабатывать на свои нужды, сокращая дотации из городского бюджета.
Городской Дворец Культуры им. Т.Н. Хренникова. Брендинг. Логотип и паттерны © Высота
Городской Дворец Культуры им. Т.Н. Хренникова. Брендинг. Логотип и паттерны © Высота
Городской Дворец Культуры им. Т.Н. Хренникова. Брендинг. Фирменный силь © Высота
Проведенное бюро «Высота» и командой проекта «Идентичность в типовом» исследование и комплексный подход в проектировании позволит создать точку притяжения – современный общественный центр, отвечающий нуждам жителей Ельца. А выявленная авторами локальная идентичность подчеркнет ценность местных традиций, промыслов и сложившегося обихода.
Городской Дворец Культуры им. Т.Н. Хренникова © Высота
Городской Дворец Культуры им. Т.Н. Хренникова © Высота
客服
消息
收藏
下载
最近






























