查看完整案例

收藏

下载
戈者设计
砖石结构现代化诠释的学校设计
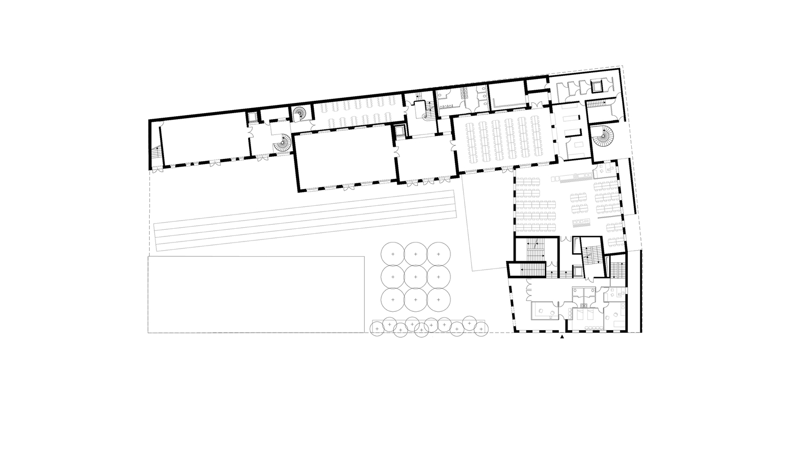
由Fayolle Pilon architectes associés团队设计的Notre-Dame des Oiseaux高中的扩建-改造项目位于巴黎16区中心的Michel-Ange街。除了对19世纪的建筑进行部分翻新外,该项目还需要拆除一个旧的适应性展馆,以实施一个丰富、复杂的项目,包括一个实验室、教室、办公室、图书馆、现有餐厅的扩建和一个被掩埋的体育馆。
学校在施工期间保持开放,这需要在这个非常密集的场地进行精确的规划。该机构被植入从布洛涅森林到塞纳河的大型城市景观中,尽管街道是在1862年创建的。新的建筑正在成为现有建筑正面的一部分。
建筑的定义是简单和清醒,在一个很长的时间段内寻找一个铭文,既是城市和机构的特征,也是它的价值。该计划的雄心,现有建筑的突出,以及监管要求,导致了一个紧凑、高效的组织,利用所有的场地潜力,尽管该建筑由两个主要部分组成。主体部分,六层楼的底层,遵循街道的总体结构。它与第二部分的三层梯田相衔接。
这允许表面优化,同时,它允许设施:天井是在场地限制上创建的,为了邻居的利益,梯田揭示了现有的19世纪建筑的历史外墙。体育馆的地下植入是引导项目整体组织的一个重要决定。它的方向与现有建筑平行,允许用一个独特的电梯为整个建筑服务。
改造包括结构工程和一些机会主义的干预措施,其目的是改善学校的日常生活。通过在现有建筑和新建筑之间建立联系,改善了设施的统一性,有利于流动的功能和全球安全的方法。
该建筑表达了对砖石结构的具体工作,在体量和托架的工作中以一种现代的方式重新诠释。它的材料,以砖、混凝土和玻璃为主,在建筑和米歇尔-安格街中找到了亲缘关系。实体部分由金黄色的手工砖包覆,让人联想到巴黎的石头颜色。建筑层由彩色混凝土线标记。窗台有一个相同材料的门楣。
窗户是由铝制成的,并全部配备了帆布的外部百叶窗。调色板被刻意限制,并选择采用现代语言。托架的比例通过外墙结构的变化得到了完善。创造出的阴影给建筑带来缓解,同时整合了所有的技术和法规限制。在院子里和扩建部分的所有露台上,植物也被赋予了重要地位。
客服
消息
收藏
下载
最近








