查看完整案例

收藏

下载
戈者设计
对当地传统建筑工艺理解和恢复的体育中心设计
该体育馆设计面积为7237平方米,于2017年开始施工,现在,最近落成的项目为Sant Andreu区提供了一个设施,包括三个运动场,以及一个公共空间,改善了新基础设施的可及性和连接。
建筑师Albert Salazar Junyent和Joan Carles Navarro(AIA的合伙人)、Antoni Barceló和Bárbara Balanzó(加泰罗尼亚Barceló-Balanzó Arquitectes事务所的成员)以及建筑师Gustau Gili Galfetti在Sagrera社区(巴塞罗那)建造Camp del Ferro市政设施的项目在2015年由BIMSA举办的公开竞赛中获得了一等奖。
鉴于广泛的Camp del Ferro功能项目所需的巨大体量,相对于场地的缩小和社区的密度,建筑师团队在权衡利弊后,选择将体育场馆的一个重要部分部分置于地下。这一行动通过分段机制,确保了良好的照明、自然通风以及低层区域的方便进出和疏散。
此外,这一设计决定给建筑、社区和城市都带来了明显的好处,因为除了减少视觉影响外,还产生了一个公共空间,作为综合体的城市门厅,促进了用户的流通。一个自由的区域,是必不可少的,舒适地解决了飞地的交通和复杂的城市结构。
所使用的建筑工艺源于对当地传统的理解和恢复,通过使用陶瓷等材料,在旧工厂、仓库、车间和邻近的工业建筑中非常常见。遵循资源和手段紧缩的标准,建筑系统本身在很大程度上构成了建筑本身和它的最终完成,避免了重叠的元素。
与外墙一样,暴露在外的材料确保了良好的老化和长时间的使用。为了使建筑的所有外墙都变亮,不透明、半透明或透明的空隙和主体交替出现,使用不同格式和颜色的陶瓷片。
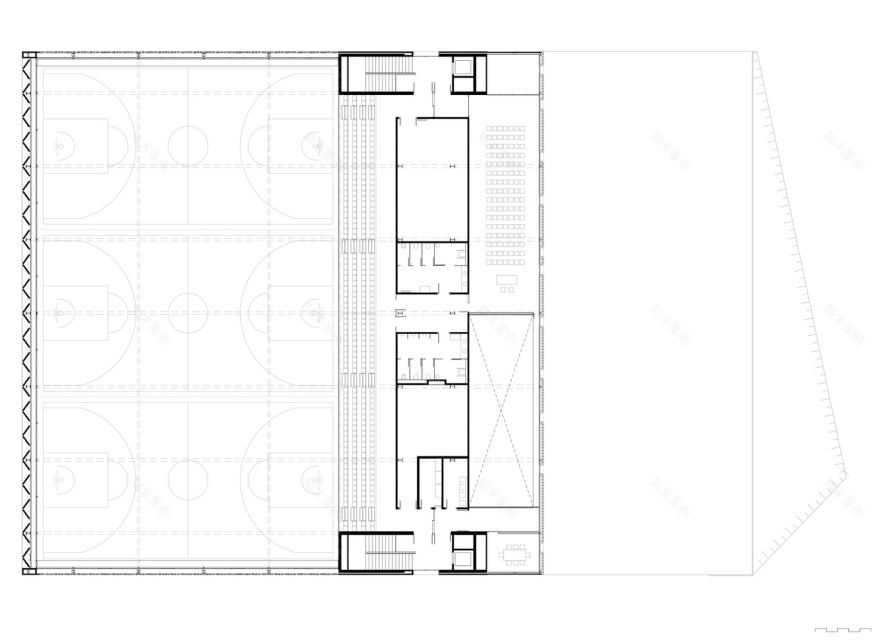
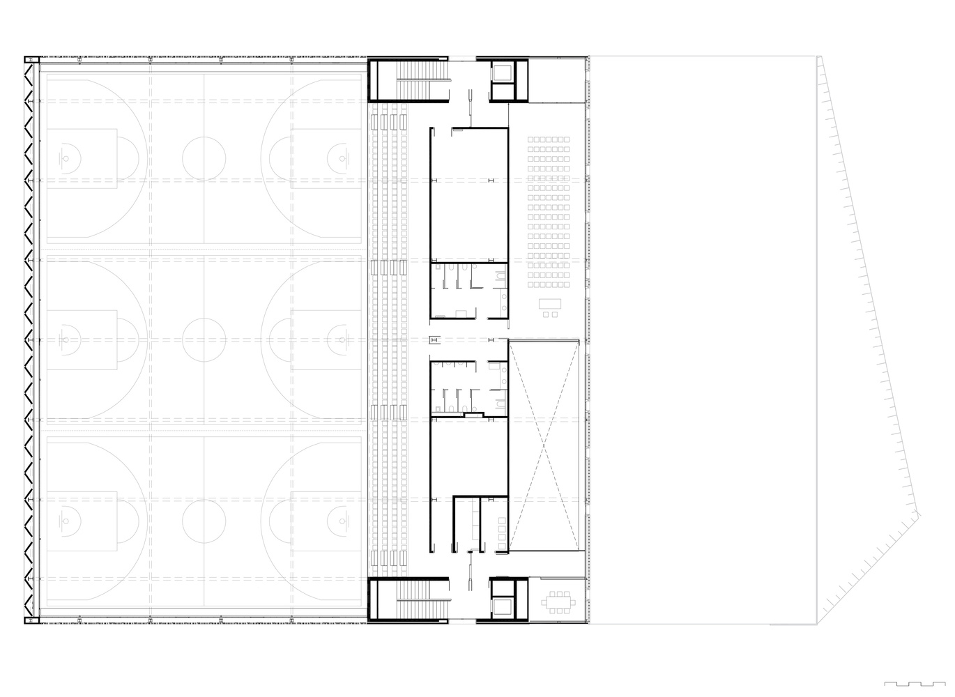
该项目不同区域的组织在建筑的纵向剖面和平面图中是非常清楚的,在这里不仅可以看到运动场的叠加,还可以看到一个中心体的安排,它包含了较小规模的项目(服务、仓库、辅助单位)、循环(垂直和水平)和装置。换句话说,提出了一个紧凑的体量,将大规模的作品分隔在不同的楼层。
最后,建筑的半地下部分容纳了Camp del Ferro体育中心,其另一个特意的内在结果是能源和环境的改善。一方面,由于暴露的表面减少,整个建筑的热惯性增加。另一方面,通过大面积的玻璃开口和天窗,以及由陶瓷格子和植物品种保护的避免阳光直射和球场上的眩光的植物品种,大部分的表面都享受着可控的自然光。
反过来,构成建筑的不同空间的形态和情况使交叉通风和分层成为热处理的自然机制。能源生产系统在可再生能源的帮助下工作,水的使用和消耗的优化已经被规划出来,有效的技术已经被建立起来,以合理地使用能源,并且在建设和设计中减少生态足迹。所有这些解决方案都使新建筑获得了Leed Gold认证。
对当地传统建筑工艺理解和恢复的体育中心设计
客服
消息
收藏
下载
最近






















