查看完整案例


收藏

下载
位于墨西哥城时尚的康德萨社区,Silvia Galván美容院的设计是基于对20世纪30年代建造的一座住宅的干预。
介入旨在避免改变建筑的原始外观,因此,建筑和艺术装饰风格细节的立面和内部都完好无损。我们精心挑选材料和调色板,以建立一个当代、新鲜的氛围,结合网站的历史,创造一个地方身份,将与客户联系。
我们希望通过使用一系列纹理来反映原始时期风格的各个方面,这些纹理表现出惊人的节奏和几何形状。
该空间的总建筑面积为668平方米,三层楼和一个屋顶露台,可俯瞰周围环境。
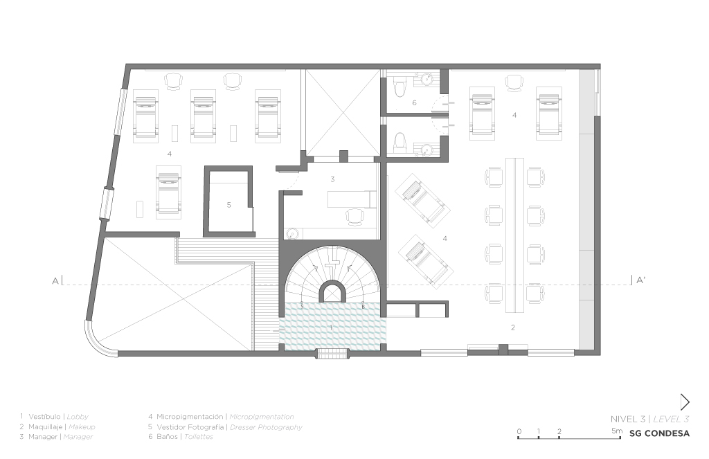
中心设有服务和流通核心,以腾出工作区域。周边墙是一种多用途的橱柜,有等候、存放和展示产品的区域。地板材料的变化有助于强调项目从流通到工作领域的转变。色彩和植被用来突出特定的空间,将注意力集中在经验上。
底层包括接待处、等候区、快递服务、仓库、供应商区和车库。其他楼层通过位于建筑物正门处的楼梯到达。
头发实验室位于一楼,其洗发区域被天然植被和三层天窗的天空所突出,这也为二楼的微色素区提供了天然照明。染发区位于双高空间,天花板高度为5.85米,营造了一种宽敞感,并与下一层的其他区域相连接。
在三楼,我们创建了一个屋顶露台,可以看到公园,在一个清新、放松和现代的空间里,为客户提供咖啡吧,作为项目的补充。
Firm anonimous
Type Commercial › Retail Hospitality + Sport › Wellness/Spa
STATUS Built
YEAR 2016
SIZE 1000 sqft - 3000 sqft
Photos © anonimous, photo by Marcos Betanzos, © anonimous
keywords:architecture, architecture news, interiors, interior design, portfolio, spec, brands, marketplace, products Silvia Galván Condesa
关键词:体系结构、体系结构新闻、内部设计、内部设计、产品组合、规格、品牌、市场、产品:SilviaGalvánCONDESA
客服
消息
收藏
下载
最近



















