查看完整案例

收藏

下载
Villa Miermana / NOMENA
Villa Miermana / NOMENA
Casas
Chorrillos,
Perú
Arquitectos:
Nomena
NOMENA
Área:
550
m²
Año:
2014
Fotografías:
Gonzalo Cáceres
Categoria:
Casas
Desarrollo De Proyecto:
Talia Valdez Prado
Constructor:
Carreras
Estructuras:
Indacochea
Electricas Y Sanitarias:
Jose Luis Vega
Ciudad:
Chorrillos
Pais:
Perú
El Patio como estructurador
El patio o vacío se define como un espacio equivalente, pero sin función determinada. Esta característica lo hace fundamental para la experiencia arquitectónica. Su ambigüedad permite ser reutilizado en un programa de tipología distinta.
Axonometrica
Decidimos, hacer un patio como estructurador principal. Villa Miermana trata de una vivienda permanente en los suburbios de lima.
Diversos ejemplos de la misma tipología pero en distintas épocas y lugares nos muestran como la misma idea puede terminar en resultados tan distintos. Entre ellos están: El romano, que es simétrico; el colonial, centralizado y el moderno, trabajado por Sert y Mies Van der Rohe.
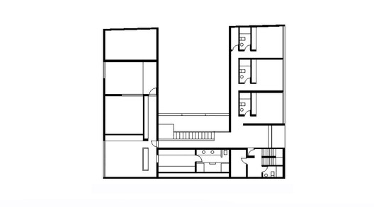
Una planta cuadrada de 20mts de lado nos abstrae de las condiciones simbólicas de la vivienda. El programa se divide en dos barras lineales (por un lado los padres y por el otro los hijos). Un conector contiene todos los servicios requeridos por la vivienda. Esta división genera tensión entre ellas, permitiendo que el vacío articule ambas funciones, dando mayor importancia a lo que sucede entre los espacios funcionales.
El patio se configura por líneas estructurales en una dirección y no con muros estáticos como en la antigüedad. Esto permite que el primer nivel sea transparente, albergando las actividades más sociales. Mientras que el segundo nivel alberga los espacios más íntimos de la vivienda. La transparencia se consigue de norte a sur y de este a oeste, dilatando los limites del espacio interior.
El proyecto cuenta con 2 escaleras muy distintas: una rápida (que abastece al servicio de manera vertical, sin experiencia alguna, es sólo funcional) y otra lenta (permite recorrer el espacio, pasear y contemplar el patio).
Corte 1
Corte 2
El vacío se convierte entonces en un gran espacio sin función determinada. El cual podrá transformarse de acuerdo a las necesidades del usuario y del tiempo en el que se habite. Las dos barras suspendidas liberan el piso en búsqueda de la transparencia mencionada.
El volumen es ingrávido y suspendido, permite tener una composición de luz y sombra a todo lo largo de la vivienda. Mediante el corte se establece la importancia de la ingravidez. Cada sección alberga distintas condiciones y actividades íntimas de la vivienda, esta se debe sólo a sus requerimientos espaciales. Se libera, entonces, el plano de tierra consiguiendo la transparencia absoluta.
La escalera se coloca de manera que participe de la actividad ambigua del patio y de su transparencia norte-sur.
Entendemos el concepto de transparencia como la posibilidad de atravesar elementos opacos. Se busca dilatar los espacios funcionales. Elevando los volúmenes opacos y liberando el plano de tierra. El patio se convierte entonces en un espacio ambiguo, sin limites determinados y ni dimensiones específicas.
Se da así, la transparencia este-oeste y norte-sur a lo largo del volumen lineal. Se revelan distintas situaciones espaciales, terrazas, dobles alturas y patios cerrados en sus laterales. Luz natural penetra en el interior y las visuales se fugan desde el interior, a travesando el edificio.
Nomena
Materiales
Madera
Acero
Concreto
客服
消息
收藏
下载
最近

















