查看完整案例

收藏

下载
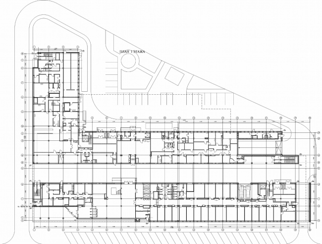
Building of the Superior Arbitration Court of Russian Federation
information:
status
building
date
2002
—
2003
/
—
2006
place
Russia
,
Moscow
Butyrsky Val, 3-5
function
Office & Civic
/
Courthouse
Vladimir Plotkin
/
Russia
Creative Union ‘Reserve’
/
Russia
Design Team
architects: Plotkin V., Romishevskaya N., Ilevskaya M., Lelyakina I., Lezhava A., Karasik R.; engineers: Moiseichev B., Andreev V.
Partners and Clients
client: ZAO TUKS-1
客服
消息
收藏
下载
最近














