查看完整案例

收藏

下载

翻译
Architects:CLAB Architettura
Area:500m²
Year:2024
Photographs:Andrea Ceriani
Manufacturers:Gessi,Louis Poulsen,Artemide,Azzurra ceramica,FLOS,Fritz Hanesen,Legrand / Bticino,NIC design,RABATTO,Tip Top Fenster
Lead Architects:Matteo Fiorini, Giulia Salandini, Andrea Castellani
Category:Houses,Refurbishment
Deisgn Team:CLAB architettura
City:Cavaion Veronese
Country:Italy
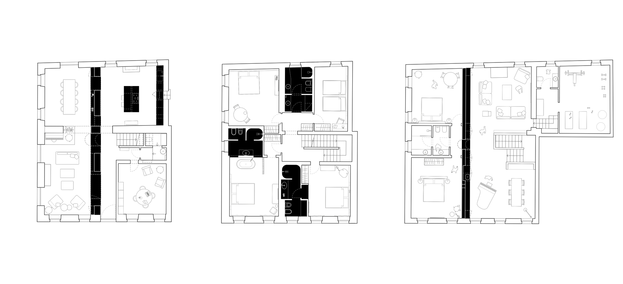
"Il Bel Canto" is a rural estate comprising multiple buildings, with its main nucleus established in the landscape of Cavaion Veronese since the mid-18th century. In addition to the main house, the property features a small wine production from the surrounding vineyards, as well as olive groves and a small woodland that define the landscape.
The architectural intervention focused on the renovation of the interior spaces of the main family home, drawing inspiration from the existing elements such as arches, porches, and courtyard spaces, while establishing a dialogue with some of the house's original materials. Two newly designed elements, positioned on the ground floor and the top floor, reshape the interiors, creating new perspectives and connections between spaces. In addition to enhancing the family's collection of prints, paintings, artworks, and design pieces, these elements integrate functional features, transforming into a bookshelf, bar area, pantry, and wardrobe.
The selected materials and colors, including oak wood and a deep red hue, harmonize with the existing flooring and the surrounding landscape. A light resin flooring defines and connects the renovated areas, while copper cladding characterizes the central kitchen island, around which the functional space is organized. The existing marble fireplaces further enhance the convivial character of the house, which opens to the outdoors, embracing the natural seasonal rhythm typical of a countryside home.
Project gallery
客服
消息
收藏
下载
最近


































