查看完整案例

收藏

下载
Viviana Wang
Flushing, NY, US
Bedroom-1
Green Dorm in Pratt Institute
A prototype suite created from a tired, guided by the sustainability mantra “reduce, reinvent, reuse.” by industrial and interior designers at the Pratt Institute.
Status:
Built
Location:
Brooklyn, NY, US
My Role:
Surveyed the field and verified the site; developed the CD drawing in accordance with ADA, researched on FF&E, lights and equipments; created specifications and designed accessories.
Additional Credits:
The Project featured on New York Tims as a good sample of green design.
Bedroom-2
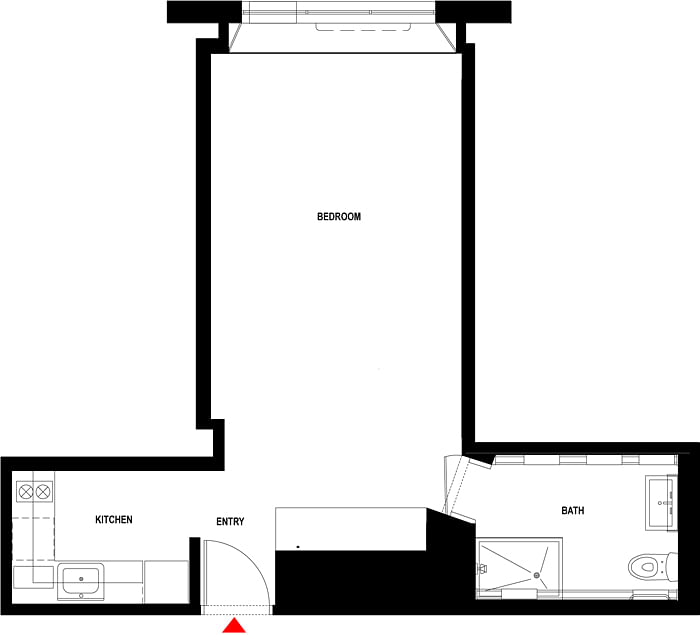
Plan
Bathroom-1
Bathroom-2
Bathroom-detail
客服
消息
收藏
下载
最近









