查看完整案例

收藏

下载
Zeitgenössische Architektur in Bayern
Hobbyraum
Innenarchitektur
FF A R C H I T E K T
Maler- und Tapezierarbeiten
Hans Übelacker GmbH & CO KG
Schreinerarbeiten
Schreinerei Stefan Borger
Haustechnik
Thomas Hartl
Parkett
Parkett Haag
Elektro
Bogdan Krol
Stahlbau
Otto Stegmüller
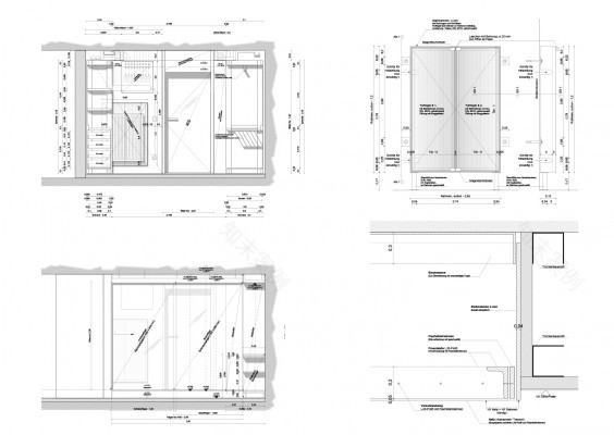
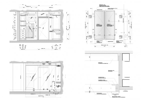
Um eine möglichst vielseitige Nutzung des einstigen Hobbyraums zu erreichen, wurde dieser zu einem multifunktionalen Raum umgestaltet.
Im Zuge der Kernsanierung wurde ein neuer Estrich verlegt, die Wände wurden verputzt, die Heizungen erneuert sowie neue Elektro-Leitungen verlegt und vieles mehr von Grund auf erneuert. Lediglich die alte Schwingtür blieb erhalten.
Das Ergebnis ist ein großzügiger, freundlicher und heller Raum mit vielfältigen Nutzungsmöglichkeiten. Er besteht grundlegend aus zwei Bereichen, welche durch zwei Eingänge unabhängig voneinander benutzt werden können. Die Trennung beider Teile funktioniert mittels einer verspiegelten Glas-Schiebetür, die durch Änderung der Lichtverhältnisse auch transparent eingestellt werden kann. Hierdurch lässt sich der kleinere Teil mit der dort angesiedelten Ankleide wahlweise abtrennen, aber auch wieder integrieren, falls gewünscht. Der größere Raumteil dient als Bibliothek, Besprechungsraum, oder Fernsehzimmer.
Standort
München-Süd
Bauherr
privat
Fertigstellung
2016
Baumaßnahme
Sanierung | Revitalisierung
Andere Fakten
Photographie : Benjamin Antony Monn
客服
消息
收藏
下载
最近














