查看完整案例


收藏

下载
建筑师:Ardete工作室地点:印度哈里亚纳邦潘奇库拉:2015年面积:2.000平方英尺/185平方米。图片来源:Purnesh Dev Nikhanj
“概念:
在世界各地的大多数健身中心都遵循既定的计划和内部规则,莫克沙的灵感来自一种为锻炼和训练中心定义一种新语言的意愿。这位客户希望扩展现有的健身房,包括一个水疗中心和旋转工作室。这个应该放在地下室里。因此,建筑师面临着有限的空间和有限的预算双重问题。
为了给设计注入这样的竞争空间所需的能量,该计划保持简单,但空间通过玻璃表面的视图相互融合。一种原始的城市造型是通过重叠而独立的三角形金属框架来实现的,框架与绳索交织在一起,为设计提供了一种美学元素和稳定性。巧妙的色彩被用来突出设计中的异想天开的元素,比如独特的照明装置和悬挂在天花板上的双周期。与墙壁和天花板相比,地板保持了更深的颜色,平衡了视觉效果。
双周期奶牛场和爵士音乐:
有时候,一个好的设计和一个伟大的设计的不同之处就像提供一个符号一样简单,用来定义和总结整个设计的符号,自古以来就被用于建筑中。这是一种为设计提供无形的东西的方式,即使与整体设计本身相比,这种无形的东西也会对游客的心灵产生强烈的影响。由于建筑师们正在寻找一种当代而又崎岖的外观,所以决定使用旧的、使用过的双周期,并将它们挂在通道的天花板上。经过处理的木树枝也被用于天花板设计,以保持主题。为了打破微妙的,压抑的内部单调,大型彩色壁画和海报被使用在工作室的墙壁上。
计划:
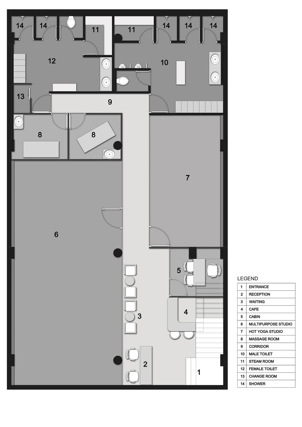
除了通常的健身中心空间外,简报还规定了一个水疗区、一个工作室和一个多用途大厅的要求。由于这些空间需要容纳在现有体育馆地下室2000平方英尺的有限面积内,因此采用了简单的线性规划,以通道为中轴线,旋转室和多功能厅都布置在其两侧。水疗中心、按摩室和更衣室位于通道尽头,内饰具有国际风格。在接待处和等候区旁边规划了一个小咖啡厅,欢迎游客进入。
金属框架:
设计的一个特殊特征是三角化的、自由站立的金属框架,其出现在整个区域上的地方。
莫克沙不是典型的健身中心,每天都会遇到这种情况。这是一项研究,也是对健身设计的一种暗示。该项目是对现有体育馆的延伸,使其能够适应人潮的增加。为了在竞争激烈的环境中为年轻男女所使用的空间,需要将居住者的能量转化为设计,为此,进行了大量的研究,包括类似的案例研究、图书馆和文献研究,对国内外类似的设计进行了研究和批判性分析。由于该中心是为了暂时容纳那些热衷于高能量锻炼的人,所以在设计中必须反映出类似的情感。为了取得尽可能好的结果并使空间发挥其最大潜力,采用定性研究方法而不是定量研究方法。
Moksha位于现有体育馆设施的地下室,占地约2000平方英尺,尽管空间有限,但被认为是开放的,是一种非常规的设计。为了实现这一目标,该计划保持了简单和线性。但为了增加复杂性,增加了层。钢框架与绳索交织在一起,用来给人一种别致的外观,同时又保持在适度的预算范围内。空间之间毫不费力地移动,它们之间的互动也是优雅的流动。工作室的玻璃隔板增加了透明度,提供了对内部活动的一瞥,但却将它们彼此分离。另一层孔隙是通过使用重叠金属框架来实现的。
这些三角形的、独立的立式框架与隔板和天花板结合使用,有助于为灯具提供立足点。它们与绳索交织在一起,增加了设计的整体稳定性,也帮助实现了当代的外观。一个原始的城市外观是针对该项目的,是利用非传统的设计理念实现的,比如在通道的天花板上悬挂旧的双周期,或者在接待区使用经过处理的木树枝进行天花板设计。色彩是微妙的,使用户专注于设计本身,给整个地方,一个别致,低调和现代的外观。
该项目要求使用各种非常规的想法,使其更加流畅和灵活。因此,所用的材料是相同的。玻璃隔板用于工作室,使整体设计开放和当代,并增加了一个元素的透明度空间。观众可以获知工作室内的活动,但与它们分离。有一个视觉连通性将整个空间编织在一起。三角框架是钢制的,涂漆时,根据所使用的位置的要求而锈蚀。因为,在工作室的釉面旁边使用的大多数地方,它们增加了设计的孔隙率,从而增加了另一层。此外,它们与绳索一起使用,在它们之间交错,以给结构提供一定程度的稳定性,但主要用于美学目的。
其他不寻常的材料/元素是悬挂在天花板和生木树枝上的双周期。调色板是微妙的,利用浅棕色、米色和黑色,以提高空间的视觉质量,使其别致精致。地板与屋顶和天花板形成鲜明对比。工作室的墙壁支持五颜六色的壁画/海报,打破了设计中单调的主题,使之生机勃勃。
设计最独特的特征不是单一的实体,而是它把所有不同的元素结合在一起形成一个连贯的、美学的整体的方式。在前面提到的各种特征中,吸引眼球的是双周期。它们悬挂在通道的屋顶上,将眼睛向上吸引,在那里人们还能找到独特的照明装置,给空间以敏锐而复杂的外观。另一个重要的元素在整个内部反复出现,那就是金属框架。
三角形和重叠,这些框架区分设计,并赋予它一个字符,不像大多数其他适应空间。它们不仅用于室内高地,而且也用于天花板,提供了一个地方,以贴上照明装置。这些框架与绳子交织在一起,这是另一种不寻常的材料。玻璃的使用是精心控制和组合的。玻璃工作室的墙壁和框架提供了在工作室内的高峰,同时分离不同空间的活动。整个想法提供了一个视觉连接到整个设计,但不侵犯隐私和身份的空间,它包含。
设计的主要挑战之一是将整个空间项目安排在现有体育馆设施地下室的有限区域内。作为一个健身中心和水疗中心,设计必须是开放和灵活的,允许空间相互融合,而不会带来不必要的麻烦。为了实现这一点,人们广泛使用了玻璃,提供了一种透明和连通的感觉,但仍然限制了空间之间的物理互动。作为隔断,玻璃允许一个方便的视觉运动,同时使空间现代和城市。
另一个挑战是在有限的预算下设计这个项目,迫使建筑师寻找不寻常的、引人注目的解决方案,增加用户体验,为健身设计提供一种新的语言。"
谢谢你阅读这篇文章!
keywords:Haryana India Panchkula Studio Ardete
关键词:哈里亚纳邦库拉工作室Ardete
客服
消息
收藏
下载
最近































