查看完整案例

收藏

下载
El patio como mediación y lugar: conoce los ganadores del concurso Centro Cultural de Añelo
El patio como mediación y lugar: conoce los ganadores del concurso Centro Cultural de Añelo
Un centro que brinde a los habitantes de
Añelo
-actual punto neurálgico de
Neuquén
,
Argentina
- un espacio multifunción, donde puedan centralizarse las actividades culturales del municipio. Este fue uno de los principales requisitos que planteó Ternium conjuntamente con la asociación organizadora de la
XVI Bienal de Arquitectura de Buenos Aires
para el '
Concurso Nacional e Internacional de Ideas para el Centro Cultural de la Localidad de Añelo
'.
El jurado otorgó el primer premio a los arquitectos
Fernando R. Matos, Soledad Patiño y Mateo Gamba.
Conoce la propuesta a través de las palabras de sus autores, a continuación.
El concurso presupone un desafío proyectual que busca poner en valor el patrimonio cultural de la ciudad, realzando la capacidad de atracción y mixtura de las actividades propias del centro como las del espacio público que lo rodea, y generando un diálogo armónico entre el edificio existente en la parcela y el programa específico motivo del concurso. El CCA se constituye como una pieza clave en la conformación de un nuevo “ícono cultural” y “lugar urbano”, como hito cualificador del contexto de Añelo.
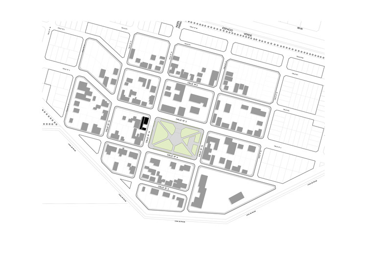
Contexto/Inserción Urbana
El nuevo programa se concentra en dos barras que configuran una nueva fachada hacia la Plaza Justo Muñoz y se vinculan al contexto a través de dos Patios de diferente cualidad. La acción sobre el patrimonio es la de mantener las relaciones escalares para lograr continuidad espacial, por ello el nuevo edificio mantiene proporciones similares al preexistente. Esto permite entender a ambos como un todo que funciona en conjunto, sin perder posibilidad de trabajar independientemente.
El desarrollo de la propuesta en una planta, permite una mayor vinculación de los programas con el plano cero, y mayor fricción de usos del espacio público. El CCA enfatiza la continuidad del espacio verde urbano, y lo cualifica a través de la expansión del Auditorio.
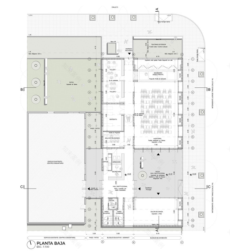
El sistema de accesos se diferencia según las zonas de uso. El ingreso principal se ubica sobre calle 14, precedido por el Patio Hall como recibidor y extensión del espacio público de la calle y Plaza. Esta nueva plataforma pública que libera el edificio se vincula a su vez con el Ingreso existente al Centro comunitario, enfatizando la continuidad espacial de accesos. El espacio público funciona como conector y punto de arribo desde los corredores urbanos. Sobre Calle 3 se ubica un acceso secundario, relacionado al área de talleres.
Dos Patios: Patio Hall Y Patio Cultural
Todos los programas del CCA se vinculan entre ellos y con el edificio preexistente a través de dos Patios:
Patio Hall Institucional: punto de acceso al edificio y rótula de programas, ante la necesidad de un Hall de carácter institucional. Permite la relación del edificio con la plaza y el espacio público exterior, como así también la conexión con la preexistencia. El nuevo atrio -patio seco- funciona también como soporte de prácticas culturales mixtas recibiendo la expansión de las actividades más convocantes: el auditorio y el salón de danzas que forman parte del bloque de exhibición.
Patio de la Cultura: Espacio abierto de esparcimiento al que expande la actividad de los Talleres del CCA. Cualifica espacialmente la fachada Norte del Centro Comunitario, poniendo en escena sus murales.
Dos Bloques: Programa Cultural
El programa arquitectónico se estructura en dos bloques. Un bloque en barra que alberga el Auditorio y Salón de Danzas vinculados por el Patio Hall (Bloque de exhibición); y una barra longitudinal que aloja las áreas de servicio, administración y Talleres. (Bloque educativo - Administrativo). Ambos bloques, diferenciados en función, se conectan en un fuelle – lucernario que los vincula.
Bloque de exhibición: la disposición de los programas más masivos y públicos -auditorio y salón de danzas-, son posibles de expandir, tanto al patio hall que los vincula, como al teatrino exterior que se conforma como extensión del auditorio sobre la calle, a través de un escenario de doble frente. El bloque funciona como espacio continuo que permite versatilidad de usos en diferentes situaciones. Puede funcionar como espacio único, o bien puede independizar las actividades; incluso el auditorio puede subdividirse en dos grandes talleres. El espacio de guardado de utilería y sillas sobre la fachada este facilita el montaje de dichas situaciones.
Bloque educativo – administrativo: en relación al acceso y hall de la institución se disponen el área administrativa (secretaría, dirección, sala de reuniones y office), y el núcleo de servicios. El área educativa (depósito y talleres) posee directa expansión hacia el patio cultural.
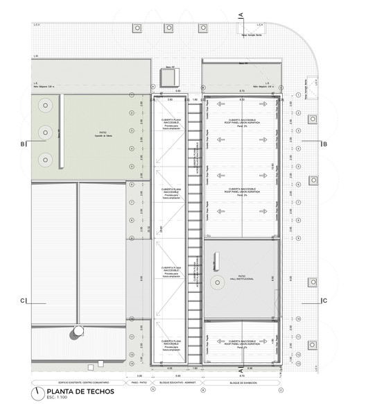
Futura Ampliación
Se dispone de una ampliación en altura del 40% sobre el actual bloque educativo - administrativo, considerando el plus de programas que podrían sumarse a los ya existentes. La estructura del bloque prevee la incorporación de la nueva pastilla de actividades, con una cubierta plana Steel Deck.
Tecnología – El módulo
La estructura resistente del edificio se configura a través de planos portantes, reconociendo la lógica constructiva propia del Steel Framing. El uso de un módulo estructural repetible organiza y facilita el proceso constructivo, a la vez que conforma el módulo programático que permite la libre asociación de usos. El control climático se favorece a través de fachadas ventiladas, ventilaciones cruzadas, y aislaciones incluídas en muros aprovechando el sistema constructivo. Los sistemas de reutilización de aguas y generación de energías renovables, contribuyen a la sustentabilidad del CCA.
Conclusiones
La aspiración principal de la propuesta es generar un polo cultural de carácter institucional, como equipamiento que contribuye a la construcción cualitativa del espacio urbano. Ofrece una nueva forma de apropiarse del espacio vacío, con límites controlados y cualificadores del mismo. La intervención dialoga con las preexistencias y el espacio público de manera contemporánea, entendiendo al futuro edificio como un paso más en el proceso de construcción de la identidad cultural de la ciudad y como parte de la historia del patrimonio arquitectónico de Añelo.
客服
消息
收藏
下载
最近
















