查看完整案例

收藏

下载
Colón 36
Castuera, Spain
Deconstruction + Reusing = NØ Waste
in use
Jose Milara
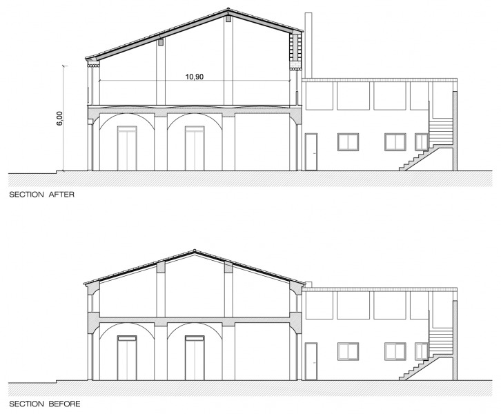
This work is about a deck change, which will serve as a role model regarding future housing improvements in a Spanish village located in Badajoz, Extremadura.This village is called Castuera, and it has about 6500 inhabitants. The main improvements made in the village in terms of housing are related with the “doblao”, a popular word used to define the loft, the attic or the garret. In order to do that, they improve the deck and make the walls grow up to get a better space in there. It is easier to live there in this way.
This initiative was born from a growing concern of the local architect regarding his own experience: the big deal of abandonment suffered by the most ancient neighbourhood, called “El Cerrillo”. This fact can be extrapolated into many villages of Spain, due to a masive migration from the centre of the villages into the suburbs, with the result of a progressive abandonment of the houses and the main area of the villages.
After the studies taken by Jose Milara University Master of "Renewable Energy, Architecture and Urbanism: The Sustainable City", the architect of this work, and the researchers Paulina Aguilar, Tania González Villegas and Uriel Manjares Salgado from Colima University (Mexico), made a research with analysis and data collection, we know that, today, that neighbourhood have 407 houses, 219 are using and about a 40% of the houses are empty. This map shows the occupation and the use of the houses:
The formula “Deconstruction + Reusing = NØ Waste” is simple. We put in one different place the materials that previously were in another place, and sometimes, they can also change their constructive functions. Thus, this formula can be broken down and thoroughly analysed in a mathematical way:
DECONSTRUCTION: Analytical and material dismantling of the elements forming a building or a conceptual structure.
REUSING: Process by which something that is no longer useful may be used again, doing the same function or with another purpose.
NØ WASTE: As a result of the Deconstruction process, we can gather materials in a selective way, enabling us to Reuse them and, thus, reducing the ecological footprint. In that way, we can guarantee the empty set in terms of wasting, represented in Mathematics as Ø.
客服
消息
收藏
下载
最近











