查看完整案例

收藏

下载
Jardín infantil y sala cuna Golondrina de Valparaíso / Pedro Lomboy Castillo
Jardín infantil y sala cuna Golondrina de Valparaíso / Pedro Lomboy Castillo
Arquitectos:
Pedro Lomboy Castillo
Área:
1549
m²
Año:
2023
Fotografías:
Raúl Goycoolea
Proveedores:
Hunter Douglas
Tarkett
Dap Ducasse
Etersol
Sherwin-Williams
Categoria:
Kindergarten
Guardería
Sustentabilidad
Constructora:
STM Ingeniería Y Construcción Ltda.
Calculista:
Patricio Fiol
Propietario:
Junta Nacional de Jardines Infantiles
Ciudad:
Valparaíso
Pais:
Chile
El proyecto se emplaza en el sector de Porvenir Bajo, sobre los acantilados en la Ladera poniente del Cerro Playa Ancha en la ciudad Puerto de
Valparaíso
, Chile. Comparte la manzana con el Club Deportivo del sector completando un polígono de equipamiento inserto la población Eleuterio Ramírez, en un entorno de alta vulnerabilidad social.
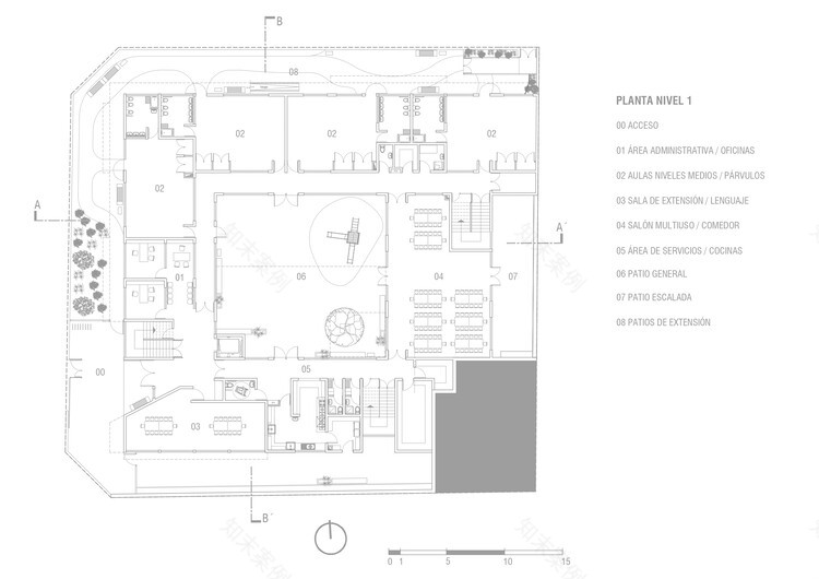
Planta - 1er nivel
El proyecto surge de la necesidad de reponer un establecimiento existente desde 1978, afectado por un avanzado deterioro estructural así como obsolescencia normativa y funcional.
Planta - 2do nivel
La propuesta formal plantea un cuerpo rectangular formado por 4 pabellones en dos niveles, con un vacío central que da lugar al Patio General. El área docente conforma los pabellones norte y oriente, dando lugar a las aulas principales, salas de extensión y salón multiuso privilegiando una óptima iluminación natural y vista al mar desde el segundo piso. En el pabellón poniente se ubica el acceso principal, áreas de recepción, distribución, oficinas administrativas y en el pabellón sur se proyecta el área de servicios que comprende cocinas y complementarios tales como, accesos de servicios, bodegas, duchas y servicios higiénicos.
Elevaciones y Corte
El programa arquitectónico se basado en el Programa Arquitectónico PAM, presentando una mejora en el estándar de metros cuadrados por alumno e incorpora recintos complementarios como salas de extensión para arte, música y actividades de estimulación entre otras, también incorpora salón multiuso que acoge diversos usos, tales como comedor, gimnasia y juego, así como actividades extensivas a la comunidad actos, presentaciones y reuniones.
Elevación y Corte
En los recintos interiores se seleccionaron colores suaves proporcionando ambientes iluminados y neutros para los distintos usos propios de la actividad. Así mismo se incorpora mobiliario en obra y elementos de juego insertos en la arquitectura, tales como muro de escalada y muro de juego con el propósito de fomentar la estimulación motora de los lactantes a través del arte y el juego.
La estrategia de eficiencia energética propone diseño pasivo para el máximo aprovechamiento de la luz natural en aulas, circulaciones cerradas para minimizar las perdidas térmicas y bajo requerimientos de mantención de fachadas a través de la materialidad y color. Así mismo incorpora energía solar para generación de agua caliente y energía eléctrica.
Calle Tres N° 132 Población Eleuterio Ramírez, Porvenir Bajo, Playa Ancha, Valparaíso, Chile
Pedro Lomboy Castillo
Concreto
Concreto
客服
消息
收藏
下载
最近
























