查看完整案例

收藏

下载
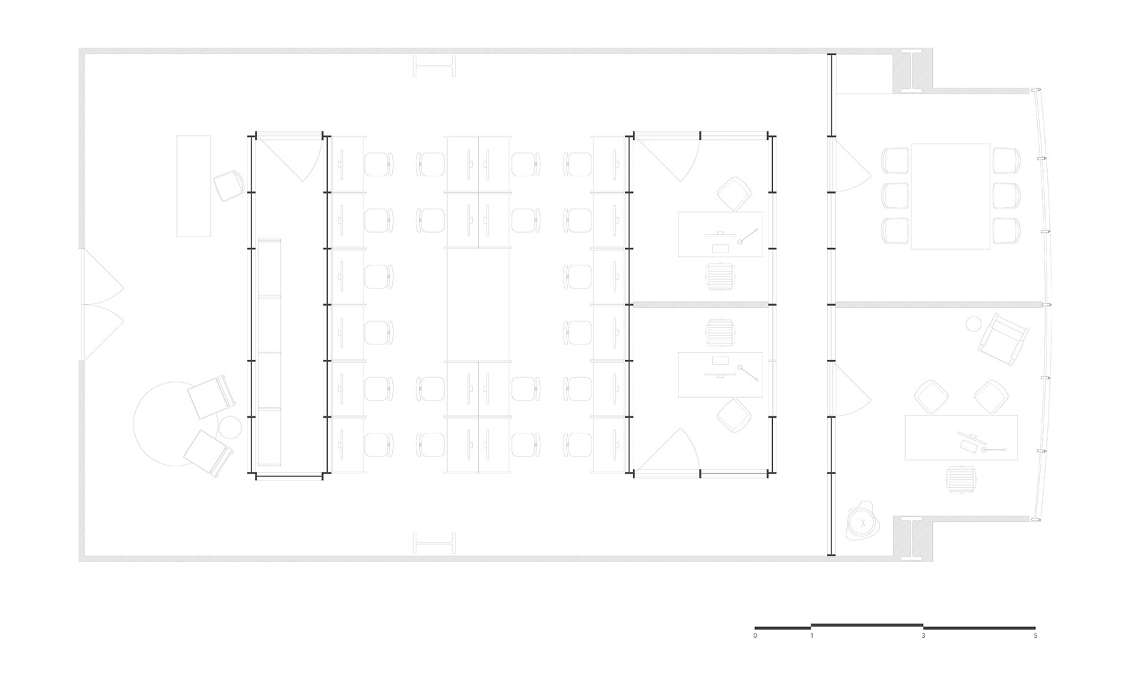
该项目位于墨西哥瓜达拉哈拉金融区的一幢公司大楼内。圣保罗办事处所在的大楼,因其租约而被细分;使临时的和临时的项目的核心概念。在这种具体情况下,增长的可能性不是唯一的要求;但是,根据未来的需要,必须考虑可能的重新使用、重新安置或重新配置空间。
这个项目的出发点是“建筑不应该是一次性的”,这个项目是通过一个基于关节的模块化构建系统开发出来的,这种系统可以在现场组装,而家具也可以对整体做出反应。选择了材料的调色板和项目的调制,将尽可能少的浪费考虑进去。固体和半透明的嵌板组装起来,以响应其商业格式的测量。
这个项目的布局是通过在一个开放的计划中插入两个展馆而产生的,这使得他们之间的公共空间有了隐私。最后,为了确定会议室和主要办公室的位置,在地板后面的区域被分割,因为他们需要最大的隐私。
客服
消息
收藏
下载
最近

















