查看完整案例

收藏

下载
Гостиница Holiday Inn Express на Дубининской улице
Гостиница Holiday Inn Express на Дубининской улице
информация:
статус: реализовано
даты: 2014/ — 09.2017
region= area= address=ул. Дубининская, вл.33 country_t=Россия city_t=Москва
место: Москва, ул. Дубининская, вл.33
координаты: 55.725029, 37.638647
функция: Туризм/здравоохранение/Гостиница
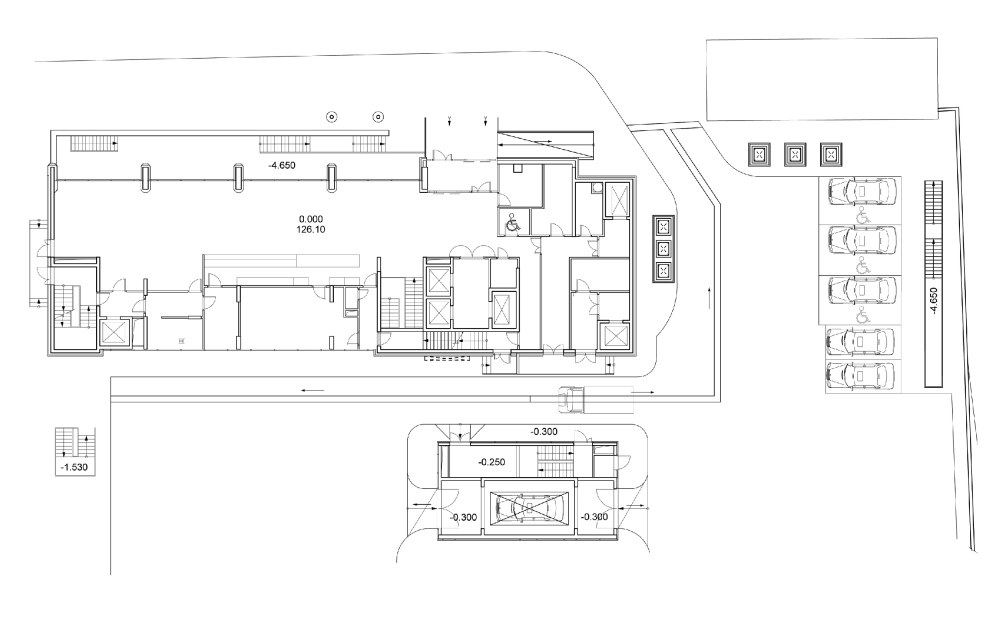
площадь участка: 0,2293 га
площадь застройки: 830 м2
общая площадь: 11000 м2
высота: 35
этажность: 10
Площадь озеленения – 183,75 м²
Алексей Гинзбург Alexsey Ginzburg / Россия
Гинзбург Архитектс Ginzburg Architects / Россия
авторский коллектив: А.В. Гинзбург, А.Ф. Орлов, А.В. Николаев, Т.С. Архипова
Гостиница Holiday Inn Express на Дубининской улице
Архи.ру об этом объекте:
Юлия Тарабарина. Частица городского калейдоскопа. Так можно определить здание отеля на Дубининской улице. Его архитектура совершенно не претенциозна и даже бравирует своей незаметностью, но при ближайшем рассмотрении обнаруживаются интересные детали.
Здание гостиницы Holiday Inn Express открылось на Дубининской улице в Москве осенью 2017 года. Трехзвездочный отель принадлежит к бюджетной линейке известного бренда, предлагающих ограниченное число услуг за умеренную плату . Такой отель можно откр
Гостиница Holiday Inn Express на Дубининской улице Гостиница Holiday Inn Express на Дубининской улице Гостиница Holiday Inn Express на Дубининской улице Гостиница Holiday Inn Express на Дубининской улице Гостиница Holiday Inn Express на Дубининской улице Гостиница Holiday Inn Express на Дубининской улице Гостиница Holiday Inn Express на Дубининской улице Гостиница Holiday Inn Express на Дубининской улице Гостиница Holiday Inn Express на Дубининской улице Гостиница Holiday Inn Express на Дубининской улице Гостиница Holiday Inn Express на Дубининской улице Гостиница Holiday Inn Express на Дубининской улице Гостиница Holiday Inn Express на Дубининской улице Гостиница Holiday Inn Express на Дубининской улице Гостиница Holiday Inn Express на Дубининской улице © Гинзбург Архитектс Гостиница Holiday Inn Express на Дубининской улице Гостиница Holiday Inn Express на Дубининской улице
客服
消息
收藏
下载
最近











