查看完整案例

收藏

下载
Malplaquetstraße 19
Un edificio de viviendas, diseñado por Thomas Baecker Bettina Kraus Architekten, en Berlín, Alemania.
El fragmento del histórico portal de ladrillo de la calle Malplaquetstraße 19, de Berlín Wedding, marca la entrada a las antiguas naves de la fábrica de lámparas eléctricas Osram-Höfe.
El nuevo edificio residencial y comercial, que se desarrolló como un emprendimiento del constructor-propietario privado “Baugruppe”, se sitúa detrás y encima del portal y completa la típica estructura de bloque urbano berlinés con un edificio frontal y un ala lateral.
Al restaurar e integrar el pórtico restante en el nuevo edificio se crea una referencia histórica y espacial a las naves de producción –y de uso polivalente– de las fábricas de hoy en día, y, por su lado, la gran escala industrial determina el carácter de la estructura del edificio.
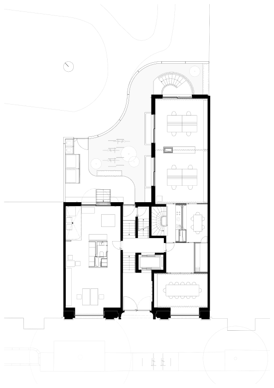
La disposición en dos niveles, con un núcleo asimétrico, surge esencialmente por la influencia de las condiciones existentes. Mientras que la planta del apartamento del edificio delantero se centra en una circulación compacta, las funciones de los apartamentos del ala lateral se disponen de forma similar en una sucesión lineal.
El diseño individual de los planos de planta permite diferentes disposiciones de los cuartos de baño utilizando la misma distribución de aberturas. De esta manera, las variaciones adaptables de las habitaciones pueden satisfacer las necesidades individuales de privacidad y espacio.
Las habitaciones individuales miran hacia el patio, mientras que las áreas comunes se abren a la calle a través de una fachada acristalada amplia. La combinación de balcones y grandes ventanas fijas de cristal cumple con la necesidad de proporcionar espacios exteriores privados en el centro de la ciudad y a su vez mejora la conexión de las unidades con el entorno.
La interfaz amable entre lo público y lo privado constituye la base de esta fachada tridimensional que, junto con el arco de ladrillo existente, caracteriza la dirección y la identidad del edificio. Así como el cuidadoso tratamiento de la estructura existente junto con el personalizado nivel de diseño hacen que el nuevo edificio sea una contribución sostenible a la estructura urbana de Berlín.
Arquitecto
Thomas Baecker Bettina Kraus Architekten
Superficie
1424 m
2
(construida), 2060 m
2
(terreno)
Ubicación
Berlín, Alemania
Año
2021
Fotografía
Philipp Obkircher
客服
消息
收藏
下载
最近
















