查看完整案例

收藏

下载
Современный дизайн-проект деревянного дома с эксклюзивным интерьером
Словенская архитектурная фирма Superform имеет совершенно необычное видение, когда дело доходит до ремонта, и их новая очень интересная концепция – это дом, расположенный в Ljubno ob Savinji, недалеко от столицы Словении Ljubno.
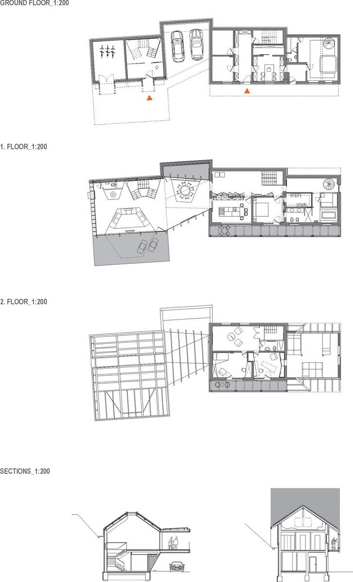
Новизна проекта заключается в том, что данная резиденция представляет собой два разных строения. Одно гордится использованием традиционных стилей, там есть много дерева и камня, имеются спальни, ванные комнаты и кухня. А второе – сосредоточено больше на открытом пространстве и имеет очень хорошую вентиляцию, там дизайнеры применили много стекла.
Известные своими архитектурными новшествами сотрудники из вышеуказанной компании отделили жилую территорию от места для общения, разместив эти зоны на разных сегментах общей территории. И одна, и вторая части специально разработаны для удовлетворения конкретных потребностей.
Массивный дом с отделкой деревом и плакированными окнами со ставнями – место для сна и личного времяпрепровождения, а сооружение из стекла, стали и дерева, подобное лодке, заботится о социальной жизни владельцев.
Дом в Словении от Superform.
客服
消息
收藏
下载
最近















