查看完整案例

收藏

下载
以茶为媒,重构江南人文空间叙事。
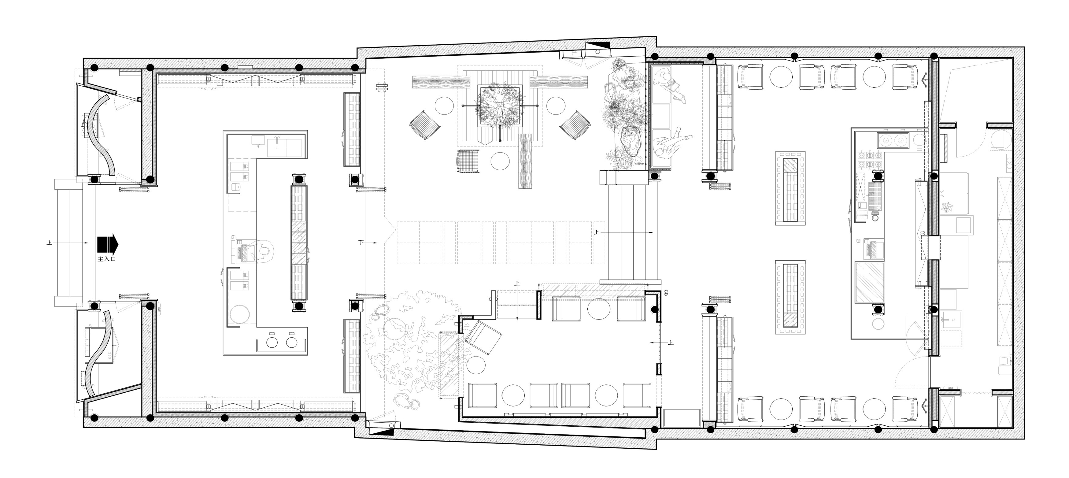
在无锡惠山古镇的千年积淀中,小茶栽堂以“时空叠影”的姿态悄然生长。设计师从建筑执笔,在青砖黛瓦间勾勒出一方新中式美学场域——既承载着江南文脉的温润气韵,又跃动着现代设计的先锋意识。这座融合历史记忆与当代审美的空间,恰似一卷徐徐展开的立体山水画,在时光的褶皱里演绎着传统与创新的对话。
项目地址:无锡惠山古镇
设计单位:无锡欧阳跳建筑设计有限公司
主案设计师: 蒋越、欧阳跳
落地主案设计师:周丹凤
辅助设计师:姚运、张维尚、刘浩宇
项目面积:260m²
设计完成时间:2024.10
完工时间:2024.12
主要材料:混凝土预制板、复古不锈钢、防火板、艺术漆、花岗岩
灯光:无锡米未照明
材料品牌:贝莱维斯涂装、科定
项目摄影:鲁哈哈
客服
消息
收藏
下载
最近



















































