查看完整案例

收藏

下载
Edificio Eje del Campus de la Universidad Victoria en Wellington / Architectus + Athfield Architects
Edificio Eje del Campus de la Universidad Victoria en Wellington / Architectus + Athfield Architects
Bibliotecas
Remodelaciones
Wellington,
Nueva Zelanda
Arquitectos:
Architectus
Athfield Architects
Área:
13000
m²
Año:
2013
Paul McCredie
El Eje del Campus y la Biblioteca responden al actual entorno pedagógico constantemente cambiante y a las nuevas tendencias para el mantenimiento y la difusión de conocimientos.
Reconociendo que el aprendizaje y las funciones sociales ya no están separadas, el proyecto cambia los límites entre los elementos seguros y no seguros de la biblioteca, generando una mayor intersección con el aprendizaje, las funciones sociales y recreativas, y las expectativas de encuentro por parte de los estudiantes para las actividades del campus y las comodidades.
Integrales a la totalidad del proyecto se encuentran la prestación de servicios mejorados de la biblioteca, espacios sociales, de enseñanza y de estudio, la mejora de instalaciones de ventas, instalaciones de atención social/salud para los estudiantes y recreacionales, así como un espacio interior y exterior central de alta calidad.
En el contexto más amplio, el proyecto aborda la necesidad de una "puerta principal", mejora la interfaz con Kelburn Parade y aumenta la legibilidad en la red de circulación de todo el campus. Es importante destacar que, al superar tanto la topografía desafiante como la previa deficiencia de conectividad en este recinto, el proyecto establece un nuevo punto focal y se plantea como el corazón para el Campus Kelburn: un eje en torno al cual pueden girar las actividades sociales y de aprendizaje.
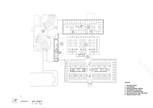
El Campus integra la remodelación de la Biblioteca Brown Rankin, el nuevo edificio Eje y el nuevo Patio Tim Beaglehole, con reformas a nivel del suelo de los edificios Whitfield y Maclaurin.
La intervención clave del diseño fue excavar el sitio de la cuádruple (entre el Edificio Whitfield, el Teatros Maclaurin y la Biblioteca Rankin Brown) y retirar el Aula Whitfield que se proyecta en este espacio. Este movimiento estratégico estableció un nuevo plano de terreno continuo que une Kelburn Parade y, alineando los niveles de tierra de todos los edificios en este sector del campus, se permitió la inserción del nuevo Edificio Eje y la creación de un nuevo espacio al aire libre.
La "Gran Sala" es una gran planta baja de doble altura en el Edificio Eje. Reúne a las actividades de la biblioteca contigua, las aulas y los nuevos espacios de venta, proporcionando un espacio enfocado al estudiante para actividades sociales e informales de aprendizaje, así como para las grandes reuniones y eventos. Los nuevos proyectos de la Sala de Lectura sobre el espacio de los estudiantes, entrelazan simbólicamente las funciones sociales y de aprendizaje.
Abriéndose directamente sobre el nuevo Patio Tim Beaglehole, la "Gran Sala" y el patio crean una vinculación entre los espacios interiores y los exteriores en un núcleo para las actividades sociales y de aprendizaje de la Universidad. Las grandes puertas correderas automáticas permiten que ambos espacios se combinen a la perfección.
La Biblioteca es una parte integral del Eje del Campus y se reconfigura para abrirse y participar activamente con el nuevo Eje. Las colecciones de alto uso, así como áreas de estudio informales y de grupos fueron reubicados en los niveles más bajos de Rankin Brown, donde las placas de piso más grandes permiten configuraciones de aprendizaje más flexibles y alternativas. Un cambio en el umbral de la seguridad permite que la Biblioteca ofrezca más servicios y funciones de aprendizaje dentro del Eje, complementando las actividades de aprendizaje social y fortaleciendo la vitalidad del espacio.
Conexiones clave a través del campus confluyen en el Eje, impregnando el perímetro y en los bordes de la "Gran Sala". La clara yuxtaposición de la simplicidad antigua y las nuevas ofertas con claridad espacial, apoya a encontrar el camino y proporciona un entorno para una experiencia de primera clase para el estudiante.
Wellington, Nueva Zelanda
Architectus
Athfield Architects
Madera
Acero
Concreto
客服
消息
收藏
下载
最近

























