查看完整案例

收藏

下载
Complejo habitacional y comercial Camellia / Estudio I LZ
Complejo habitacional y comercial Camellia / Estudio I LZ
Arquitectura De Uso Mixto Casas Retail
Villa Allende, Argentina
Arquitectos: Estudio I LZ
Área: 430 m²
Año: 2021
Fotografías: Gonzalo Viramonte
Proveedores: Masisa, Ariston, AutoDesk, Blangino, Cerámica Santiago, Chaos Group, Deca, Ducasse, FV, Jhonson, Piazze, Procor Group, Trimble Navigation, ferrum
Categoria: Arquitectura De Uso Mixto Casas Retail
Arquitecto A Cargo: Pablo Lorenzo
Equipo De Diseño: Ana Laura Rivas, Guadalupe Navarro, Josefina Nevado Funes, Antonella Persico, Paloma Pringles, Francisco Artigas, Florencia Sanchez Bono, Emilia Bonetti, Francisca Rosa, Celeste Miret, Agostina Tavella, Mariano Villafañe
Ciudad: Villa Allende
Pais: Argentina
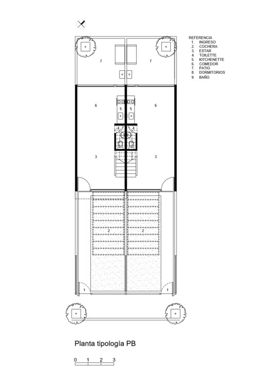
Camellia es un complejo habitacional y comercial de 6 viviendas de 2 dormitorios y un local comercial. Se encuentra emplazado en una parcela de 600 m2 ubicada al norte del área central de la ciudad de Villa Allende. El entorno es urbano en constante renovación y mayormente residencial, su ubicación es privilegiada por la cercanía a infraestructura de servicio y comercios de la ciudad. Las unidades habitacionales tienen 65 m2 cubiertos y se desarrollan en dos plantas, la planta alta alberga el área privada con 2 dormitorios y un baño, y la planta baja contiene el área social, cocina, living, toilette y expansión a dos patios, uno de carácter privado y otro de ingreso y cochera. El local comercial tiene 70 m2 en planta libre con un entrepiso y 2 baños de servicio.
En cuanto a la idea, el mayor desafío estaba en generar arquitectura de calidad en la poca superficie disponible dando para dar respuesta a la demanda habitacional del área central de la ciudad. Se propone una planta baja social y flexible a modo de ¨tubo¨ que hace las veces de conector y articulador entre dos patios propuestos, uno en la parte posterior de carácter más privado y de esparcimiento, y otro al frente de la vivienda que alberga la cochera y a la vez recupera la idea del patio de ingreso típico de las viviendas de la zona. El conjunto se resuelve en un solo volumen que se va escalonando según la pendiente natural de la calle. Se plantea el local como una caja vidriada que completa la esquina y da inicio al resto del complejo. Las plantas altas se mueven hacia atrás o adelante de manera simétrica otorgándole dinamismo al conjunto mediante un juego de luz y sombra.
Planta - Alta
Sección - Longitudinal AA
En relación al lenguaje, se buscó trabajar la homogeneidad con un tono blanco para lograr amplitud y sensación de calma, para los solados se utilizan materiales nobles como el mosaico granítico la madera y el ladrillo que expresan su naturaleza y textura con personalidad. Para la resolución tecnológica, se optó por un sistema tradicional de mampostería portante y techo de estructura metálica.
Estudio I LZ
客服
消息
收藏
下载
最近


































