查看完整案例

收藏

下载
Clásicos de Arquitectura: Maison de Verre / Pierre Chareau + Bernard Bijvoet
Clásicos de Arquitectura: Maison de Verre / Pierre Chareau + Bernard Bijvoet
Casas
Paris,
Francia
Arquitectos:
Bernard Bijvoet
Pierre Chareau
Año:
1932
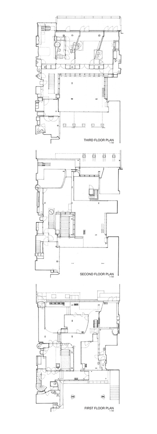
Diseñada por Pierre Chareau y Bernard Bijvoet, la Maison de Verre (en español "Casa de Vidrio") es un hito de los comienzos del diseño arquitectónico moderno.
Al ser incapaces de expulsar a una mujer mayor que habitaba el último piso, la casa se colocó debajo del departamento existente. Como tal, la casa fue construida utilizando marcos de acero que permiten una planta libre y el uso de los omnipresentes materiales ligeros, como vidrio y vidrio block. Un aspecto interesante de esta casa son los ubicuos accesorios metálicos.
En la planta baja se ubicaba el consultorio médico del Dr. Jean Dalsace, dueño de la casa. Este peculiar arreglo se resolvió con una pantalla giratoria que ocultaba las escaleras privadas de los pacientes durante el día, y las enmarcaba por lo noche.
Entre otros componentes mecánicos se encuentra una carretilla de techo que pasa de la cocina al comedor, una escalera retráctil que conecta la sala de estar privada a una habitación, y una serie compleja de alacenas para los baños.
La división espacial interior es modificable al poder utilizar pantallas giratorias, corredizas, y plegables de vidrio, metal liso, o metal perforado para crear nuevos espacios personalizados.
La honestidad de los materiales, la transparencia variable de formas, y la yuxtaposición de materiales "industriales" con decoración de interiores tradicional hace a la Maison de Verre un punto de referencia de la arquitectura del Siglo XX.
Materiales
Vidrio
Acero
Concreto
客服
消息
收藏
下载
最近














