查看完整案例

收藏

下载
Современный и экологичный дом от Kunik de Morsier в Л’Аббеи, Швейцария
Подлинное произведение экологичной архитектуры, созданное специалистами бюро Kunik de Morsier, находится в районе швейцарского горного массива под названием Юра, недалеко от озера Лак-де-Жу.
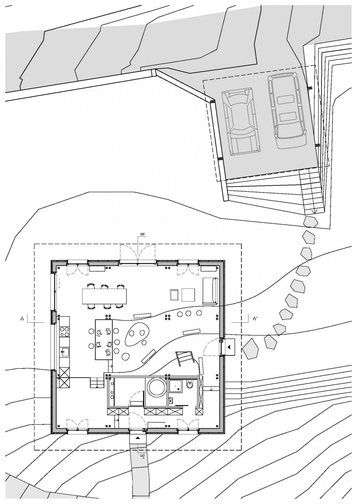
Коттедж занимает небольшой участок на одном из склонов, но при этом он хорошо вписывается в окружающую среду и великолепно смотрится со всех сторон. Воспользовавшись особенностями рельефа, архитекторы спроектировали крытый паркинг для двух автомобилей.
Строение выглядит интересно и очень необычно из-за нестандартного расположения окон и оригинального экстерьера – одна из наружных стен имеет отличную от других отделку.
От гаража до самого дома проложена извилистая каменистая дорожка.
Пространство первого этажа делят кухня, столовая, гостиная и ванная комната. Стоит переступить порог дома, как вниманием полностью завладевает эффектное нагромождение подушек, стилизованных под гладкие валуны. Такая необычная декоративная композиция просто не может остаться незамеченной! Очень интересно и разноуровневое зонирование первого этажа. Например, рядом с кухней, на небольшом возвышении обустроена игровая зона. Это позволяет хозяйке дома присматривать за детьми и одновременно заниматься своими повседневными делами.
Мебель, изготовленная исключительно из экологически чистых материалов, отлично вписывается в интерьер дома. Комнаты естественным образом освещаются в течение всего дня благодаря наличию большого количества окон и широких дверей. К тому же это обстоятельство способствует визуальному объединению внутреннего и внешнего пространств, даря обитателям резиденции ощущение близкого присутствия живой природы.
На второй этаж ведёт лестница, основание которой также находится на небольшом подиуме. Между стойками перил натянута сетка, которая выступает в роли декоративного элемента и является эффективным средством безопасности для маленьких детей. Верхний этаж занимают четыре спальни, ещё одна ванная комната и домашний мини-офис.
При возведении этого дома были использованы различные сорта древесины и инновационные строительные технологии. Она позволили мебели и самому сооружению визуально слиться друг с другом, образовать органичную, целостную композицию. Дерево присутствует повсеместно, и именно оно обуславливает неповторимость облика здания.
Определённо, этот дом является идеальным пространством для людей, который ищут единения с природой и отражения её эстетики в каждом уголке жилища.
И в завершение предлагаем вашему вниманию архитектурные эскизы этого проекта для более детального ознакомления.
客服
消息
收藏
下载
最近






















