查看完整案例

收藏

下载

翻译
Architects:Ravel Architecture
Area:4750ft²
Year:2025
Photographs:Chase Daniel
Manufacturers:Western Window Systems,Sub-Zero,US Lumber Brokers
Lead Architects:Alex Finnell, Dan Fields
Interior Designers:SLIC Design
Landscape Architects:Shademaker Studio
Structural Consultants:Duffy Engineering
Category:Houses
City:Austin
Country:United States
Text description provided by the architects. CASA CALMA is a sanctuary inspired by the warmth and timelessness of Mexican vernacular architecture while embracing Texas sensibilities and climate necessities. Designed to be both bold and serene, the home draws from traditional materials and typologies while introducing clear, modern geometries. Thick limestone walls, made from locally sourced stone, establish a grounded presence and offer both spatial clarity and tactile richness, connecting the home to its regional roots.
Carefully nestled into a gently sloping site, the home uses the natural topography to heighten its sense of grounding and privacy. A forecourt terrace is carved into the slope, creating a protected outdoor room that sits on grade with the interior living areas. This gesture not only anchors the home to the land but also allows the living room to open directly onto a usable outdoor space—blurring the threshold between house and landscape.
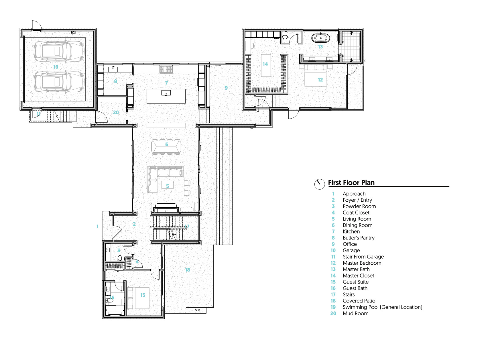
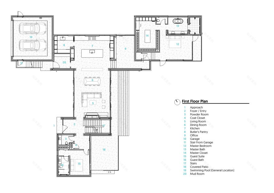
Natural materials are at the heart of CASA CALMA's identity. Exposed wood beams stretch rhythmically across the ceilings, expressing structure, warmth, and visual continuity. In the kitchen, these beams soar above a tall, open volume that serves as a lively communal heart—designed for gathering, cooking, and conversation beneath a canopy of light and timber. This space acts as the central anchor in a pinwheel-shaped plan, from which distinct programmatic zones radiate outward.
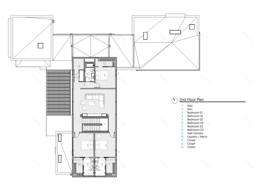
The home is carefully zoned to balance sociability with seclusion. The pinwheel layout allows public and private areas to extend in different directions, creating a natural sense of orientation and flow without the need for hallways. Open-plan living areas invite casual gathering and entertaining, with seamless transitions between indoor lounges and lush outdoor courtyards—designed for flexibility, from intimate dinners to large celebrations.
More secluded wings—such as shaded terraces, hidden alcoves, and a private primary suite—offer quiet moments of retreat, enriched by soft, neutral-toned finishes and the dynamic play of natural light. Expansive glass panels frame views of the surrounding landscape and soften the mass of the stone and plaster interiors, reinforcing a continuous connection to the outdoors. True to its name, CASA CALMA is a tranquil retreat—a home of contrasts and balance, rooted in tradition and crafted for contemporary living.
Project gallery
客服
消息
收藏
下载
最近






















