查看完整案例


收藏

下载
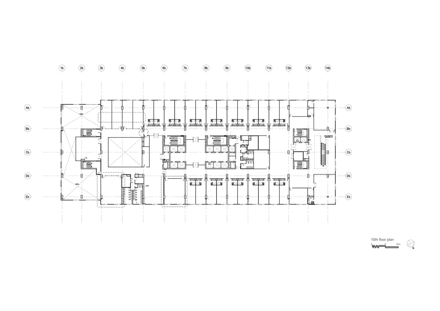
架构师提供的文本描述。新的CAT电信总部由许多功能需求组成,这使得它需要巨大的占地面积。我们决定把它分成3座大楼,一座礼堂大楼,一座停车场大楼,一栋办公大楼,通过用户的接近来安排,而不是建造一座巨大的大楼。建筑物的排列还遵循现有的总体规划,即对角线网格,在中间创建一个三角形庭院,为所有人提供一个聚集的场所,并在其他物理原因上获得更多的好处,例如在建筑物中获得自然光。三大建筑物的分离也有助于区分使用者和交通流通。
Text description provided by the architects. The new headquarters of CAT Telecom consists of many functional requirements which make it require huge footprint area. Instead of creating a huge building, we decided to break it into 3 buildings, an auditorium building, a parking building, and an office building which arranged by approaching of users. The building alignment also follows the existing master plan which is diagonal grid creating a triangle court in the middle of them act like a gathering place for all and for more benefit on other physical reason such as to gain natural light in the building. The separating of three big buildings also helps to separate users and traffic circulation clearly.
Text description provided by the architects. The new headquarters of CAT Telecom consists of many functional requirements which make it require huge footprint area. Instead of creating a huge building, we decided to break it into 3 buildings, an auditorium building, a parking building, and an office building which arranged by approaching of users. The building alignment also follows the existing master plan which is diagonal grid creating a triangle court in the middle of them act like a gathering place for all and for more benefit on other physical reason such as to gain natural light in the building. The separating of three big buildings also helps to separate users and traffic circulation clearly.
© Panoramic Studio
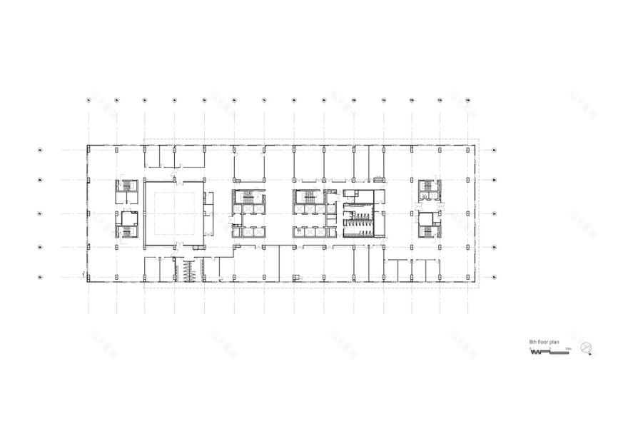
(三)全景工作室
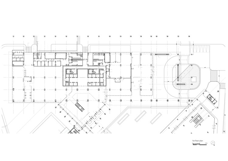
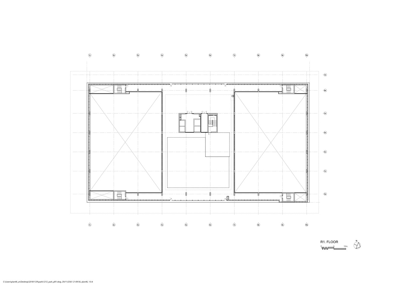
Ground floor plan
© Panoramic Studio
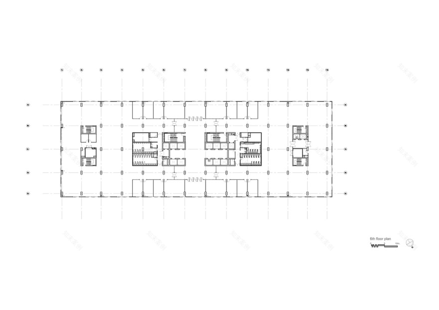
(三)全景工作室
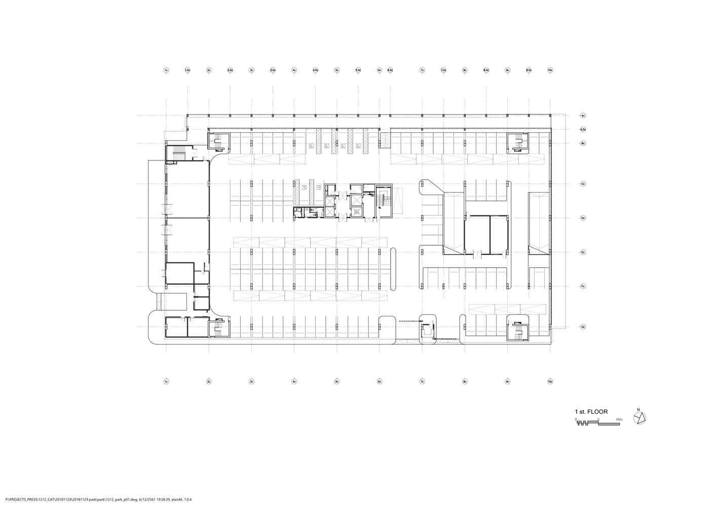
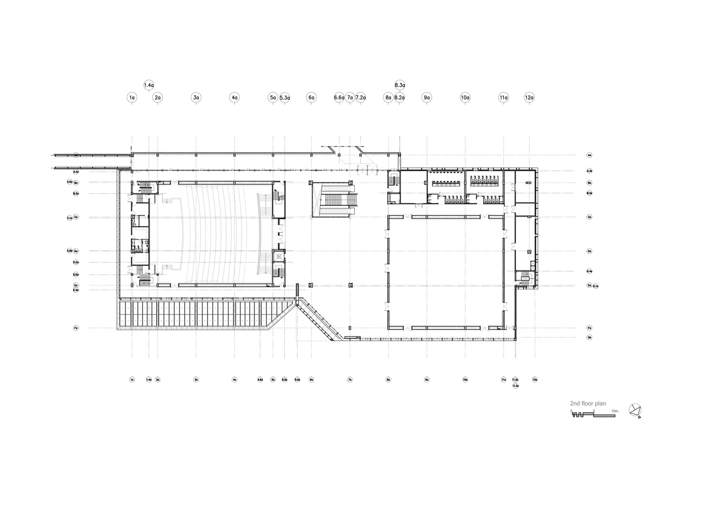
Second floor plan
二层平面图
© Panoramic Studio
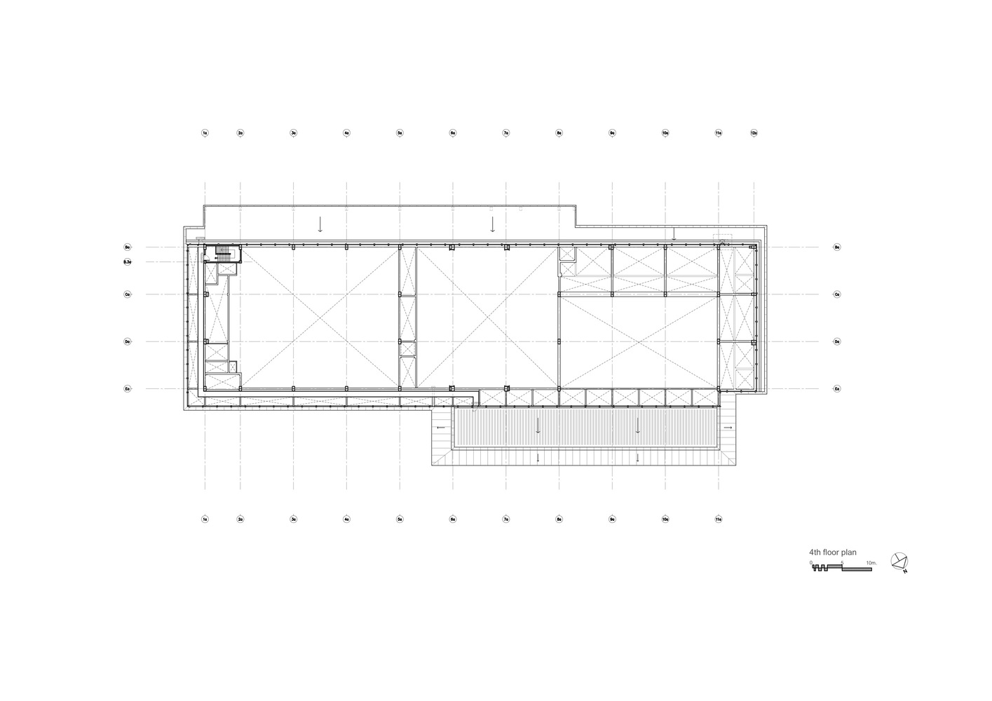
(三)全景工作室
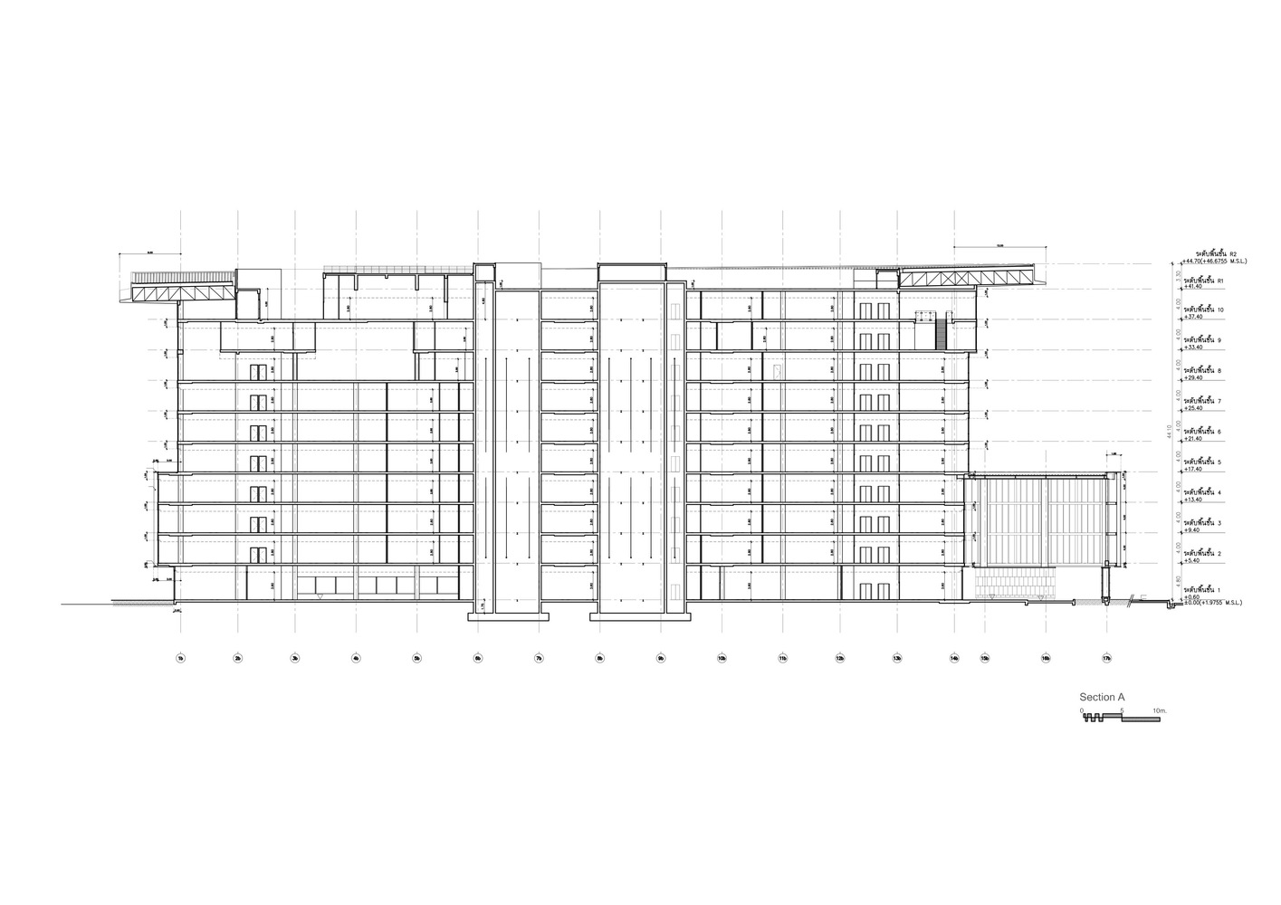
本项目的主要概念设计是将屋顶景观像一个连续的斜坡,从礼堂建筑逐渐上升到办公大楼,使所有群众从接近的角度看都不太密集。这个形状也显示了不断向未来移动的组织的“成长”。
The main concept design of this project is to put the roof scape like a continuing slope gradually rising from the auditorium building to the office building make all masses not too dense from the approach view. The shape also shows "the growth" of the organization which keeps moving to the future continuously.
The main concept design of this project is to put the roof scape like a continuing slope gradually rising from the auditorium building to the office building make all masses not too dense from the approach view. The shape also shows "the growth" of the organization which keeps moving to the future continuously.
© Panoramic Studio
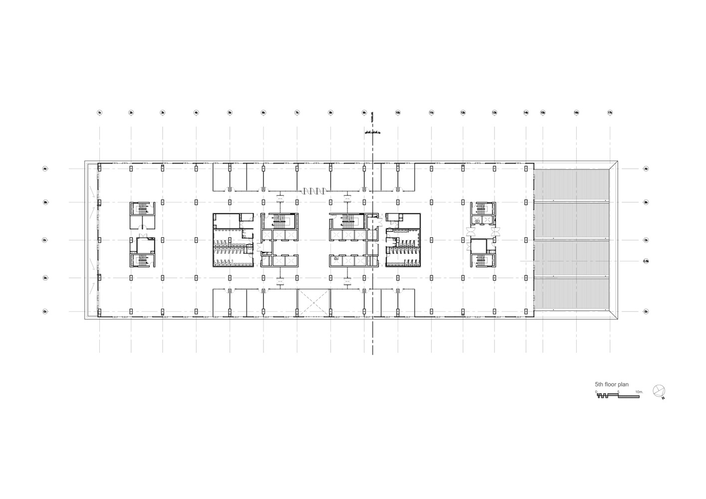
(三)全景工作室
Architects Plan Architect
Location แจ้งวัฒนะ Khwaeng Thung Song Hong, Khet Lak Si, Krung Thep Maha Nakhon 10210, Thailand
Design Team Korkiat Kittisoponpong, Jaturon Buranajade, Jittinun Krisnangkura, Paveen Rojchannavisart, Sikarin Udomwong
Area 75000.0 m2
Project Year 2018
Photographs Panoramic Studio
Category Offices
Manufacturers Loading...
客服
消息
收藏
下载
最近






































































