查看完整案例


收藏

下载
© Marcin Ratajczak
(Marcin Ratajczak)
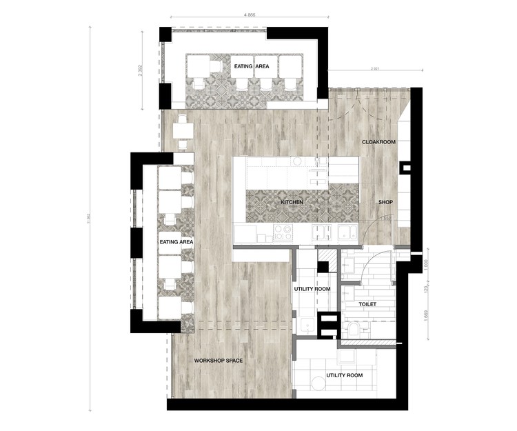
建筑师提供的文字说明。在Poznan-Tymanek地图上出现了一个全新的咖啡馆公式。“百里香”)。tyanek是一个家庭咖啡馆,它是由热情和对孩子的爱组成的。这是一个地方,父母和孩子感到舒适。建筑师在设计过程中仅有一个目的-为孩子创造一个友好的空间……当然是为了他们的父母!TY绵ek是一个多功能的空间,包括咖啡馆、商店、车间,当然还有一个游乐场,所有这些都是85m2的区域。
Text description provided by the architects. A completely new formula of the cafe has appeared on the map of Poznan – Tymianek (ang. „Thyme”). Tymianek is a family cafe, which has been composed out of passion and love for the children. It is a place, where parents and children feel comfortable. The architects had only one purpose during the design process - to create a friendly space for children... and of course for their parents! Tymianek is a multifunctional space including cafe, shop, workshop and certainly a playground, all of this on 85m2 of area.
© Marcin Ratajczak
(Marcin Ratajczak)
© Marcin Ratajczak
(Marcin Ratajczak)
这个地方的中心是厨房,在那里,家长们正在为他们的孩子们特别准备食物。大厨房岛实际上是三种不同功能的结合-做饭的地方,儿童游戏用的小厨房,装满无数玩具的盒子。
The central point of the place is kitchen, where meals are being prepared before parents eyes specially for their kids. Large kitchen island is in fact a combination of three different functions - place for preparing meals, small kitchen intended for childrens games and boxes filled with countless number of toys.
将多种功能结合在一起的自然后果是通过木箱建立舒适区,并创造相应的声学条件-因此,墙壁上有一种特殊的室内装潢,其功能是一个声学面板。
The natural consequence of combining a large variety of functions was setting up the comfort zones via wooden booths and creating a relevant acoustic conditions - therefore, there is a special upholsteringon the walls, which functions as an acoustic panel.
© Marcin Ratajczak
(Marcin Ratajczak)
© Marcin Ratajczak
(Marcin Ratajczak)
然而,咖啡厅的主要功能是,孩子们在吃饭的时候就在父母眼前它们也是儿童游戏的完美补充!内部项目是在模式监视下设计的:丽娜工作室。
However, the principal function of the cafe, is that children are before parents eyes during meals - gaps in the walls in the shape of houses serve this particular purpose exquisitely. They are also a perfect addition to children’s games! The interior project was designed under the watchful eye of mode:lina studio.
© Marcin Ratajczak
(Marcin Ratajczak)
Architects mode:lina architekci
Location Katowicka 81C, 61-131 Poznań, Poland
Category Coffee Shop
Architect in Charge Paweł Garus & Jerzy Woźniak
Project team Paweł Garus, Jerzy Woźniak, Kinga Kin, Małgorzata Szymańska
Area 85.0 sqm
Project Year 2016
Photographs Marcin Ratajczak, Katarzyna Kitajgrodzka
Manufacturers Loading...
客服
消息
收藏
下载
最近




















