查看完整案例


收藏

下载
设计理念从扩大前拉瓦扎咖啡馆的供应开始,包括开胃酒。
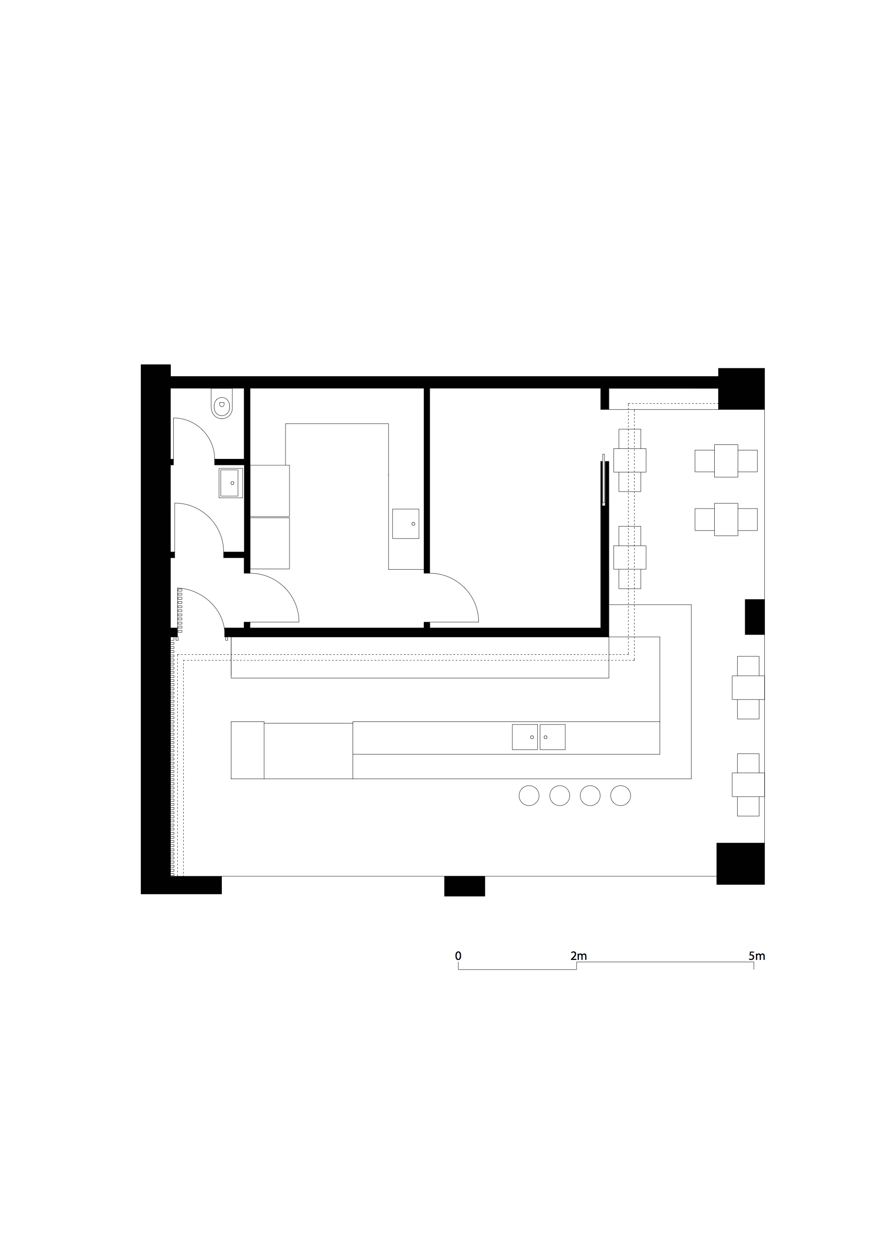
该项目重新定义了大角度计数器的作用,它成为工作站和早餐或速溶咖啡的欢乐时间。
新的角度几何允许区分一个鸡尾酒区,其中的空间家具是由铁和木材,一个区域的椅子和桌子,以较慢的消费和一个壁龛的瓶子。
不变的主题是云杉的板条覆盖,它赋予白色瓷砖墙以韵律,而木炭灰色瓷砖地板则强调实线的力量,创造室内与室外的关系,邀请游客进入。
Firm Studio DiDeA
Type Commercial › Retail Hospitality + Sport › Bar/Nightclub Restaurant
STATUS Built
YEAR 2016
SIZE 0 sqft - 1000 sqft
BUDGET $10K - 50K
keywords:architecture, architecture news, interiors, interior design, portfolio, spec, brands, marketplace, products Aperitivo & Caffè
关键词:体系结构、体系结构新闻、内部设计、内部设计、产品组合、规格、品牌、市场、产品开胃药
客服
消息
收藏
下载
最近


















