查看完整案例

收藏

下载
© Daniel Ducci
c.Daniel Ducci
架构师提供的文本描述。奥古斯塔公司位于该市最重要的商业街之一,位于怡和酒店的高贵街区。设计的部分探讨了四个稍微不对齐的体积的重叠,其特点是玻璃体上的窗板标记,形成了一种水平和垂直的语言。
Text description provided by the architects. Augusta Corporate is located in one of the most important commercial streets of the city, in the noble neighborhood of Jardins. The part of the design explores an overlapping of 4 slightly misaligned volumes, characterized by the markings of the casement on glass bodies, resulting in a language that can be seen horizontal and vertical.
Text description provided by the architects. Augusta Corporate is located in one of the most important commercial streets of the city, in the noble neighborhood of Jardins. The part of the design explores an overlapping of 4 slightly misaligned volumes, characterized by the markings of the casement on glass bodies, resulting in a language that can be seen horizontal and vertical.
© Daniel Ducci
c.Daniel Ducci
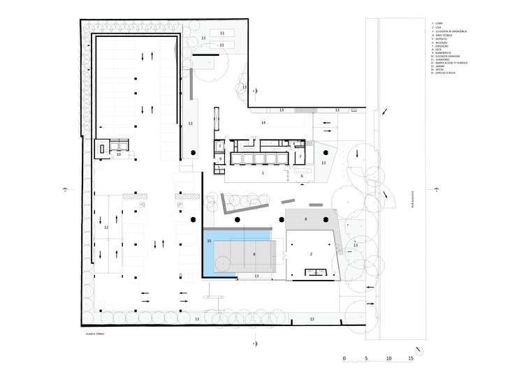
Ground Floor Plan
© Daniel Ducci
c.Daniel Ducci
这种多样性给项目带来了运动和特性。在一楼,有一家商店,它表达了街道的商业使命,没有栅栏邀请过路者进入大楼,那里有一个小广场。
This diversity gives movement and identity to the project. On the ground floor, there is a store that expresses the commercial vocation of the street and the absence of fences inviting the side passer-by to enter the building, that has a small square.
This diversity gives movement and identity to the project. On the ground floor, there is a store that expresses the commercial vocation of the street and the absence of fences inviting the side passer-by to enter the building, that has a small square.
© Daniel Ducci
c.Daniel Ducci
© Daniel Ducci
c.Daniel Ducci
这座建筑有17层楼和一个双右脚屋顶,探索了城市的独特景观:由市政厅历史遗产保护的房屋构成的邻里部分。它也有大量的车库地板后面的建筑物,覆盖了一个花园。这个项目配置了一个新的趋势,称为“办公室精品”的建筑在怡和附近。
There are 17 floors on this building and a double right foot rooftop that explores a unique view of the city: the neighborhood’s part composed of houses protected by the city hall historical heritage. It also has a volume of garages floors behind the building covered with a garden. This project configures a new trend of buildings called “Office Boutique” in the Jardins neighborhood.
There are 17 floors on this building and a double right foot rooftop that explores a unique view of the city: the neighborhood’s part composed of houses protected by the city hall historical heritage. It also has a volume of garages floors behind the building covered with a garden. This project configures a new trend of buildings called “Office Boutique” in the Jardins neighborhood.
© Daniel Ducci
c.Daniel Ducci
Architects aflalo/gasperini arquitetos
Location R. Augusta, 2800 - Cerqueira César, São Paulo - SP, 01412-000, Brazil
Authors Roberto Aflalo Filho, Felipe Aflalo Herman,Grazzieli Gomes Rocha, José Luiz Lemos
Team Eduardo Mizuka, Reginaldo Okusako, Daniela Mungai, André Navarro, Marcelo Nagai, Reinaldo Nishimura, Deborah Costa, André Sumida, Raquel Rodorigo
Area 18247.1 m2
Project Year 2018
Photographs Daniel Ducci
Category Store
Manufacturers Loading...
客服
消息
收藏
下载
最近

















