查看完整案例

收藏

下载
Clásicos de Arquitectura: Edificio IBM / Mario Roberto Álvarez y Asociados
Clásicos de Arquitectura: Edificio IBM / Mario Roberto Álvarez y Asociados
Ubicado en el barrio de
Retiro
de la
Ciudad Autónoma de Buenos Aires
, se alza el edificio IBM del Estudio
Mario Roberto Álvarez y Asociados
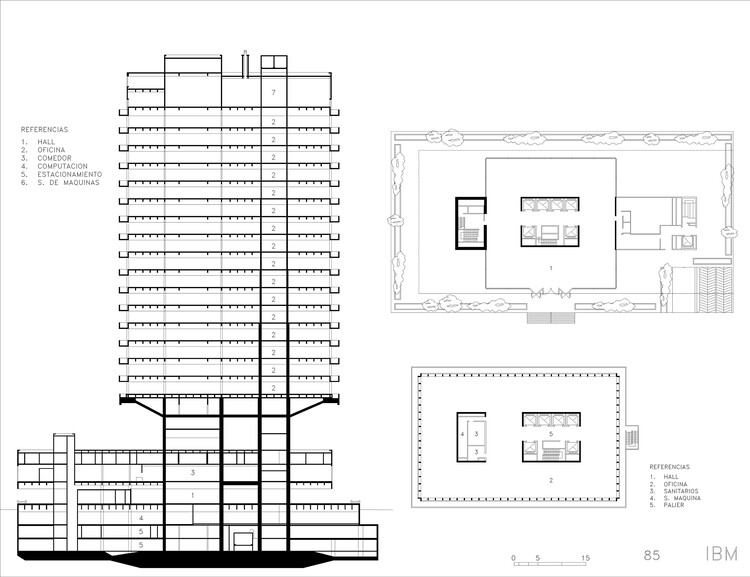
. Concebido para albergar la sede central de la compañía IBM en el país, este edificio de oficinas fue proyectado hacia 1979 y se compone de una torre sostenida por dos grandes núcleos estructurales de hormigón sobre un basamento, que se separa del suelo y del fuste de la torre para alojar la planta baja y un nivel de áreas comunes con el propósito de mantener la escala urbana. El lenguaje del edificio se reconoce a distancia al quedar conformado por un cerramiento de bandas horizontales de vidrio y antepechos-parasoles de hormigón a la vista, que logran un diálogo y equilibrio en la proporción de llenos y vacíos.
Inaugurado hacia 1983, el proyecto se diseñó en base a una serie de premisas que involucraron la contemplación de todas las restricciones del Código de Edificación, el uso de la máxima superficie útil en planta, el empleo de una planta libre con estructura de hormigón armado clara y simple libre de columnas interiores, la optimización del máximo perímetro de iluminación natural, la atención sobre la escala peatonal y la jerarquización de accesos en planta baja, el modulado de fachadas y cielorrasos para una mayor cantidad de despachos y flexibilidad, el cumplimiento de las normas de seguridad del comitente y la solución integral al problema de mantenimiento de fachada junto al escape a escalera exterior.
La obra configura un edificio contemporáneo, funcional, eficiente y económico, que, sin ser una extravagancia, es diferente a sus vecinos. Un edificio producto de interpretar y cumplir los criterios, objetivos y conceptos del comitente, compatible con sus vecinos, pero distinto de las cajas de cristal circundantes de Catalinas Norte.
Las consideraciones de tipo arquitectónico e ingenieril dieron como resultado el esqueleto estructural propuesto, que resultó ser el más práctico y económico. La planta tipo está sustentada por dos núcleos centrales y una serie de columnas perimetrales, con un módulo de 1.50 metros. Los dos núcleos centrales descansan sobre fundaciones directas y las columnas perimetrales no llegan al suelo, sino que transfieren su carga a los núcleos por intermedio de un sistema estructural especial.
Esta estructura de transición consiste básicamente en dos placas, una inferior y una superior. La placa inferior sube de los núcleos hacia el borde en pendiente e intercepta la placa superior, que es horizontal en la línea de las columnas. De esta manera, la carga de las columnas perimetrales se desvía suavemente hacia los núcleos por intermedio de una estructura lógica y económica. Esta estructura sobresale de la línea de las columnas, distribuyendo sus cargas y creando un espacio para anclaje de las barras de hormigón. La estabilidad necesaria y la sustentación de cargas verticales y asimétricas se obtiene por medio de un emparrillado de vigas.
Esta concepción modulada de la estructura permite el máximo de flexibilidad en planta para ubicar las oficinas según los óptimos de IBM y tener dos rangos de oficinas mínimas de 3 m y un corredor de 1.50 m. Un alero perimetral con parasoles le darán seguridad y servirá también de medio de escape hacia una escalera de incendio adicional exterior.
La ventana típica es de aluminio anodizado con vidrio superior atérmico mientras el antepecho, un compacto de vítrea pintado y horneado al exterior. Cada dos ventanas, una de ellas es una banderola de abrir para ventilar en caso de emergencia, de manera que ninguna oficina mínima de 3x3 deje de tener ventilación. Sobre cada una de las fachadas, un módulo de estos se abre de piso a techo para permitir llegar a la escalera de escape.
Por otro lado, se ubicó en el segundo piso un sector de terrazas, jardín y estar, para distintas funciones relacionadas con las oficinas, que abrazan desde el 3º piso hasta el 19º, dejando la última planta para la sala de máquinas. Dos de los tres subsuelos son desarrollados para estacionamientos mientras el restante alberga conexiones y distintos circuitos informáticos.
Proyecto:
MRA+A | Mario Roberto Álvarez y Asociados
Alvarez, Kopiloff, Santoro, Satow, Rivanera
Ubicación:
Carlos M. de la Paolera 275,
Ciudad Autónoma de Buenos Aires
,
Argentina
Comitente:
IBM
Año:
1979-1983
Superficie del terreno:
2.736 m²
Superficie total edificada:
32.000 m²
Carlos M. Della Paolera 275, C1001ADA CABA, Argentina
Mario Roberto Álvarez
Oficina
客服
消息
收藏
下载
最近

















