查看完整案例

收藏

下载
Renovación del Centro de Formación para la Revitalización Rural de Jiangmen / Architectural Design and Research Institude of SCUT
Renovación del Centro de Formación para la Revitalización Rural de Jiangmen / Architectural Design and Research Institude of SCUT
Arquitectos:
Architectural Design and Research Institude of SCUT
Área:
6000
m²
Año:
2022
Fotografías:
Alpha photography
Arquitectos A Cargo:
Xiaoxin He, Ping Su
Equipo De Diseño:
Xiaoxin He, Ping Su (leader designer) ,Lin Lin, Han Zhang, Jing Fan, Lu Jiang, Yanbin Zhang,Chuncui Lai (architecture),Zhaohui Wu, Shuyin Feng (landscape)
Colaboradores:
Jiangmen Pengjiang Architectural Design Institute Co., Ltd. (construction drawing cooperation unit) Jiangmen Hengrui Architectural Decoration Design Co., Ltd.(interior design cooperation unit)
Clientes:
Jiangmen Kaiping Culture Tourism Development Group Co., Ltd.
Ciudad:
Jiangmen
Pais:
China
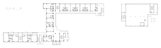
El proyecto de renovación incluye principalmente dos partes: un centro de formación y un hotel de apoyo (Hotel Tangxin), ubicado en la localidad de Tangkou, ciudad de Kaiping, en la provincia de Guangdong. El sitio del proyecto es el antiguo complejo del gobierno de Tangkou, que ha estado vacío durante muchos años, conservando tres edificios de oficinas del gobierno local que fueron construidos en la década de 1990. Se trata de la zona limítrofe entre la ciudad y el campo. La mayor parte de la superficie edificada del centro de formación se ha logrado principalmente mediante la renovación del edificio de oficinas, y la expansión de los edificios se concentra mayormente en el lado oriental del emplazamiento, con formas irregulares.
El diseño crea una forma arquitectónica paisajística continua, la «Colina Circular», como vínculo para remodelar el emplazamiento. La "Colina Circular" se eleva alrededor del límite del terreno, formando una plataforma ondulante, un sistema de transporte peatonal circular y moldeando la plaza central en el medio del sitio y el espacio abierto que da al estanque. El límite semiabierto de la "Colina Circular" combina la conexión pública entre el complejo arquitectónico y el entorno circundante, formando diferentes interfaces paisajísticas que dan a la calle, al frente del agua y al espacio rural.
La parte de la "Colina Circular" que da a la calle principal está conectada a tres edificios existentes a lo largo de la calle a través de una plataforma de dos pisos, formando una interfaz continua de calle abierta. La plataforma del segundo piso de la "Colina Circular" en el lado este se extiende hacia el suelo con una suave pendiente, reservando para el futuro una vía peatonal desde la zona del paseo marítimo. El límite del edificio que da al estanque adopta pendientes onduladas, formando un espacio gris que da al estanque inferior. La plataforma de la "Colina Circular" no sólo ofrece un escenario abierto para contemplar el paisaje rural circundante, sino que también forma un amortiguador espacial con el campo y las montañas distantes mediante contornos de construcción paisajísticos flexibles.
Una parte de la "Colina Circular" rodea la plaza central en el medio del sitio, formando un corredor elevado circular que asciende gradualmente. La plaza central también se ha convertido en una plaza de entrada integrada. Durante el período de actividades de formación, puede satisfacer las necesidades de distribución de tráfico instantáneo controlando la entrada, y convertirse en una plaza pública abierta al público en días normales. Tras detenerse en la plaza central, residentes y turistas pueden pasear por ella guiados por la suave pendiente de la "Colina Circular", para alcanzar la plataforma del segundo piso, completando una experiencia de itinerancia tridimensional por el complejo de edificios. Este parque de diversiones tridimensional no solo proporciona un espacio abierto e instalaciones recreativas para disfrutar del paisaje, sino que también ofrece un lugar de actividades para padres e hijos, permitiendo que los niños corran y jueguen al exterior libremente en el terreno de pendiente ondulada.
Basándose en las condiciones reales de los proyectos de construcción rural, como el emplazamiento, el coste y la construcción, el diseño adopta una actitud pragmática ante las condiciones locales para adaptarse a los cambios en el proceso de ejecución y el lenguaje de formas del edificio. En el edificio de oficinas original aún se pueden encontrar detalles significativos de las fachadas de los edificios de las aldeas del sur de la década de 1990, como paneles de hormigón en las ventanas, barandillas y parterres de mosaicos de colores. El diseño adopta una estrategia de renovación combinando elementos antiguos y nuevos. El diseño reinterpreta principalmente el lenguaje arquitectónico transparente del sur en la fachada del edificio original a través de la aplicación innovadora de materiales de construcción convencionales. El elemento de ladrillo rojo atraviesa varias interfaces del edificio del aula elíptica, creando un punto visual altamente reconocible en la plataforma, y las paredes exteriores revestidas con rejillas de ladrillos florales también pueden proporcionar un ambiente de luz natural más suave para el aula.
Jiangmen, China
Architectural Design and Research Institude of SCUT
Acero
Concreto
Ladrillo
客服
消息
收藏
下载
最近
























































