查看完整案例

收藏

下载
Sra Pou Vocational School
Sra Pou, Cambodia
Architects Rudanko Kankkunen
Vocational school that fights unemployment in Sra Pou community
education
in use
Rudanko + Kankkunen
Sra Pou vocational school is a vocational training center and community building in Sra Pou village, Cambodia. The project was started by young architects Hilla Rudanko and Anssi Kankkunen in an Aalto university design studio in spring 2010. During the studio, they travelled to Cambodia to find a design task with a local NGO.
The purpose of the vocational training centre is to encourage the low-income families to improve their living environment. The Sra Pou community is one of the unprivileged communities in Cambodia, who have been evicted from their homes in the city to the surrounding countryside. They lack basic infrastructure, decent built environment and secure income. The new vocational school provides professional training and helps the people to start sustainable businesses together. It is also a place for public gathering and democratic decision-making for the whole community. A local NGO organizes the teaching.
The school building is made out of local materials with local workforce. The aim was to help the locals to re-discover the local available materials, and to make the most out of the them, so that they can apply the same construction techniques in building projects of the future.
The process of making mud bricks
Testing column solutions with local experts
The process of construction.
The process of construction
Dying the hand-crafted doors.
The location.
The frontal view.
From inside looking towards the hand-crafted doors.
An open community space.
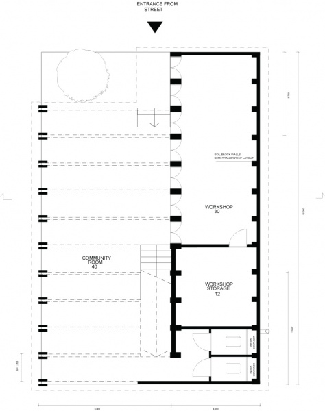
Plan.
The documentation of the building process
Website of Architects Rudanko + Kankkunen
客服
消息
收藏
下载
最近












