查看完整案例

收藏

下载
复兴公园位于法国梧桐掩映的复兴中路北侧,WE+lab项目则位于公园的北门,一幢看似与法式公园毫不沾边的三层老楼——复兴广场内,它该如何在这里呈现?如何优雅地回应复兴公园的气度与浪漫?当团队再次步入园内,轴线、中轴对称、网格化、图案化等关于法式园林的关键词一一闪回,花卉、梧桐、亭榭、山池不断闪现,还未迈入本案所在地,我们就决定以另一种态度向这座百余年的花园致敬。
从始建之初至今,复兴公园似乎演绎了一部上海生活方式的进化史,它的雏形与现状亦表现了历史与未来间的紧密碰撞,此时,复兴广场的“重塑”更像是在公园内撒的一粒种子,经历了时代的回顾与跨越,才能表现得更为完整:在WE+入口处,热闹与地点性被提取图像化。
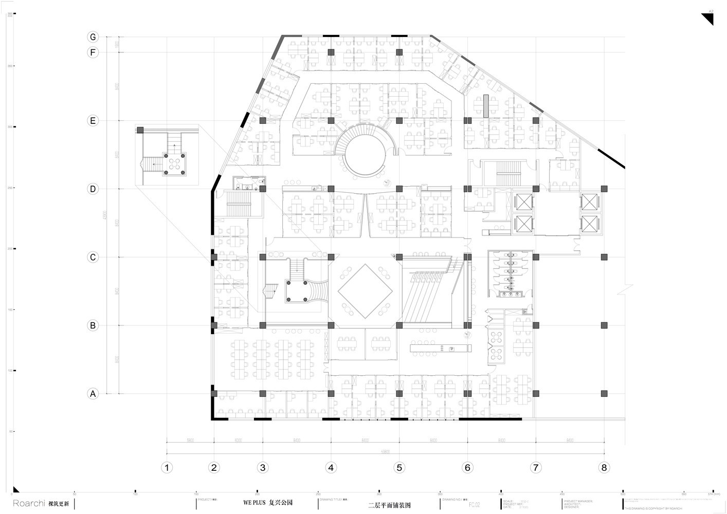
在铺地纹样的设计上,延续了园内植物的形状,在楼梯扶手的设计上,呼应原有古希腊柱式的特有属性,以更故事性的角度去讲述事件存在的必要合理性,纹样中的线与数所表达的,是对历史延续与纪念,是场域精神,是文化的“再”生长。中轴部分以悬铃木即法国桐——当地最具有代表性的树种,取其骨架枝来作为藤蔓进行衍生,在导向指引的同时,抽象化花卉图腾,意图讲述事件在秩序中孕育且不断生长的自然状态。
城市变迁,旧物如何涅槃霞飞? RoarcRenew希望用设计深入腹地,延续“复兴区域”的人文内涵,使之再次成为文化、艺术、社交的重地。
WE+复兴广场项目位于法国梧桐掩映的复兴中路北侧,南接复兴公园沉床花园东侧林荫大道。 该项目建筑部分,前身是复兴公园“钱柜KTV”,承载着许多老上海的青春回忆,而这次更新的内容,则是将KTV的娱乐业态,更新为创意家居展示型商业及联合办公的业态。
A 林荫大道
在概念方案未落定前,RoarcRenew就将空间的“破立”作为布局的重心,在建筑上满足展示型商业的面积要求,并有秩序的最大化商铺可视面积。在动线逻辑上,拆除原有的布局,通过建筑词汇“林荫大道boulevard ”解释空间逻辑,用法式园林语言即主轴线从建筑物开始沿一条直线沿伸, 以该轴线为中心对称布置其他部分,对空间进行解构与重建。我们以园内的中央轴线贯穿整体,打破旧区域的无序性,以 “林荫大道boulevard ”纵贯起内部空间与园林景观,以此重塑该项目的气场,达到整体性的构建与延续,并为业主实现在入口与店铺之间视线直达,试图为商业最大化增益。
B 场域的精神与文化场
boulevard一词是丹麦语的bulvaerk经过法语演变来的,bul即“树干”,vaerk即“work”,合起来是“树干筑成的工事”,工事的顶部就用来作为人们散步的场所。或者有的地方就把工事推倒,在原来的地方修建一条宽阔的大道。这种大道,法国人仍袭用了丹麦人的叫法,只是在拼法上略加改变,叫做boulevard。后来,这个词便用来泛指宽阔的街道,通常两边有树。
将“boulevard”一词,置入本案的布局规划之中再为合适不过。从城市的尺度来看,本案的室内空间不再单纯是一个室内场所,而是以“景观节点”的姿态所展现的空间形式。我们希望将室内轴线作为复兴公园景观轴线的延伸,好比卢浮宫前的杜伊勒里花园,作为皇家精神的延续,而本案的空间作为复兴公园故事的延续。
在对公园进行深入地分析后,我们发现整个园林的规划是一个条理清晰、秩序严谨、主从分明、简洁明快、庄重典雅的几何网格,重点装饰贯穿全园的中轴线(“林荫大道”),如花坛、花格墙、喷泉、树篱、雕塑等,道路分级也极为严谨。以此作为室内设计的方向,我们希望将复兴公园内的核心元素引入室内,探索内与外的边界。在这个探索的过程中,以园内景观为依托,以几何网格的分级为基础,我们尝试进行相关的纹样设计、室内景观营造以及包括图像化的装饰,这不仅是内与外,新与旧,当代与现代的对话,更多的是为了空间场域整体性的塑造。在这些研究与“设计”的表面之下,不是做作地迎合某种说法,也不是表面上物化的狂欢,而是在寻找文化的痕迹。空间到底要说什么?要引起怎样的共鸣? 遗留下的“历史”与“新叙事”能不能回应其原本就独有的城市文化?“新”城市文化能否被大多数人认同,这才是城市更新的核心,亦是场域精神的关键所在。
怀着一颗“修旧如旧”的心。其实修旧如旧也可以是崭新的。RoarcRenew对“旧”的概念应该更为宽广。它可以是我们的生活习性,存在于我们的意识之中。纹样其实是一种崭新的对旧的表达,几何曲线的所形成的平面语言,沿袭了“洛可可”时期法式园林的古典优雅,同样也在室内的铺地材质中创造了一条“文化场”,带起人们的记忆,挑起过往的阅历。在这些“塑造”的表面之下,是在寻找“传承”的共通性。
C 方法论
与其说我们在一幢老楼的改造,不如说是对一段文化历史的认同。复兴广场与复兴公园原本在实质上并无太多联系,而片面性地将当代设计语言植入就真的是“更新”了吗?徜徉在复兴公园,依然能真切感受到法兰西园林的风情和神韵,也能细细地体会到曾经那十里洋场的百转千回。而几何、对称、秩序这种法式园林独有的场域性被“移植”在了WE+复兴广场项目中,这是内与外的对话,是“新”对“旧”的回应,是RoarcRenew对城市更新的理解,亦是对国内唯一的法式园林的致敬。
客服
消息
收藏
下载
最近






















