查看完整案例

收藏

下载
自然从不解释,只是以自己的方式存在着,简单、随性,却深藏奥秘。——马凯特·卡普兰
01自然求索
回归自然,是对生命的礼赞,亦是对生活另一种形式的求索。
本案为四层联排结构,附一个地下室,设计运用自然、结构、光构建极简语境,回归材质本身的纯粹属性。每一个元素提炼至本质,牵引生活诗意和生命律动在此发生,为业主一家四口营造真正的舒适感。
设计重新界定共享边界,在地下室集合了休闲栖居的多维属性,打造社交剧场。借势层高优势,挑空结构纵横界面尺度,增设夹层作为保姆房和孩子的学习区,搭建上下界面的交互与穿透。
自然光穿透天窗落入地下,侘寂感与生命力交织,游移其中可以不断地感受材料与光带来的情绪起伏,制造流动的层次与生机,回应着这份沉静却隽永的力量。
楼梯的骨骼肌理直观展现在眼前,仿佛艺术装置强化了视觉层次,制造结构美学的张弛感。墙面悬挂陈列式书架,内置书籍器物,可以在此休闲阅读,体察居住者更深度的精神需求。
克莱因蓝作为这处纯粹空间的点睛之笔,与原木结构嵌合成背景艺术,呼应软装沙发。侧墙吧台以光膜营造氛围意境,多元素结合加深了极简艺术的厚度,制造一场美学诗意。
夹层的开放式书房独立一隅,同时与不同界面产生互动,自由舒展若即若离的场域形态,家庭成员都能在此得到关照与交流,制造人与空间的互动趣味。
02界面指引
一层作为主要的生活区,基于场域的完全释放,探索家的自由属性,释放生活的无限可能。向外扩大客厅落地窗,延伸视角的广度;向内打通客餐厨的流动,串联动线指引,最大限度模糊内外界限,室外风景自然而然成为了家的一部分。闲庭漫观、四时流转,场景之间穿梭交流,生活韵致与自然灵趣交织,感知生活的雅致悠长。
客厅组合自由的块状沙发,形成岛屿式结构,向四周散射更丰富的交流。原木与润白搭建整体基调,调度不同材料的组合比例深入探索空间逻辑,创造出宁静且专注的环境,经得起时间的推敲。
充分释放厨房布局,沿着墙体向外衍生原木柜体,强化厨余收纳。另一侧作为岛台,拼接长桌,消除餐厅和厨房的界限,同时和客厅联动洄游,完成了一场交互共生的形态,衍生开阔灵动的尺度感。
设计依照空间的递进逻辑,光、景、结构、动态互为观照,在游走与静止的变化中感受微妙的仪式感和序列感,回归安逸平和。
一层拆除原始卫生间,在玄关处设置观光电梯。入门步入克莱因蓝的几何艺术,透过电梯结构,引导空间层次递进。
楼梯同步设置玻璃扶手,一块块悬浮阶梯下行攀升,联结生活的各个维度,牵引进入另一重界面。
03感官共鸣
主卧套房独享三楼整层布局,铺展温润简约的框架,调度沙发区、入寝区、浴缸、洗漱、衣帽间的动线,塑造缓慢舒适的生活节奏,在日常的动态痕迹中逐渐充盈,细细品味生活格调。
小儿子房在低饱和基调中,汇入沉稳的灰度与童真趣味。适当留白,色彩点缀,细节中饱含着对孩子童年世界的呵护,创意与想象在此自由翱翔。
大儿子房回归流畅的框架,退让色彩修饰,借灯光、线条等细节营造氛围,回顾材质本身的质感,简雅之中体察更细腻的情愫,感性与理性共存。
阁楼作为家庭的多功能活动室,设置了茶室、健身房。设计将露台原有斜顶矫正,天顶和墙体半围合玻璃,营造舒适的阳光房,感受生活的惬意与自然的生命力。
入夜,远处的天光和暖灯交织着绚烂的自然画框,为这处庭院覆一层朦胧滤镜。此时将聚会搬到室外,天地为幕,借景自然,安静又充满温情。此时此刻,时间留下的痕迹更加深邃,印刻着万物存在的尺度。光线、自然、花草树木都为家赋予更多样的形式,将环境条件转化为一种深刻的体验,超越物质框限,让人在环境中找到归属感与意义,构建专属自己的生活方式。
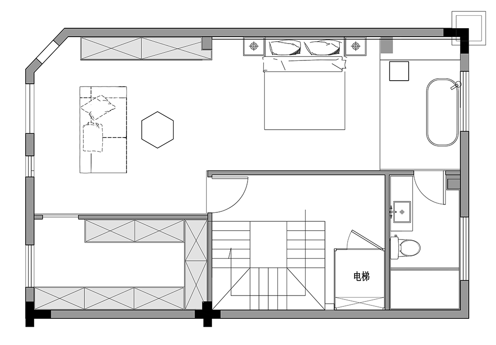
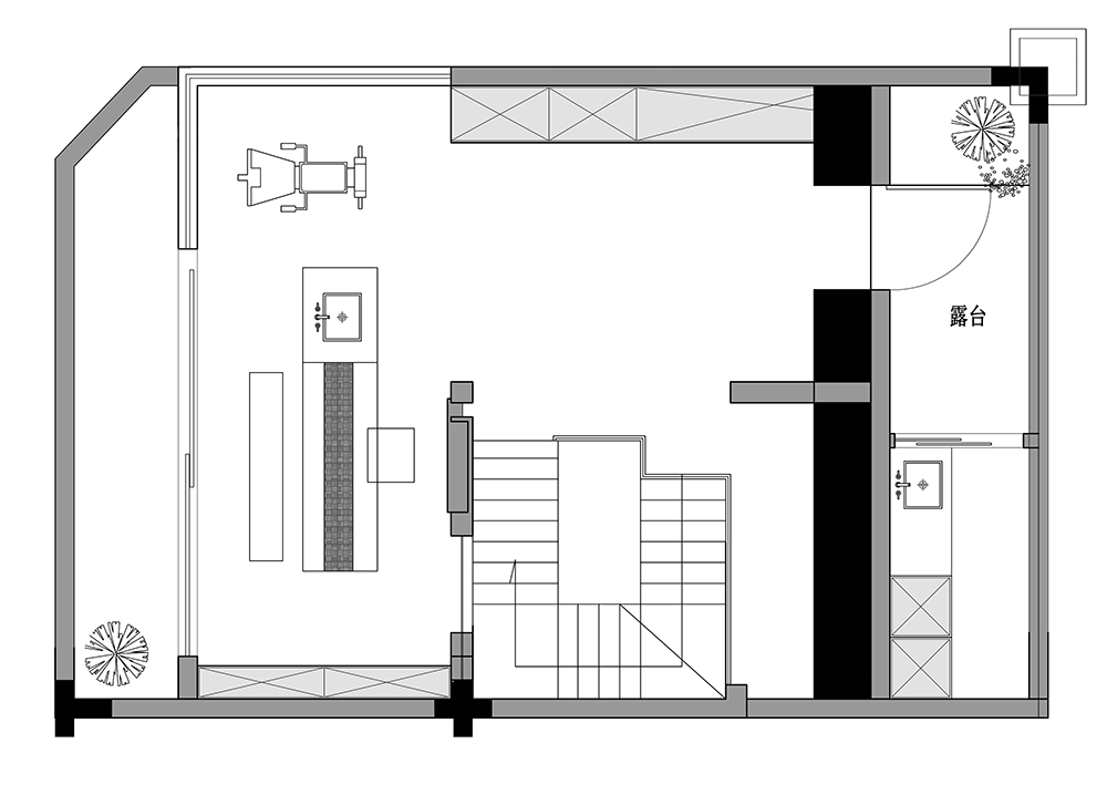
平面图
-2F平面图
-1F平面图
1F平面图
2F平面图
3F平面图
阁楼平面图
项⽬名称:自然的随性叙事
设计公司:界面空间设计
项⽬地点:浙江·温州
项⽬⾯积:320m²
主案设计:杨扬华
内容策划:橙设传媒
项目摄影:吴昌乐
主要材料:大金空调、道格拉斯瓷砖、宇恒卫浴、本来之间木作
杨扬华 界面空间设计/齐厦装饰工程 创始人/设计总监
以空间为媒,探索人与物之间的崭新界面。界面空间设计合并「齐厦装饰工程」与「界面软装设计」,以“每个人从事自己擅长的专业领域”为基调,协作完成空间从设计到施工的完美落地。
公司以正直、诚实、精进为立身之本,提倡还原空间本质,引领客户回归舒适生活。
客服
消息
收藏
下载
最近
















































