查看完整案例


收藏

下载
© Michael Vahrenwald / Esto.
MichaelVahtenwald/esto。
架构师提供的文本描述。圣布莱恩特市公园是位于纽约的咖啡吧,也是位于布鲁克林布什威克的咖啡烘焙品牌的第四个零售地点。
Text description provided by the architects. City of Saints Bryant Park is a coffee bar located in New York, NY and the fourth retail location for the rising coffee roasting brand based in Bushwick, Brooklyn.
Text description provided by the architects. City of Saints Bryant Park is a coffee bar located in New York, NY and the fourth retail location for the rising coffee roasting brand based in Bushwick, Brooklyn.
© Michael Vahrenwald / Esto.
MichaelVahtenwald/esto。
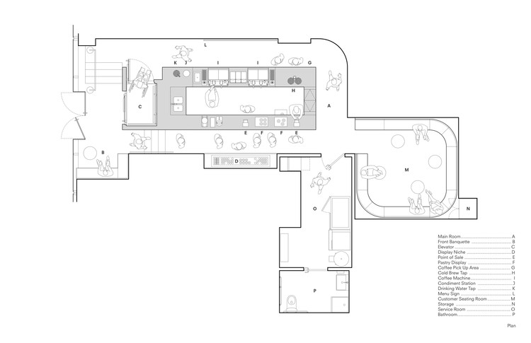
咖啡是从一个凸起的中心岛后面准备和供应的,这个岛上覆盖着半透明的绿色玻璃纤维光栅。基础设施,如浓缩咖啡机,磨床,硝基啤酒水龙头,倒站,饮用水水龙头,糕点展示,和一个平台电梯无缝地集成到长方形岛屿。岛上还设计了从销售点到饮料拾取点,再到调味品站的顾客进入循环的动作。这个组织促进了优化和速度,包括咖啡师的工作流程和客户的循环。
Coffee is prepared and served from behind a raised central island, which is clad in translucent green fiberglass grating. The infrastructure such as espresso machines, grinders, nitro brew taps, pour over stations, drinking water taps, pastry display, and a platform elevator are seamlessly integrated into the rectangular island. The island also choreographs the movement of customers into loop, from point of sale to drink pick-up to a condiment station. This organization facilitates optimization and speed, including the workflow of the baristas and customer circulation.
Coffee is prepared and served from behind a raised central island, which is clad in translucent green fiberglass grating. The infrastructure such as espresso machines, grinders, nitro brew taps, pour over stations, drinking water taps, pastry display, and a platform elevator are seamlessly integrated into the rectangular island. The island also choreographs the movement of customers into loop, from point of sale to drink pick-up to a condiment station. This organization facilitates optimization and speed, including the workflow of the baristas and customer circulation.
© Michael Vahrenwald / Esto.
MichaelVahtenwald/esto。
Axonometry
© Michael Vahrenwald / Esto.
MichaelVahtenwald/esto。
Floor plan
© Michael Vahrenwald / Esto.
MichaelVahtenwald/esto。
后面的房间被设计成一个座位区,其周边有一个连续的横梁。它的材料和间接照明是为了产生一个更平静,更慢的空间。随着咖啡吧越来越多地发挥新的功能,松散的桌子和插座允许将房间用作非正式的工作或会议空间。
A back room is designed as a seating area with a continuous banquette on its perimeter. Its materials and indirect lighting are intended to produce a calmer, slower space. As coffee bars increasingly take on new functions, loose tables and outlets allow the room to be used as an informal working or meeting space.
A back room is designed as a seating area with a continuous banquette on its perimeter. Its materials and indirect lighting are intended to produce a calmer, slower space. As coffee bars increasingly take on new functions, loose tables and outlets allow the room to be used as an informal working or meeting space.
© Michael Vahrenwald / Esto.
MichaelVahtenwald/esto。
该空间的材料调色板是建立在圣徒城品牌和身份的基础上的,以海泡沫绿色的色调为基础。这种颜色是通过非常规和工业材料实现的,包括半透明绿色玻璃纤维光栅、绿色石英岩台面、绿色绒面装饰和绿色环氧涂料。趋势预报员WGSN已经确定了这种绿色的颜色,一种性别中立的颜色,有一种充满氧气、清新的色调,使自然与科学技术相一致,在2020年和下一个十年中将在时尚和室内设计中变得越来越重要。材料调色板还包括灰色橡胶地板,灰色环氧墙,镜子,定制不锈钢扶手和硬件。
The material palette of the space is based on shades of a sea-foam green color that builds on and defines City of Saints’ brand and identity. The color is realized through unconventional and industrial materials, including translucent green fiberglass grating, green quartzite countertop, green suede upholstery, and green epoxy paint. Trend forecaster WGSN has identified this shade of green, a gender-neutral color with an oxygenating, fresh tone that aligns nature with science and technology, to become increasingly important in fashion and interiors in 2020 and into the next decade. The material palette also includes grey rubber floor, grey epoxy walls, mirror, and custom stainless steel handrails and hardware.
The material palette of the space is based on shades of a sea-foam green color that builds on and defines City of Saints’ brand and identity. The color is realized through unconventional and industrial materials, including translucent green fiberglass grating, green quartzite countertop, green suede upholstery, and green epoxy paint. Trend forecaster WGSN has identified this shade of green, a gender-neutral color with an oxygenating, fresh tone that aligns nature with science and technology, to become increasingly important in fashion and interiors in 2020 and into the next decade. The material palette also includes grey rubber floor, grey epoxy walls, mirror, and custom stainless steel handrails and hardware.
© Michael Vahrenwald / Esto.
MichaelVahtenwald/esto。
Architects Only If
Location Bryant Park, New York, NY 10018, United States
Lead Architects Kutay Biberoglu, Pierre de Brun, Karolina Czeczek, Adam Snow Frampton, AIA
Area 900.0 ft2
Project Year 2018
Photographs Michael Vahrenwald / Esto.
Category Coffee Shop
Manufacturers Loading...
客服
消息
收藏
下载
最近














