查看完整案例

收藏

下载
Shanmen Public Bathhouse
Tianshui Gansu, China
Village sustainable bathhouse.
BaO Architects
health & sanitation
in use
BaO architects
/// Split bathhouse
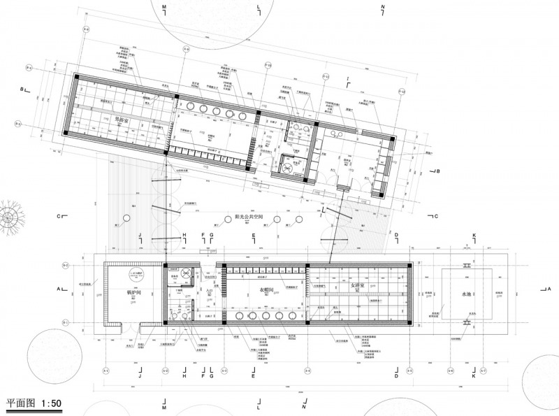
The project is split in two distinct buildings, one for men, one for women, that are linked in the middle by a shared space in the form of a greenhouse that utilizes passive solar energy. This “public” gathering space can be completely opened on both sides to become a half-inside/half-outside buffer zone and to permit users to circulate in, through and enter or exit the building from multiple routes. Using the two bathing wings as structural walls, the generous spaces of the greenhouse were built for a very low cost with local materials and techniques.
The two inverted blocks, with their roofs springing out from the central greenhouse, contain a green and a yellow bathing space for men and women. Each of them is organized along a sequence of entrance, where one change shoes or access bathrooms, locker room with washbasins and changing facilities, and a shower space containing 12 shower heads each. A full-length window strip simultaneously brings light into the spaces and permits proper cross ventilation and steam extraction. The volumes are intentionally completely opened with simple details in order to guaranty easy maintenance and good hygiene of the spaces.
Shanmen bathhouse
Shanmen, a village located in the mountains near Tianshui in Gansu Province, asked BaO architects and the Children of Madaifu association to help them build a small community bathhouse. The villagers and the schools had no possibility to wash in the town since there is neither public facility of any kind, nor private bathrooms in the houses. The precarious hygiene conditions are source of many discomforts, infections, diseases, plagues and even outbreaks of epidemics.
Bathhouse
Bathhouse
Bathhouse
Bathhouse
Bathhouse
Bathhouse
Bathhouse
Bathhouse
Bathhouse
Bathhouse
Bathhouse
Bathhouse
split bathhouse
masterplan
plan
section
water cycle
phytormediation
dry toilets
客服
消息
收藏
下载
最近





















