查看完整案例

收藏

下载
Zero Energy School
Saint-Ouen, France
A school between playgrounds and gardens, designed with photovol
image: Zero Energy School by Mikou Design | © all rights reserved
Phase:
under construction
Design:
Mikou Design
The Docks school in Saint Ouen is in a strategic urban location, in the middle of the Zac des Docks mixed development area, which an exemplary case of sustainable urban development.
Zero Energy School by Mikou Design
image: Zero Energy School by Mikou Design | © all rights reserved
Sustainability by Identity
Zero Energy School by Mikou Design
image: Zero Energy School by Mikou Design | © all rights reserved
The building’s siting facilitated south-facing orientation of all the classrooms and playgrounds in order to make the greatest possible use of passive solar energy. This spatial disposition also made it possible to increase the surface areas on the south required for the photovoltaic panels which were integrated into the architecture of the covered playground areas.
Therefore the scheme is in the form of a mass built in stepped tiers on the east, on the main street, which is extended by large canopies and which folds in crosswise strips on the site’s diagonal to face southwards.
These stepped crosswise strips are separated by internal gardens which open wide east-west transparent views into the school while allowing clear identification of the various teaching areas open to the light and to the peace and quiet on sheltered internal patios.
Facing southwards, the school is arranged in a succession of gardens and volumes in brightly-lit terraces which gradually descend to free the view and to let in maximum sunshine.
Zero Energy School by Mikou Design
image: Zero Energy School by Mikou Design | © all rights reserved
Zero Energy School by Mikou Design
image: Zero Energy School by Mikou Design | © all rights reserved
Zero Energy School by Mikou Design
image: Zero Energy School by Mikou Design | © all rights reserved
Pergolas will be covered with photovoltaic panels
image: Mikou Design | © all rights reserved
Gardens and playgrounds between educational spaces
image: Mikou Design | © all rights reserved
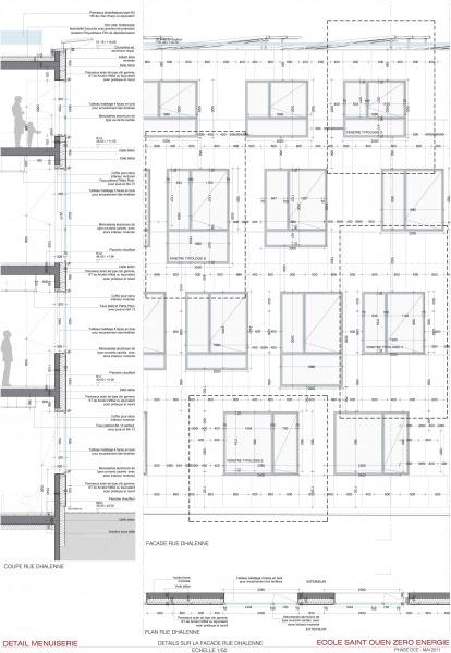
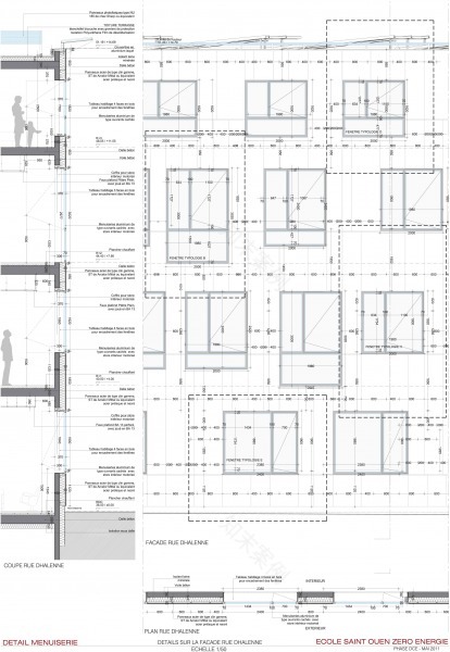
Zero Energy School by Mikou Design
image: Zero Energy School by Mikou Design | © all rights reserved
Zero Energy School by Mikou Design
image: Zero Energy School by Mikou Design | © all rights reserved
Zero Energy School by Mikou Design
image: Zero Energy School by Mikou Design | © all rights reserved
Zero Energy School by Mikou Design
image: Zero Energy School by Mikou Design | © all rights reserved
Architecture of Necessity
Mikou Design Studio
客服
消息
收藏
下载
最近












