查看完整案例

收藏

下载
Гостевой домик или домашний офис в саду
Гостевой домик или домашний офис в саду
Небольшой дом спроектированный архитекторами
BLOOT Architecture
расположился во дворе за основным домом. Фантазию архитектора существенно ограничивали размеры участка, а также жесткие ограничения на постройки на участке. Тем не менее архитектору Тьерду Блуатуфду удалось создать очень удачную и весьма комфортную постройку площадью 22.6 квадратных метра.
Одну стену от поле до потолка заняли полки. Ванна и небольшая кухонька расположились в задней части домика. Точнее это не ванна, лишь компактный санузел, включающий в себя душ и туалет. Тем не менее санузел организован достаточно рационально и более чем функционален.
Рядом с санузлом в задней части здания находится кухонный уголок. Основной ее особенностью, позволившей сделать крохотную кухню функциональной, стала ее глубина и окно рядом с кухонной столешницей. Именно благодаря глубине возможно расположить кухонные принадлежности в глубине ближе к окну, а ближе к краю достаточно места для работы. Кухонные полки установлены в оконном проеме.
Внутри домик обшит светлой фанерой, а задняя акцентная стена выделена оранжевым цветом. Большое количество окон заполняют небольшое помещение светом. Передняя часть домика имеет окна от пола до потолка и остекленную дверь в качестве входа. С этой стороны окна могут закрываться сдвижными деревянными решетками, защищая помещение от солнца и добавляя домику приватности. Как уже упоминалось выше, рядом с кухонной столешницей находится большое окно. Также в доме предусмотрено окно в крыше освещающее рабочий стол. Кроме того в стенах предусмотрены дополнительные окна, задуманные специально для того чтобы было куда бросить взгляд сидя на диване.
Рекомендую посмотреть видео блогера Марии Сторгаард. Видео на английском, но дает хорошее представление о гостевом доме.
Маленький домик строгой формы с наклонной крышей должен был соответствовать строгим местным строительным нормам.
Рядом с домиком предусмотрительно добавлена терраса, поэтому в теплое время года можно вынести стол на улицу.
Уникальности дому добавляют сдвижные решетчатые деревянные ставни. Они эффективно защищают внутренне помещение от солнца.
Снаружи домик обшит деревом. Внутри фанерой. Целая стена занята книжными полками.
Кухня расположена в оконном проеме с большой глубиной подоконника и полками. Кухня всегда светлая и практически не занимает места.
В небольшом помещении раскладной диван служит спальным местом, когда это необходимо. Еще одно низко расположенное окно добавлено специально для того чтобы с дивана можно было бы смотреть в окошко на улицу.
Окно на уровне пола улучшает освещенность комнаты и кирпичная стена привносит необычную кирпичную текстуру в фанерный интерьер гостевого домика.
Стеклянная входная дверь выглядит логично в маленьком домике.
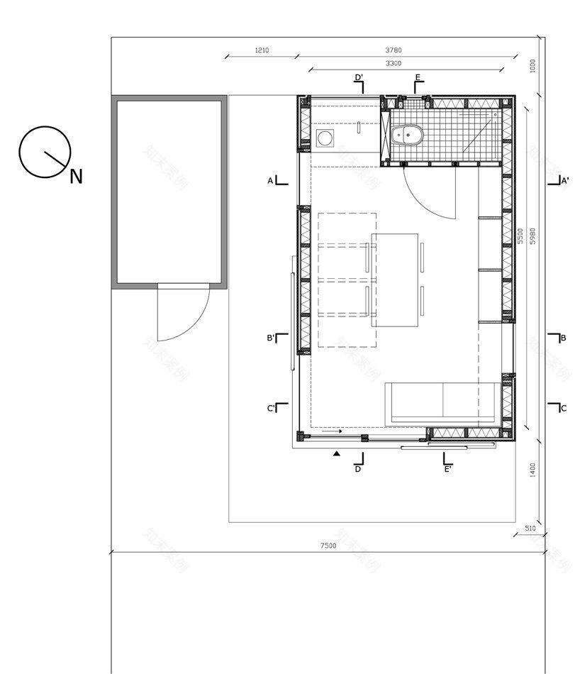
План гостевого дома.
客服
消息
收藏
下载
最近











