查看完整案例

收藏

下载
Dairy Road Building 3.4
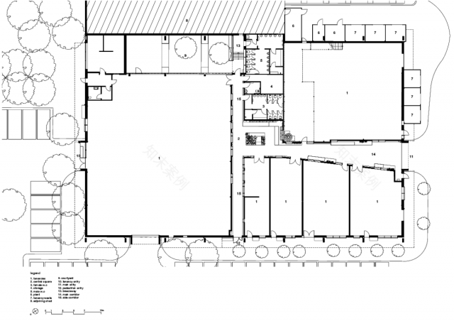
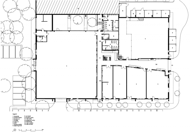
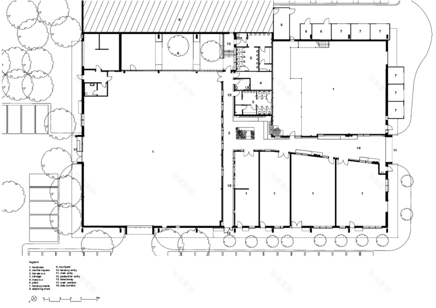
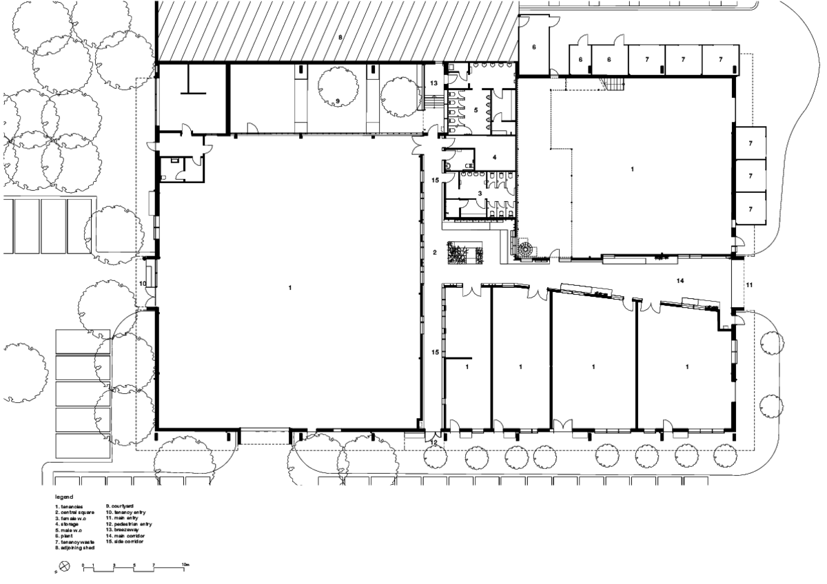
The first stage of Molonglo’s Dairy Road—a 14-hectare industrial site located 8km from the centre of Canberra with highly interwoven uses, including artist studios, retail, light industrial, commercial, creative and cultural spaces.
Designed by
Craig Tan Architects
, this first phase of re-development retains the industrial form with architectural insertions made within the existing sheds.
Small villages are being created within these sheds.
‘Laneways’ extend inwards from the exterior of the building meeting in a central ‘courtyard’.
Off the ‘laneways’ are a series of doors and opening windows with a view into individual workshop spaces.
The workshops are framed with light, saw-tooth and pitched roof structures, evoking an urban scale.
Dairy Road is becoming a dense urban village—a place to make, see and do.
Through a combination of architectural interventions and experimental tenanting, visitation has increased from 200 people per week to more than 10,000 people per week in just over six months.
Project Details
Completion Date – 2017
Project Team
Architecture
Craig Tan Architects
Craig Tan Architects are one of Australia’s leading architectural, interiors and urban design firms creating memorable experiences; places people seek out again and again.
Photography
Anthony Basheer
Anthony is a photographer whose work explores the quieter, experimental moments found in buildings.
He is drawn to architecture that stirs emotion through scale, colour, and texture, and captures the magic and rhythm of the changing seasons.
客服
消息
收藏
下载
最近
















