查看完整案例

收藏

下载
Casa Avenida Griffith / Courtney McDonnell Architects
Casa Avenida Griffith / Courtney McDonnell Architects
Courtney McDonnell Architects
225
m²
2024
Peter Molloy
Thomas Walorski
CA Design
Hicken Lighting
Ibstock
Courtney McDonnell
Courtney McDonnell Architects
MSVI Building Contractors
David Lynch Engineer
Christina Casey QS
Irlanda
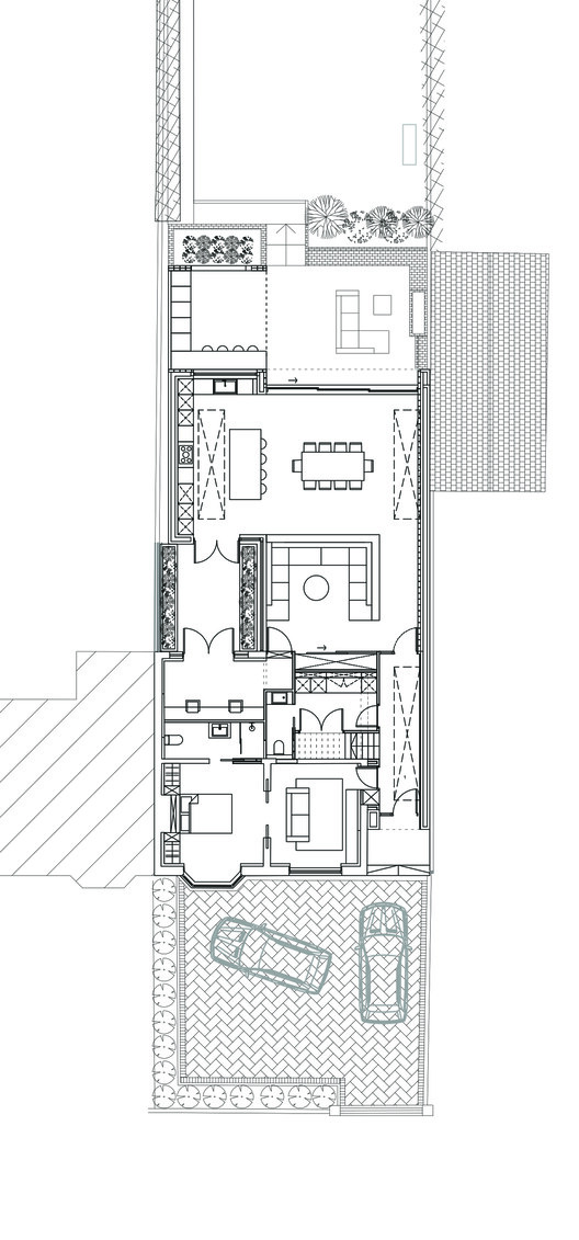
En 2021, se contrató a Courtney McDonnell Architects para trabajar en la renovación y extensión de una casa de los años 50 recientemente adquirida en Griffith Avenue. La casa requería una actualización significativa en todo su interior, junto con una reconfiguración y extensión para cumplir con el requerimiento del cliente.
Nuestros clientes, que se habían mudado recientemente de los EE. UU., solicitaron un estilo de vida de planta abierta con conexión al exterior, muchos espacios para entretener y reunirse socialmente, una oficina en casa, una nueva entrada principal, una suite principal y una suite de invitados separada para la familia que los visita. El diseño se centra en restaurar la propiedad a su forma original mientras se introduce una extensión contemporánea que mejora la funcionalidad y el atractivo estético.
Las originales salas de recepción frontales que daban a Griffith Avenue fueron preservadas y reutilizadas como una suite de invitados para acomodar a la familia que los visita. Una nueva extensión lateral sirve de nexo entre lo antiguo y lo nuevo, con una puerta de entrada reubicada que da a la avenida (originalmente situada en el fronton), un espectacular lucernario de grandes dimensiones y vigas de madera a la vista que proyectan cambiantes patrones de luz y sombra a lo largo del día. Este espacio de transición alberga discretamente el acceso a las habitaciones originales, a través de puertas paneladas ocultas, a un guardarropa, una suite de invitados, un lavadero y un aseo.
Al final de la nueva extensión del vestíbulo, una llamativa puerta de cristal blanco se abre a una moderna extensión de ladrillo de dos plantas que da al jardín trasero. La planta baja alberga zonas de estar, cocina y comedor de planta abierta, mientras que la primera planta está dedicada a una suite principal. Un patio en la planta baja atrae la luz natural al corazón del proyecto.
Courtney McDonnell Architects
Vidrio
Ladrillo
客服
消息
收藏
下载
最近






















