查看完整案例

收藏

下载
Kropka studio: Dom na Jurze
Kropka studio: Dom na Jurze
kropka studio
Dom o powierzchni 215 m² zaprojektowany przez architektów z Kropka Studio Małgorzata Łapaj & Kuba Kowalczyk , położony jest na obszarze Parku Krajobrazowego Orlich Gniazd niedaleko Zawiercia. Zadaniem twórców było stworzenie obiektu, który doskonale komponowałby się z tutejszym krajobrazem, w skład którego wchodzi między innymi kamienny kościół, ruiny zamku w Ogrodzieńcu i Morsku oraz ostańce skalne, nadające okolicy malowniczości.
Dom na Jurze doskonale wpasowuje się w specyfikę regionu, zarówno jeżeli chodzi o jego formę, jak i użyte materiały. Obiekt podzielono na dwie części. Jedna z nich jest częścią mieszkalną, natomiast w drugiej zaplanowano garaż z dwoma stanowiskami. Obydwie części połączono w spójną całość za pomocą drewnianego, ażurowego elementu. Do wykończenia budynku z zewnątrz użyto koszy gabionowych, wypełnionych wapieniem, czyli naturalnym materiałem charakterystycznym dla okolicy. Dzięki takiemu rozwiązaniu dom nie tylko zachwycająco się prezentuje, ale także jeszcze bardziej stapia się z resztą krajobrazu.
W przypadku kostki sypialni oraz wykuszu specjaliści zdecydowali się na wykończenie w postaci drewnianych listew. Dach został pokryty grafitową blachą tytanowo-cynkową.
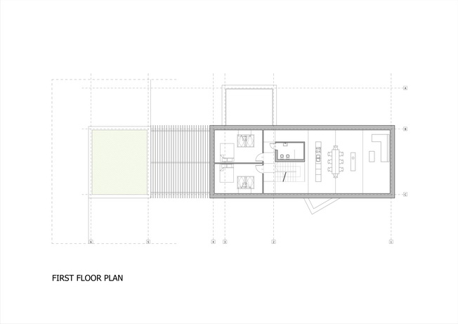
Obiekt cechuje się także funkcjonalnością, zgodnie z tym, w jakim celu został stworzony. Parter przeznaczono na salon połączony z otwartą kuchnią. Na dole znajduje się także sypialnia z większą łazienką. Na poddaszu zaplanowano umieszczenie dwóch kolejnych sypialni oraz mniejszej łazienki. Ogromne wrażenie robi przestrzenna strefa dzienna, w której chętnie spędza się czas, także ze względu na wysokie przeszklenie, przez które mamy widok na ogród.
Profesjonaliści zadbali także o zaprojektowanie nowoczesnego ogrzewania za pomocą pompy ciepła oraz wentylacji w postaci rekuperacji. To rozwiązanie ekonomiczne, efektywne i na miarę współczesności. W przypadku przeszkleń zastosowano potrójne szyby.
Dom pod Zawierciem to doskonała fuzja nowoczesnej architektury z wyraźnym nawiązaniem do specyfiki tutejszego krajobrazu.
Lokalizacja: Zawiercie, Polska
Projekt: kropka studio małgorzata łapaj & kuba kowalczyk, 2010
Realizacja : 2011-2013
Pow. użytkowa: 215m2
zdjęcia: Maciej Lulko
客服
消息
收藏
下载
最近

























